PA34 4TJ - Plot for sale in Land North West Of Dalanasaig, Clachan Sei…

View on Property Piper

Plot for sale in Land North West Of Dalanasaig, Clachan Seil, Oban, Argyll and Bute, PA34

Summary - DALANASAIG, OBAN, CLACHAN SEIL PA34 4TJ

1 bed 1 bath Plot

**Standout Features:**
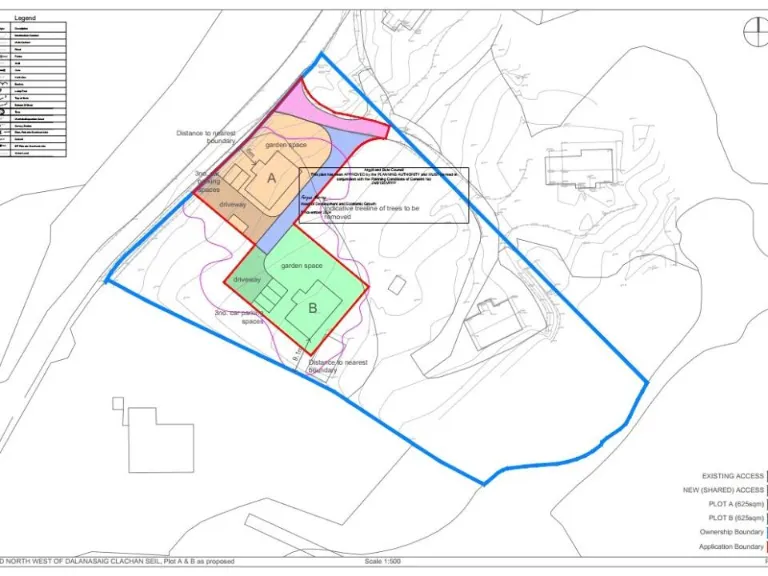
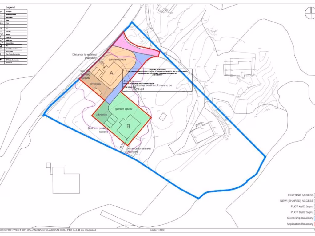
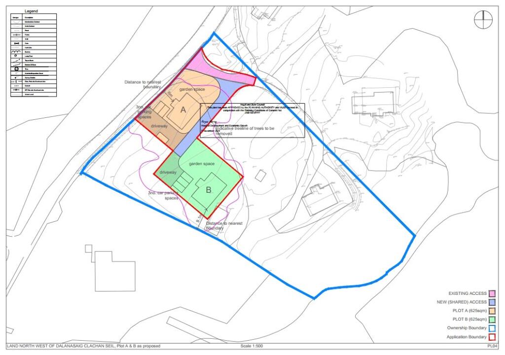
- Two prime building plots available at Offers Over £75,000 each
- Planning Permission in Principle for residential development (Reference: 24/01551/PPP)
- Located on the picturesque Isle of Seil, near Clachan Seil
- Large plots, approximately 0.15 acres each with stunning countryside and coastal views
- Local amenities include a grocery shop, pub, and school in nearby Balvicar
- Access via a shared track from the island road; mains services close by

**Summary:**
Discover two exceptional building plots in the scenic Clachan Seil on the Isle of Seil, offering a fantastic opportunity for developers or individuals seeking a dream retreat. Each plot spans approximately 0.15 acres and comes with Planning Permission in Principle for residential dwellings, ensuring a straightforward path to creating your ideal home or investment property. Surrounded by tranquil countryside and breathtaking coastal views, the plots promise a serene lifestyle just 13 miles south of Oban, easily accessible via the famous ‘Bridge over the Atlantic’.

Enjoy the charm of a tight-knit community with essential amenities nearby, including a pub, grocery shop, and primary school. Whether you envision a cozy cottage or a modern getaway, the generous size and potential for development make these plots a rare find. Don't miss out on this exclusive opportunity to claim your slice of paradise, ready to build while enjoying the vibrant local community and stunning natural beauty! Act quickly, as unique opportunities like this are not available for long!

Property Details

Brochure Descriptions

Image Descriptions

Textual Property Features

Detected Visual Features

Nearest Bars And Restaurants

,,,,}

Nearest General Shops

,,}

Nearest Grocery shops

,,}

Nearest Supermarkets

,,}

Nearest Religious buildings

,,}

Nearest Medical buildings

,,,}

Nearest Leisure Facilities

,,,,}

Nearest Tourist attractions

,,}

Nearest Train stations

,,,,}

Nearest Bus stations and stops

,,,,}

Nearest Hotels

,,}

Tags

Local Market Stats

AirBnB Data

Similar Properties

Meta

High Res Images

Compatible Images

Low res Images

Thumbnails

Raw Images