Chain-free freehold with immediate rental income and renovation potential.
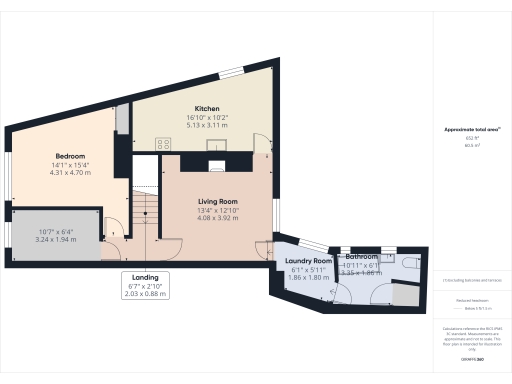
Two-bedroom upper-floor flat, approximately 652 sq ft
A two-bedroom upper-floor flat in a Victorian terrace, offered chain free and currently let at £475 pcm, presents an immediate income stream for investors. The freehold tenure and straightforward layout—entrance, lounge, kitchen, utility room, two bedrooms and a bathroom—make management simple and tenancy continuity likely.
Internally the flat benefits from period features such as high ceilings and a feature fireplace, combined with practical upgrades: UPVC double glazing and gas central heating throughout. The accommodation totals approximately 652 sq ft and includes a separate utility/laundry room, useful for tenant convenience or conversion potential.
Externally the terrace shows signs of dilapidation and will require repair work to the façade and brickwork. The property is in a deprived area with average local crime and strong rental demand; it sits close to Tynemouth’s beaches, shops, schools and transport links, which supports tenant attraction but also means some repair and maintenance costs should be factored in.
This is best suited to investors seeking immediate rental income or a buyer prepared to complete external repairs and minor internal updating. Viewings are available, and the property is sold with a sitting tenant in place, so purchasers should allow for tenancy arrangements when planning any works.
2 bedroom flat for sale in Chirton West View, North Shields, NE29 — £82,000 • 2 bed • 1 bath • 656 ft²
2 bedroom flat for sale in Donkin Terrace, North Shields, Tyne and Wear, NE30 — £175,000 • 2 bed • 1 bath • 732 ft²
2 bedroom flat for sale in Tynemouth Road, Howdon, Wallsend, Tyne and Wear, NE28 0LQ, NE28 — £85,000 • 2 bed • 1 bath • 655 ft²
2 bedroom apartment for sale in Hazeldene Court, Tynemouth, NE30 — £155,000 • 2 bed • 1 bath • 549 ft²
2 bedroom flat for sale in Military Road, North Shields, NE30 — £175,000 • 2 bed • 1 bath • 803 ft²
2 bedroom flat for sale in Victoria Avenue, Wallsend, Tyne and Wear, NE28 — £70,000 • 2 bed • 1 bath • 511 ft²


































