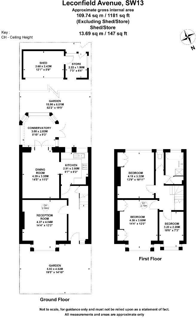
Characterful three-bedroom terrace with large southwest garden and loft potential..
- Three bedrooms with period fireplaces and bay windows
- Large south-west facing mature rear garden
- Conservatory extends ground-floor living space
- Triple glazing to main bedroom; other glazing date unknown
- Large loft with scope to convert (subject to planning)
- Solid brick walls likely without cavity insulation
- Single bathroom plus separate WC; practical family layout
- Council Tax Band F — higher annual running costs
A classic three-bedroom mid-terrace in a quiet Barnes cul-de-sac, offering authentic period character and a large south-west facing garden. The house retains original features — bay windows, picture rails and fireplaces — while practical updates include gas central heating and triple glazing to the main bedroom. The layout suits family life with a bay-fronted living room, open-plan kitchen/dining and a conservatory that opens onto the garden.
The property is freehold with good long-term potential: a large loft and scope to loft-convert, remodel or extend subject to planning permission. At around 1,181 sq ft, rooms are comfortable and flexible; there is useful under-stair storage, an airing cupboard and separate WC. Local amenities are excellent — Barnes Village, riverside walks, parks and strong schools are all within easy reach.
Buyers should note a few practical considerations: the brick walls are likely uninsulated (as built), glazing dates partly unknown, and the house has a single main bathroom plus separate WC. Council Tax sits in Band F, so running costs will be higher than average. Taken together, the house offers a characterful family home in a very affluent area with clear scope to increase space and value with sympathetic renovation.
 3 bedroom end of terrace house for sale in White Hart Lane, Barnes, London, SW13 — £995,000 • 3 bed • 2 bath • 1288 ft²
 3 bedroom end of terrace house for sale in White Hart Lane, Barnes, London, SW13 — £995,000 • 3 bed • 2 bath • 1288 ft² 3 bedroom terraced house for sale in Treen Avenue, Barnes, London, SW13 — £1,100,000 • 3 bed • 2 bath • 1123 ft²
 3 bedroom terraced house for sale in Treen Avenue, Barnes, London, SW13 — £1,100,000 • 3 bed • 2 bath • 1123 ft² 3 bedroom terraced house for sale in White Hart Lane, Barnes, SW13 — £1,100,000 • 3 bed • 2 bath • 1104 ft²
 3 bedroom terraced house for sale in White Hart Lane, Barnes, SW13 — £1,100,000 • 3 bed • 2 bath • 1104 ft² 2 bedroom semi-detached house for sale in Treen Avenue, Barnes, SW13 , SW13 — £1,000,000 • 2 bed • 1 bath • 840 ft²
 2 bedroom semi-detached house for sale in Treen Avenue, Barnes, SW13 , SW13 — £1,000,000 • 2 bed • 1 bath • 840 ft² 3 bedroom semi-detached house for sale in Priory Gardens, Barnes, SW13 — £1,100,000 • 3 bed • 2 bath • 1251 ft²
 3 bedroom semi-detached house for sale in Priory Gardens, Barnes, SW13 — £1,100,000 • 3 bed • 2 bath • 1251 ft² 3 bedroom terraced house for sale in Treen Avenue, Barnes, London, SW13 — £1,325,000 • 3 bed • 2 bath • 1218 ft²
 3 bedroom terraced house for sale in Treen Avenue, Barnes, London, SW13 — £1,325,000 • 3 bed • 2 bath • 1218 ft²






































































