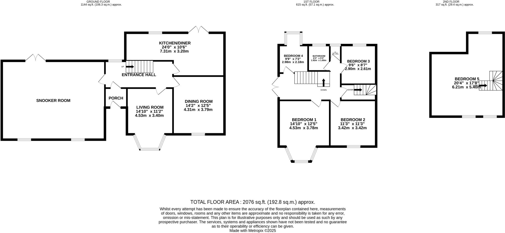
Extended family home with scenic elevated views and versatile living spaces.
- Five bedrooms including loft conversion
- Modern open-plan kitchen-diner with integrated appliances
- Two balconies with wide countryside and Twmbarlwm views
- Snooker room/bar and multiple reception rooms with original features
- Two driveways, integral garage and additional basement storage
- Only one full bathroom for five bedrooms; two separate WCs
- Likely cavity walls without added insulation; glazing dates unknown
- Council Tax Band F; higher ongoing running costs
This substantial five-bedroom semi offers classic 1930s character with large, flexible living space for a growing family. High ceilings, original panelling and multiple reception rooms create a distinguished feel, while a modern open-plan kitchen-diner provides a practical hub for daily life and entertaining.
The house has been significantly extended, including a loft conversion, and benefits from two driveways, an integral garage, basement storage and a separate utility room — useful for multi-car households and storage-heavy families. Two balconies deliver wide, elevated views across open countryside and Twmbarlwm, adding a rare outlook for a city-location property.
Practical considerations: there is only one full bathroom for five bedrooms and council tax sits at Band F, so running costs may be high. The property appears to have cavity walls with no added insulation (assumed) and double glazing install dates are unknown, so buyers should allow for possible energy-efficiency and insulation improvements.
Well suited to a family seeking space and character, the layout also lends itself to a multi-generational annexe or rental opportunity. Early viewing is recommended to appreciate the scope, views and the substantial footprint this rare-to-market home provides.
 6 bedroom semi-detached house for sale in Clevedon Road, Newport, NP19 — £550,000 • 6 bed • 3 bath • 2500 ft²
 6 bedroom semi-detached house for sale in Clevedon Road, Newport, NP19 — £550,000 • 6 bed • 3 bath • 2500 ft² 4 bedroom semi-detached house for sale in Eveswell Park Road, Newport, NP19 — £350,000 • 4 bed • 1 bath • 776 ft²
 4 bedroom semi-detached house for sale in Eveswell Park Road, Newport, NP19 — £350,000 • 4 bed • 1 bath • 776 ft² 5 bedroom detached house for sale in Ridgeway, Newport, NP20 — £750,000 • 5 bed • 3 bath • 2185 ft²
 5 bedroom detached house for sale in Ridgeway, Newport, NP20 — £750,000 • 5 bed • 3 bath • 2185 ft² 4 bedroom semi-detached house for sale in Dewsland Park Road, Newport. NP20 4EF, NP20 — £295,000 • 4 bed • 2 bath • 1283 ft²
 4 bedroom semi-detached house for sale in Dewsland Park Road, Newport. NP20 4EF, NP20 — £295,000 • 4 bed • 2 bath • 1283 ft² 7 bedroom terraced house for sale in Stow Hill, Newport, NP20 — £410,000 • 7 bed • 7 bath • 2351 ft²
 7 bedroom terraced house for sale in Stow Hill, Newport, NP20 — £410,000 • 7 bed • 7 bath • 2351 ft² 5 bedroom detached house for sale in Allt-yr-yn Avenue, Newport, NP20 — £550,000 • 5 bed • 2 bath • 2491 ft²
 5 bedroom detached house for sale in Allt-yr-yn Avenue, Newport, NP20 — £550,000 • 5 bed • 2 bath • 2491 ft²






















































































































































































