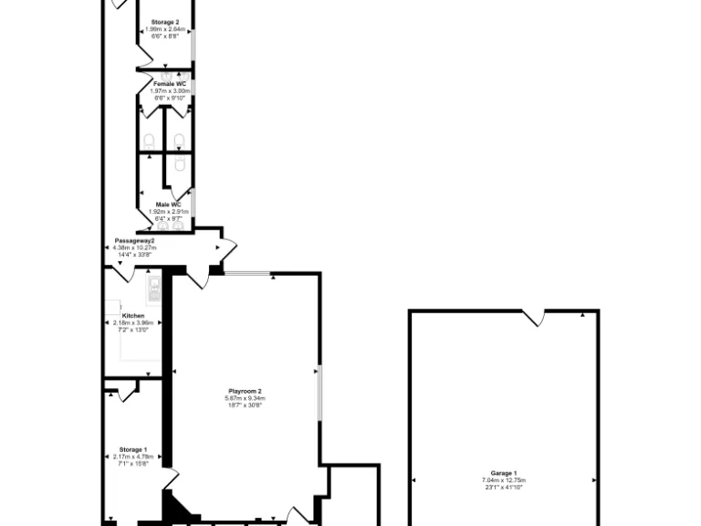
Detached single-storey former training centre, approx. 2,630 sq ft
Freehold with garage and parking; site about 0.115 acres
Central Street village location near shops, cafes and leisure
Vacant and to be sold at auction — study the legal pack carefully
No flood risk; excellent mobile signal and fast broadband
Single-storey layout may limit subdivision; likely need consents
Mid-20th-century fabric — refurbishment and maintenance required
Popular village setting but average local crime and area deprivation
A substantial single-storey detached former St John Ambulance hall occupying about 2,630 sq ft on a roughly 0.115-acre plot in the centre of Street. The freehold building is vacant and will be offered at auction, presenting a clear opportunity for an investor, community group or developer prepared to adapt a single-storey structure for a new use.
The property’s strengths are its size, central village location close to shops and leisure facilities, and included garage/outhouse and parking. Practical details also work in its favour: no flood risk, excellent mobile signal and fast broadband, and straightforward road access to the A39 and M5 for wider connectivity.
Buyers should note this is a mid-20th-century single-storey building that formerly served as a training centre. It will require refurbishment and likely repurposing; conversion to multiple dwellings would be constrained by the single-storey layout and may need planning consent or change-of-use approvals. The property is sold at auction and is vacant—buyers must study the legal pack and factor in renovation costs and any planning risk.
For the right buyer this site offers substantial scope: keep as a single commercial/community space, remodel to a bespoke residence, or explore redevelopment subject to planning. The immediacy of auction sale and freehold tenure makes this an attractive, clear-title project for those ready to invest in refurbishment and obtain any necessary consents.
Mixed use property for sale in St. John Ambulance, 5 Park Road, Street, BA16 — £180,000 • 1 bed • 1 bath • 2630 ft²
3 bedroom semi-detached house for sale in Aquara Close, Street, Somerset, BA16 — £260,000 • 3 bed • 1 bath • 889 ft²
4 bedroom detached house for sale in Westacre, Street, BA16 — £400,000 • 4 bed • 1 bath • 1231 ft²
3 bedroom detached house for sale in Old Wells Road, Glastonbury, Somerset, BA6 — £275,000 • 3 bed • 1 bath • 1154 ft²
4 bedroom detached house for sale in Meadow Close, Street, BA16 — £389,950 • 4 bed • 2 bath • 1275 ft²
2 bedroom semi-detached house for sale in Pine Close, Street, Somerset, BA16 — £219,950 • 2 bed • 1 bath • 797 ft²


















































































