Characterful one-bedroom flat with sea views in central St. Leonards — ideal first home or investor buy.
Sea views from the dual-aspect, bay-window living room
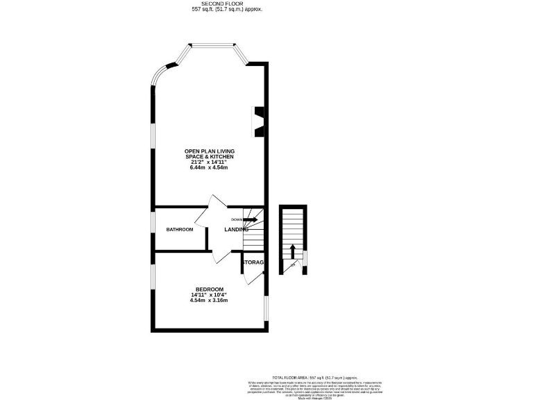
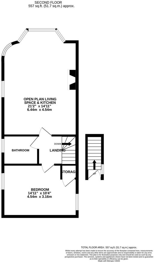
Large open-plan reception and modern fitted kitchen
Victorian features: high ceilings, sash bay window, feature fireplace
557 sq ft; one double bedroom, one bathroom
Leasehold with 125 years remaining; ground rent £250
No private garden or allocated parking on site
High local crime rates and very deprived area score
Broadband speeds slow; mobile signal excellent
Set on London Road in central St. Leonards-On-Sea, this well-presented one-bedroom flat combines Victorian character with modern convenience. The bright open-plan living space features a large bay window, high ceilings and a feature fireplace, while a contemporary fitted kitchen and stylish bathroom complete the accommodation. Sea views from the front elevation underline the property’s coastal appeal.
The 557 sq ft layout suits a first-time buyer, couple or buy-to-let investor seeking a low-maintenance city-side pied-à-terre. Practical benefits include double glazing, gas central heating with boiler and radiators, and a long lease of 125 years. Council tax is very low, and mobile signal is excellent for remote working.
Be aware of material location factors: the area records high crime levels and ranks very deprived on local indices, with slow broadband speeds. There is no private outdoor space or allocated parking. The flat is leasehold with a small ground rent of £250; prospective purchasers should check service charges and confirm any communal maintenance responsibilities.
Overall this compact, characterful flat offers strong seaside appeal and rental potential thanks to its central location near shops, eateries and the mainline station. It will particularly suit buyers prioritising lifestyle by the sea or investors targeting steady demand, but those needing fast broadband, parking or private outdoor space should note the limits.
1 bedroom flat for sale in Norman Road, St. Leonards-On-Sea, TN38 — £185,000 • 1 bed • 1 bath • 573 ft²
1 bedroom flat for sale in Maze Hill Terrace, St. Leonards-On-Sea, TN38 — £190,000 • 1 bed • 1 bath • 483 ft²
1 bedroom flat for sale in St. Margarets Road, St Leonards-On-Sea, TN37 — £145,000 • 1 bed • 1 bath • 667 ft²
1 bedroom flat for sale in Stockleigh Road, St. Leonards-On-Sea, TN38 — £150,000 • 1 bed • 1 bath • 325 ft²
1 bedroom flat for sale in Carisbrooke Road, St. Leonards-On-Sea, TN38 — £180,000 • 1 bed • 1 bath • 458 ft²
1 bedroom flat for sale in London Road, St. Leonards-On-Sea, TN37 — £170,000 • 1 bed • 1 bath • 563 ft²


















































