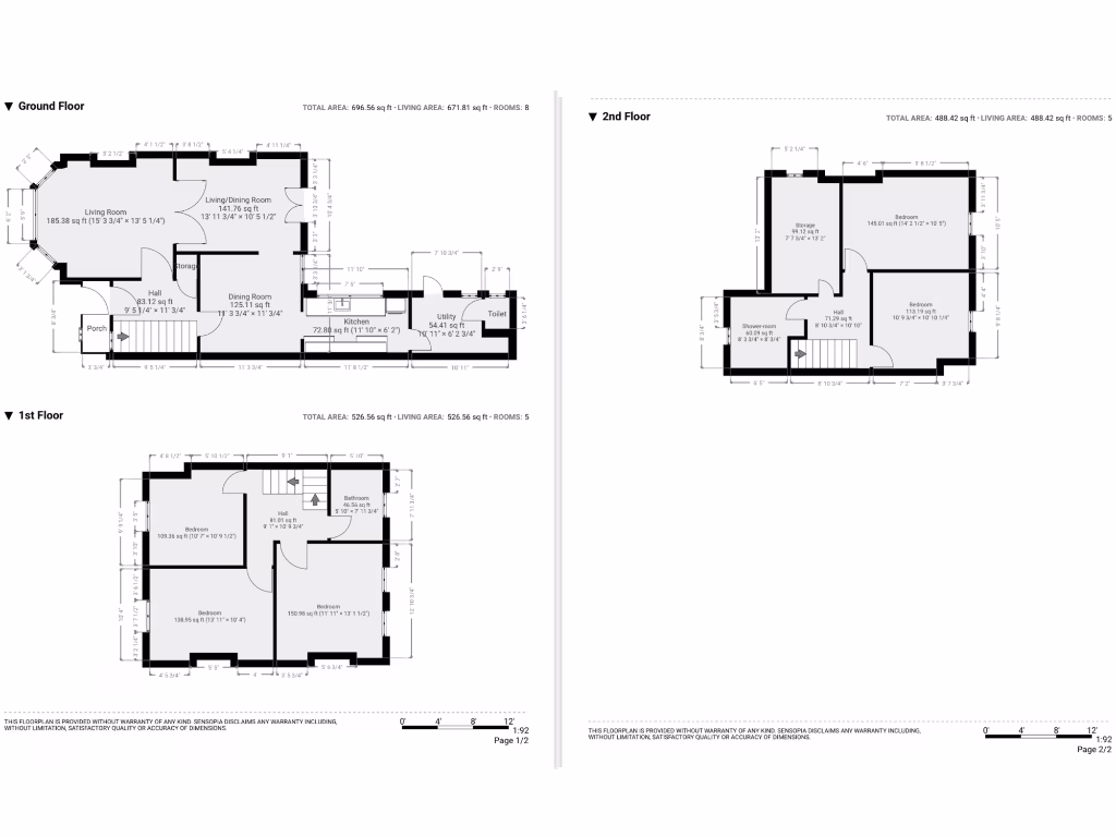
**Property Highlights:**
- Five spacious bedrooms and two bathrooms
- Well-presented Victorian semi-detached design with period features
- Generous living spaces across three floors
- Front and back gardens, perfect for family activities
- Located in a sought-after area close to amenities, schools, and transport links
- Freehold property, council tax band D, and chain-free
- Potential for renovations or personal updates
Welcome to this charming 5-bedroom end-terrace home that beautifully combines spacious family living with classic Victorian charm. With a well-thought-out layout spread over three floors, this residence is ideal for families seeking comfort and versatility. The ground floor features an inviting hallway leading to cozy lounges and a functional kitchen/diner. Versatility continues with additional living spaces for a study, playroom, or guest area, along with a utility and convenient downstairs W.C.
Upstairs, discover three generously-sized bedrooms along with a family bathroom, perfect for rest and relaxation. The top floor offers two additional bedrooms and a shower room, ideal for older children or guests seeking privacy. Generous storage options and loft access add to the appeal.
The inviting front and back gardens provide manageable outdoor spaces for relaxation, while ample on-street parking ensures convenience for residents and visitors alike. Nestled in an affluent and community-oriented neighborhood, you’ll be close to reputable schools and essential amenities, making it a perfect choice for families. Don’t miss out on this fantastic opportunity—homes in this sought-after area like this don’t stay on the market for long!
5 bedroom terraced house for sale in Bedford Road, Birkenhead, Wirral, CH42 — £270,000 • 5 bed • 2 bath • 1748 ft²
5 bedroom semi-detached house for sale in Manor Road, Wallasey, Wirral, CH45 — £325,000 • 5 bed • 2 bath • 2311 ft²
5 bedroom semi-detached house for sale in Meddowcroft Road, Wallasey, Wirral, CH45 — £250,000 • 5 bed • 4 bath • 2007 ft²
5 bedroom semi-detached house for sale in Gerard Road, Wallasey, Wirral, CH45 — £290,000 • 5 bed • 1 bath • 1681 ft²
5 bedroom end of terrace house for sale in Sandringham Avenue, Waterloo, Merseyside, L22 — £390,000 • 5 bed • 1 bath • 1945 ft²
5 bedroom terraced house for sale in Church Road, West Kirby, Wirral, CH48 — £525,000 • 5 bed • 2 bath • 1988 ft²










































































































































