Spacious four-bed with bay-window dining and flexible upper-floor bedrooms.
Chain-free new build with 10-year NHBC Buildmark policy
This three-storey, four-bedroom semi-detached new build (The Cartwright) offers flexible family living across 1,228 sq ft. The ground floor centres on a bright open-plan kitchen/dining space with a feature bay window and French doors opening onto the rear garden, while a dual-aspect living room provides a separate family sitting area. Practical touches include an understairs cupboard and a cloakroom by the front door.
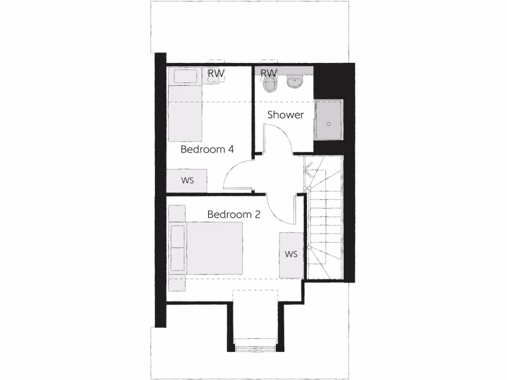
The first floor houses the principal bedroom with an en suite, a second bedroom and the family bathroom, making this level well suited to parents and a home office. The second floor adds two further bedrooms and a separate shower room — ideal for older children, guests or a hobby room. The home is sold chain-free with a 10-year NHBC Buildmark policy and built by a 5-Star HBF-rated builder.
Location and running costs are important to note. The development sits within a largely deprived local area and an estate management charge applies (£145.38). Private parking isn't shown in the listing and the front garden is modest, which may matter if off-street parking or larger outdoor space are priorities. Council tax band is yet to be confirmed.
Overall this is a modern, energy-efficient new home aimed at families and first-time buyers who value three-storey layout and low-maintenance move-in condition, with the reassurance of warranty cover and recent builder credentials.
2 bedroom end of terrace house for sale in Caddie Road
Salford
Greater Manchester
M38 9XH, M38 — £234,995 • 2 bed • 1 bath • 668 ft²
3 bedroom detached house for sale in Caddie Road
Salford
Greater Manchester
M38 9XH, M38 — £354,995 • 3 bed • 1 bath • 970 ft²
4 bedroom detached house for sale in Caddie Road
Salford
Greater Manchester
M38 9XH, M38 — £404,995 • 4 bed • 1 bath • 1153 ft²
3 bedroom semi-detached house for sale in Caddie Road
Salford
Greater Manchester
M38 9XH, M38 — £274,995 • 3 bed • 1 bath • 788 ft²
3 bedroom detached house for sale in Caddie Road
Salford
Greater Manchester
M38 9XH, M38 — £369,995 • 3 bed • 1 bath • 1061 ft²
2 bedroom terraced house for sale in Caddie Road
Salford
Greater Manchester
M38 9XH, M38 — £226,995 • 2 bed • 1 bath • 668 ft²


















































