Modern one-bedroom close to Thameslink, ready to personalise.
Chain-free top-floor apartment with wrap-around balcony
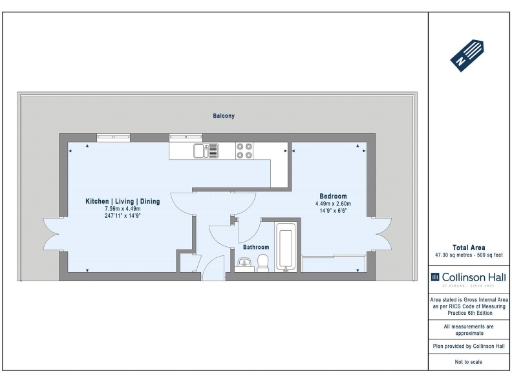
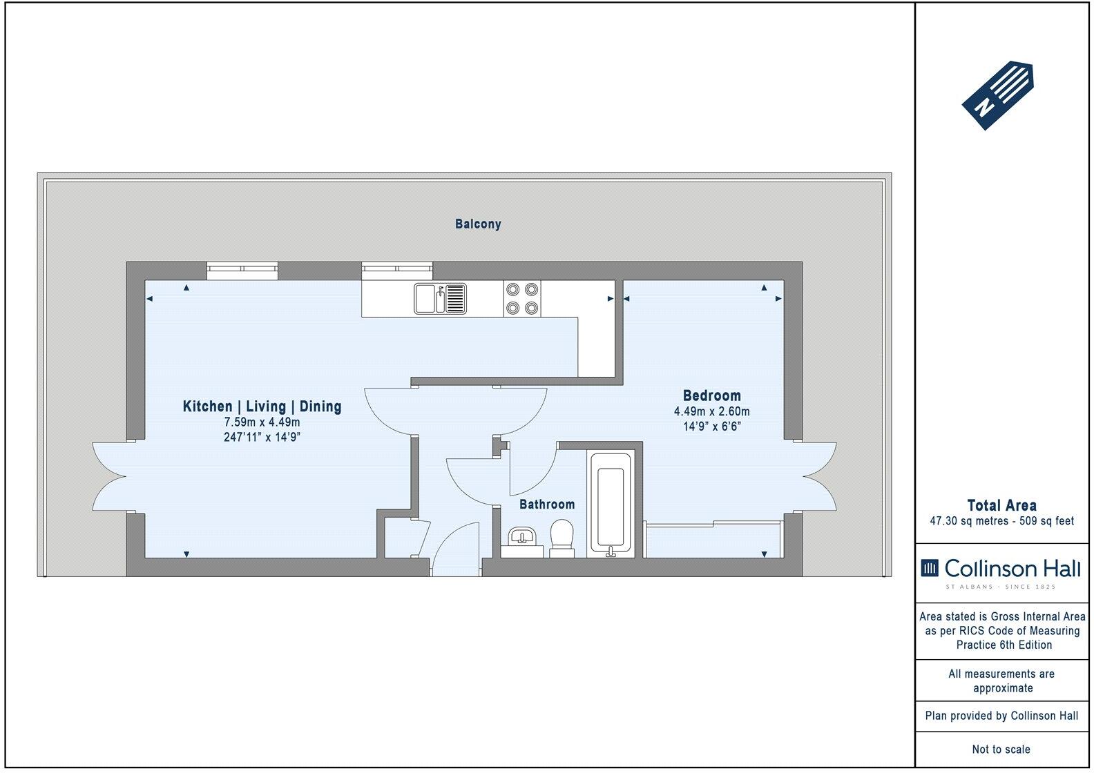
This chain-free top-floor apartment offers a bright, modern one-bedroom home with a rare wrap-around balcony overlooking mature trees and the town. The open-plan living area and double bedroom both open onto the terrace, creating generous indoor-outdoor flow for morning coffee or evening views across St Albans. Secure underground parking is included — a valuable city-centre convenience.
Set in a contemporary development a short walk from St Albans Thameslink Station and the city centre, the flat suits a first-time buyer or investor seeking easy commuting and reliable rental appeal. The long lease (979 years remaining) removes typical leasehold concerns and the property sits in a very affluent, low-crime area with good local schools close by.
Internally the apartment is tidy but compact and would benefit from modest updating and improved fitted storage to maximise space. Communal grounds are limited, so outdoor amenity mainly comes from the private balcony. Broadband speeds are average, though mobile signal is excellent. Council Tax is band C.
1 bedroom apartment for sale in Charrington Place, St. Albans, Hertfordshire, AL1 — £325,000 • 1 bed • 1 bath • 402 ft²
1 bedroom apartment for sale in Grosvenor Road, St. Albans, Hertfordshire, AL1 — £350,000 • 1 bed • 1 bath • 560 ft²
1 bedroom apartment for sale in Charrington Place, St. Albans, Hertfordshire, AL1 — £325,000 • 1 bed • 1 bath • 459 ft²
2 bedroom apartment for sale in London Road, St. Albans, Hertfordshire, AL1 — £375,000 • 2 bed • 2 bath • 872 ft²
1 bedroom apartment for sale in Charrington Place, St. Albans, Hertfordshire, AL1 — £325,000 • 1 bed • 1 bath • 420 ft²
1 bedroom apartment for sale in Alban Court, Burleigh Road, St. Albans, AL1 — £290,000 • 1 bed • 1 bath • 481 ft²






































