**Standout Features:**
- Sought-after cul-de-sac location
- Spacious sitting/dining room
- Hard-landscaped rear garden
- Perfect for first-time buyers or investment
- Chain-free sale with off-street parking
- Located in an affluent area with low crime rates
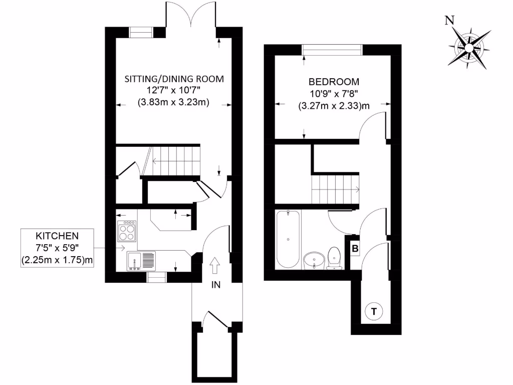
**Property Overview:**
Discover this charming one-bedroom terraced home, ideally suited for first-time buyers or savvy investors. Nestled in a desirable cul-de-sac, this property boasts a spacious sitting/dining room, a cozy kitchen featuring dated wood cabinets, and a comfortable double bedroom complemented by a modern bathroom. With its hard-landscaped rear garden, you can enjoy low-maintenance outdoor living, making it perfect for those with busy lifestyles. The home benefits from off-street parking and is set in a peaceful, affluent neighborhood with strong community ties.
With a total area of 474 sq ft, this property provides a comfortable living space while still offering potential for personal touch updates or investments in future renovations. Tring's charming town center, enriched with independent shops and eateries, is just a stone's throw away, complemented by top-rated schools and excellent transport links to London, making this location highly appealing.
Don't miss the opportunity to secure your first home or investment in this exclusive area—properties like this, especially chain-free ones, are rarely available for long!
1 bedroom terraced house for sale in Hunters Close, Tring, HP23 — £225,000 • 1 bed • 1 bath • 692 ft²
1 bedroom terraced house for sale in Grove Gardens, Tring, HP23 — £305,000 • 1 bed • 1 bath • 445 ft²
1 bedroom terraced house for sale in Tring, HP23 — £230,000 • 1 bed • 1 bath • 450 ft²
1 bedroom end of terrace house for sale in Pheasant Close, Tring, HP23 — £300,000 • 1 bed • 1 bath • 453 ft²
3 bedroom end of terrace house for sale in Longfield Road, Tring, HP23 — £499,950 • 3 bed • 1 bath • 786 ft²
3 bedroom semi-detached house for sale in Morefields, Tring, HP23 — £500,000 • 3 bed • 1 bath • 903 ft²


























