Affordable, flexible home with garden and modern fittings for first-time buyers.
Freehold mid-terrace with Victorian stone facade
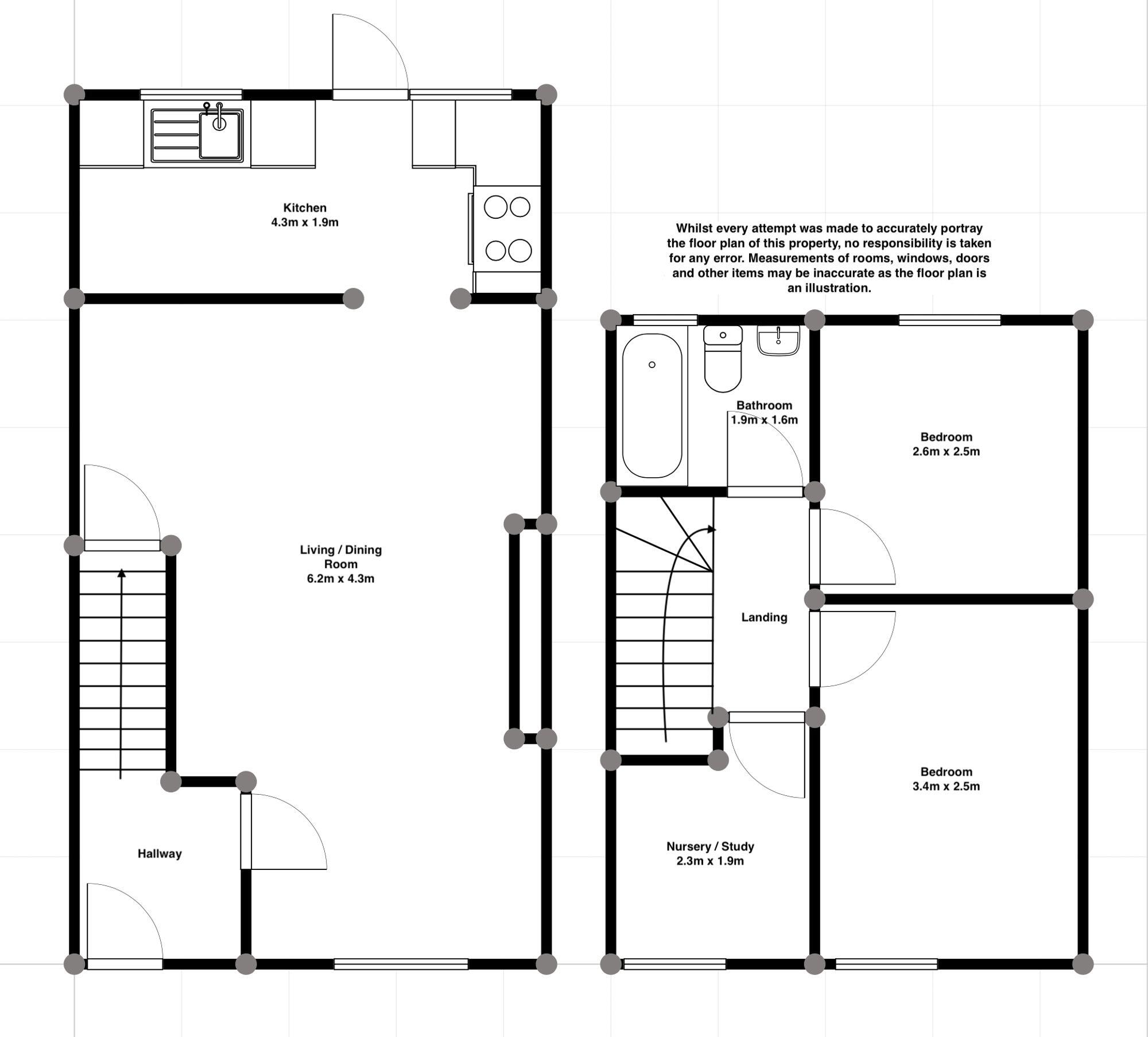
Two full-size bedrooms plus additional upstairs room for flexibility
Modern kitchen and contemporary bathroom, ready to move into
Rear garden with patio and lawn; back lane access
On-street parking; very cheap council tax
No flood risk; mains gas central heating, double glazing (pre-2002)
Area is very deprived and crime is above average
Slow broadband and likely uninsulated stone walls (energy upgrade advised)
This mid-terrace Victorian home offers practical, move-in ready living across two floors with flexible accommodation. The property has two full-size bedrooms plus an additional third room on the same upper floor — useful as a nursery, home office or dressing room. Downstairs features a generous lounge, modern kitchen and a contemporary bathroom; a rear garden with patio and lawn provides outdoor space and back lane access for convenience.
The house is freehold and roughly 678 sq ft, with double glazing installed before 2002 and gas central heating via boiler and radiators. It was constructed c.1900–1929 in traditional stone; the original wall build likely has no added cavity insulation. There is on-street parking directly outside and council tax is very cheap. Flood risk is recorded as none.
Buyers should note the surrounding area scores as very deprived with above-average crime and generally slow broadband speeds — factors that may affect resale prospects and day-to-day convenience. The property’s older stone walls are assumed uninsulated, so upgrading insulation could improve comfort and running costs. Overall, this home suits first-time buyers or small families seeking an affordable, characterful house with scope to improve energy performance and connectivity.
2 bedroom terraced house for sale in East Road, Tylorstown, Ferndale, Rhondda Cynon Taf, CF43 — £94,995 • 2 bed • 2 bath • 863 ft²
3 bedroom terraced house for sale in Brewery Street, Pontygwaith, Ferndale, Rhondda Cynon Taff, CF43 — £134,950 • 3 bed • 1 bath • 632 ft²
3 bedroom terraced house for sale in Brynmair Road, Aberdare, CF44 — £122,000 • 3 bed • 1 bath
3 bedroom terraced house for sale in Volunteer Street, Pentre, Rhondda Cynon Taff, CF41 — £130,000 • 3 bed • 1 bath • 640 ft²
3 bedroom end of terrace house for sale in Taff Street, Ferndale, Rhondda Cynon Taff, CF43 — £149,950 • 3 bed • 1 bath • 862 ft²
2 bedroom terraced house for sale in King Street, Miskin, Mountain Ash, CF45 — £155,000 • 2 bed • 1 bath • 872 ft²


































































































