Spacious two-bedroom top-floor apartment near Bermondsey Street and London Bridge.
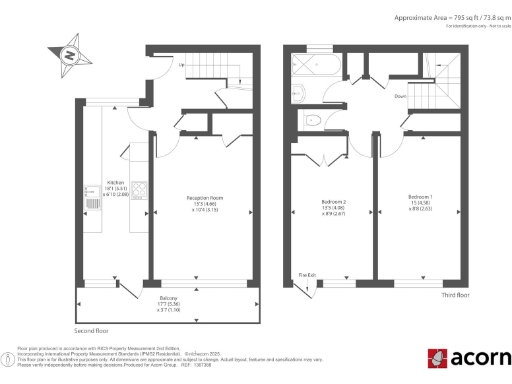
- 795 sq ft duplex with two double bedrooms
- South‑west facing reception, lots of natural light
- 18ft kitchen/diner with direct access to 18ft balcony
- Private off‑street residents parking included
- Double glazing and gas central heating throughout
- Leasehold: 93 years remaining; consider mortgage implications
- Service charge approx £1,476pa; ground rent £10pa
- Local crime level rated high; check personal security needs
Set over two floors, this well-presented 2-bedroom maisonette offers 795 sq ft of bright, flexible living in a coveted SE1 cul‑de‑sac near Bermondsey Street. The top-floor reception faces south‑west, flooding the room with light and framing elevated views over landscaped gardens; an 18ft kitchen/diner opens directly onto an 18ft private balcony — a rare suntrap for this area.
Both bedrooms are generous doubles (master c.15ft) with built-in storage, making the layout ideal for sharers or first‑time buyers wanting room to grow. The bathroom is larger than typical and a separate WC adds convenience. Practical features include double glazing, gas central heating, secure entry and residents’ off‑street parking.
This is a leasehold property with 93 years remaining. Annual service charge is approximately £1,476 and ground rent £10pa — manageable but important for mortgage and resale planning. Crime levels are reported as high in the immediate area; buyers should weigh central convenience against this local factor.
Location is a principal asset: walkable to London Bridge, Borough and Elephant & Castle transport hubs, and moments from Maltby Street market, independent restaurants, galleries and riverside amenities. For educated professionals seeking a village‑style urban base with good rental or owner‑occupier potential, this maisonette provides immediate move‑in condition and scope to personalise.
2 bedroom apartment for sale in Zeno Court, Long Walk, London, SE1 — £600,000 • 2 bed • 2 bath • 729 ft²
2 bedroom apartment for sale in Zeno Court, Long Walk, London, SE1 — £650,000 • 2 bed • 1 bath • 810 ft²
3 bedroom maisonette for sale in St. Saviours Estate, London, SE1 — £465,000 • 3 bed • 2 bath • 848 ft²
2 bedroom flat for sale in Zeno Court,
19 Long Walk, SE1 — £600,000 • 2 bed • 1 bath • 810 ft²
3 bedroom apartment for sale in St. Saviours Estate, London, SE1 — £450,000 • 3 bed • 1 bath • 865 ft²
2 bedroom apartment for sale in Redcross Way, London, SE1 — £450,000 • 2 bed • 1 bath • 595 ft²


















































































