Large town-centre shop with planning for two flats above, ideal for investor/developer..
Freehold Victorian mid-terrace in central Herne Bay
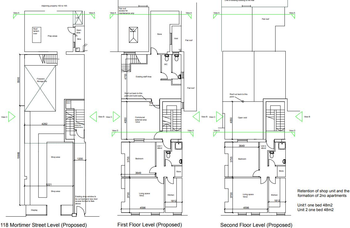
A prominent Victorian mid-terrace on Mortimer Street offering a rare freehold mixed-use opportunity in central Herne Bay. The ground floor is a large, double‑fronted retail space with high ceilings and strong footfall, well suited to retail, food or professional uses. Planning permission (CA/19/10205) is granted to convert the first and second floors into two flats, creating immediate development upside and rental potential.
The building is presented as a stripped-out, refurbishment project: large display windows and period shopfront remain, but interiors need modernisation and some visible repairs. The property has an EPC rating of D (99), solid brick walls likely without cavity insulation, and mains gas boiler heating; factor these into refurbishment costs. There is no flood risk, but the plot is small and upper-floor accommodation will be compact.
This lot is sold by the Modern Method of Auction. Bidders should note a non-refundable reservation fee (4.5% of price, minimum £6,600) and a 56-day completion period. Personal data will be shared with the auctioneer. These transactional terms, plus the very high local crime and strong area deprivation indicators, are material considerations for operators and lenders.
For investors or owner-occupiers seeking coastal town high-street exposure, the property offers clear upside from rental conversion and shop-front visibility. It is best suited to buyers prepared to budget for refurbishment, compliance works, and to proceed under auction conditions.
2 bedroom terraced house for sale in Mortimer Street, Herne Bay, CT6 — £259,000 • 2 bed • 2 bath
High street retail property for sale in Mortimer Street, Herne Bay, CT6 — £500,000 • 1 bed • 1 bath • 2939 ft²
Shop for sale in Mortimer Street, Herne Bay, CT6 — £215,000 • 1 bed • 1 bath • 581 ft²
Shop for sale in Mortimer Street, Herne Bay, CT6 — £355,000 • 1 bed • 1 bath • 3746 ft²
2 bedroom terraced house for sale in Mortimer Street, Herne Bay, CT6 — £410,000 • 2 bed • 1 bath • 1292 ft²
Office for sale in 6 and 6a New Street, Herne Bay, Kent, CT6 — £525,000 • 1 bed • 1 bath • 3303 ft²






















































