LU2 0FD - 2 bed midland road investment flat in Midland Road, LU2 0FD

View on Property Piper

2 bedroom flat for sale in Midland Road, Luton, LU2

Summary - HATTON PLACE, 118 FLAT 76 MIDLAND ROAD LUTON LU2 0FD

2 bed 2 bath Flat

Strong gross yield with long-term tenant and two bathrooms.
Private underground parking included
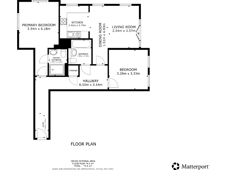
A two-bedroom apartment in a converted brick building on Midland Road, presented as a straightforward investment opportunity. The flat includes an open-plan lounge and kitchen, two bathrooms (one ensuite), private underground parking and an average overall size of about 840 sq ft. It currently produces £14,400 pa in gross income, giving a strong gross yield of about 7.9% at the listed price.

The property is leasehold and has a long-term tenant in situ who intends to remain, so buyers should expect no immediate vacant possession. The unit is well suited to investors seeking an income-producing addition to a portfolio and to developers exploring medium-term asset management or rent review potential. The building’s industrial conversion character and high ceilings add appeal to renters in this market.

Notable practical points: the area is classified as very deprived which can affect capital-growth prospects and tenant profiles, and there is no private garden — outdoor space is communal or street-facing. A buyer’s premium will apply on purchase; lease terms, service charges and the Let Property Pack should be reviewed carefully before offer. Overall, this is a clear income asset for a buyer focused on yield rather than immediate owner-occupation.

Property Details

Brochure Descriptions

Image Descriptions

Floorplan Description

Rooms

Textual Property Features

Target Audience

AI Tags

Detected Visual Features

Nearby Schools

Nearest Bars And Restaurants

,,,,}

Nearest General Shops

,,}

Nearest Grocery shops

,,}

Nearest Supermarkets

,,}

Nearest Religious buildings

,,}

Nearest Medical buildings

,,,}

Nearest Airports

}

Nearest Leisure Facilities

,,,,}

Nearest Tourist attractions

,,}

Nearest Train stations

,,,,}

Nearest Bus stations and stops

,,,,}

Nearest Hotels

,,}

Tags

Local Market Stats

AirBnB Data

Similar Properties

Meta

High Res Images

Compatible Images

Low res Images

Thumbnails

Raw Images

High Res Floorplan Images

Compatible Floorplan Images

Low res Floorplan Images

FloorplanImages Thumbnail

Raw Floorplan Images