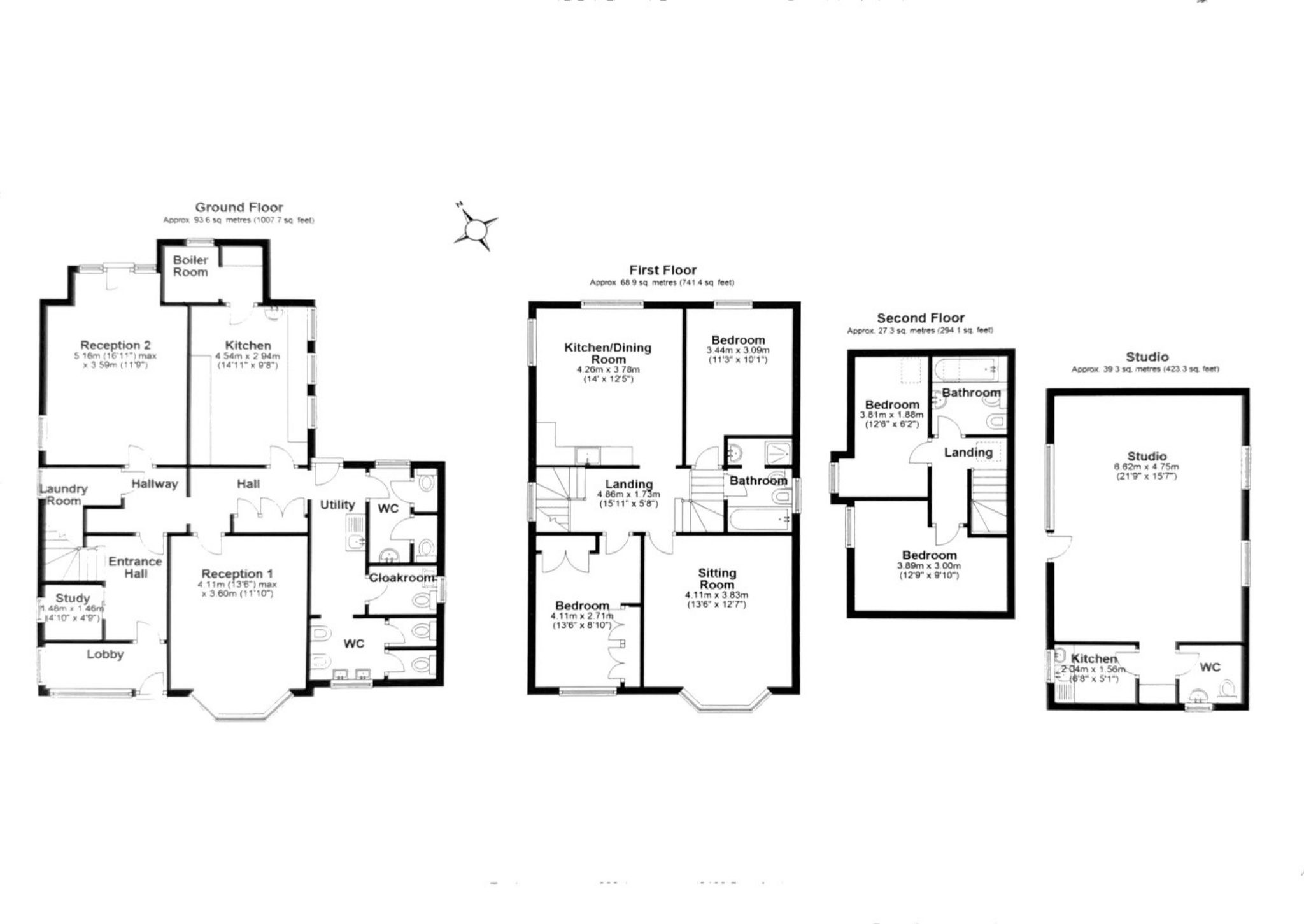
**Key Features:**
- Five spacious bedrooms plus a study
- Two kitchens (one a former commercial kitchen)
- Detached annexe with furnished living space
- Located on a generous quarter-acre plot
- Three versatile reception rooms
- Off-road parking with an in-and-out driveway
- Planning permission for an additional building
- Low crime rate in a tranquil suburban area
**Summary:**
Discover the endless possibilities with this remarkable Edwardian detached house set in the heart of Trimley St Mary. Spanning a generous quarter-acre plot, this expansive property features five well-proportioned bedrooms, two functional kitchens, and three versatile reception rooms, making it ideal for family living or potential commercial use. The property previously operated as a children's day nursery and comes with granted planning permission for an additional building, creating opportunities for further development.
The fully furnished detached annexe provides additional living space, perfect for guests or rental potential—a rare find for investors. Enjoy the convenience of multiple bathrooms and utility areas that cater to modern living while high ceilings and bay windows add character throughout the home. With ample off-road parking and an inviting garden space for family gatherings and outdoor activities, this property balances comfort and functionality effortlessly.
With excellent local amenities, low crime rates, and access to quality schools nearby, don’t miss out on this unique opportunity to make this adaptable home yours. Whether you're seeking a spacious family residence or a smart investment, this property is one you won't want to let slip away!
4 bedroom detached house for sale in High Road, Trimley St. Mary, Felixstowe, IP11 — £650,000 • 4 bed • 3 bath • 2304 ft²
3 bedroom semi-detached house for sale in High Road, Trimley St. Mary, IP11 — £330,000 • 3 bed • 2 bath • 1050 ft²
4 bedroom detached house for sale in Cordys Lane, Felixstowe, IP11 — £600,000 • 4 bed • 2 bath • 1827 ft²
4 bedroom detached house for sale in High Road, Trimley St. Mary, Felixstowe, IP11 — £550,000 • 4 bed • 3 bath • 1594 ft²
4 bedroom detached house for sale in Cordys Lane, Trimley St Mary, IP11 — £600,000 • 4 bed • 2 bath • 1776 ft²
4 bedroom detached house for sale in Faulkeners Way, Trimley St. Mary, Felixstowe, IP11 — £350,000 • 4 bed • 2 bath • 974 ft²


























































































































