GL1 1AD - 1 bed kings square freehold opportunity in Gloucester, GL1…

View on Property Piper

Office for sale in The Post Office , 28 Kings Square, GLOUCESTER, SOUTH WEST, GL1

Summary - Post Office,Kings Square,Gloucester,GL1 1AD GL1 1AD

1 bed 1 bath Office

Large central Gloucester building — retail let in place, upper floors ripe for refurbishment or conversion..
- Prominent Georgian façade with high ceilings and arched windows
- Ground floor let/part-let to Post Office Limited (new lease on part)
- Upper floors vacant and in need of full refurbishment
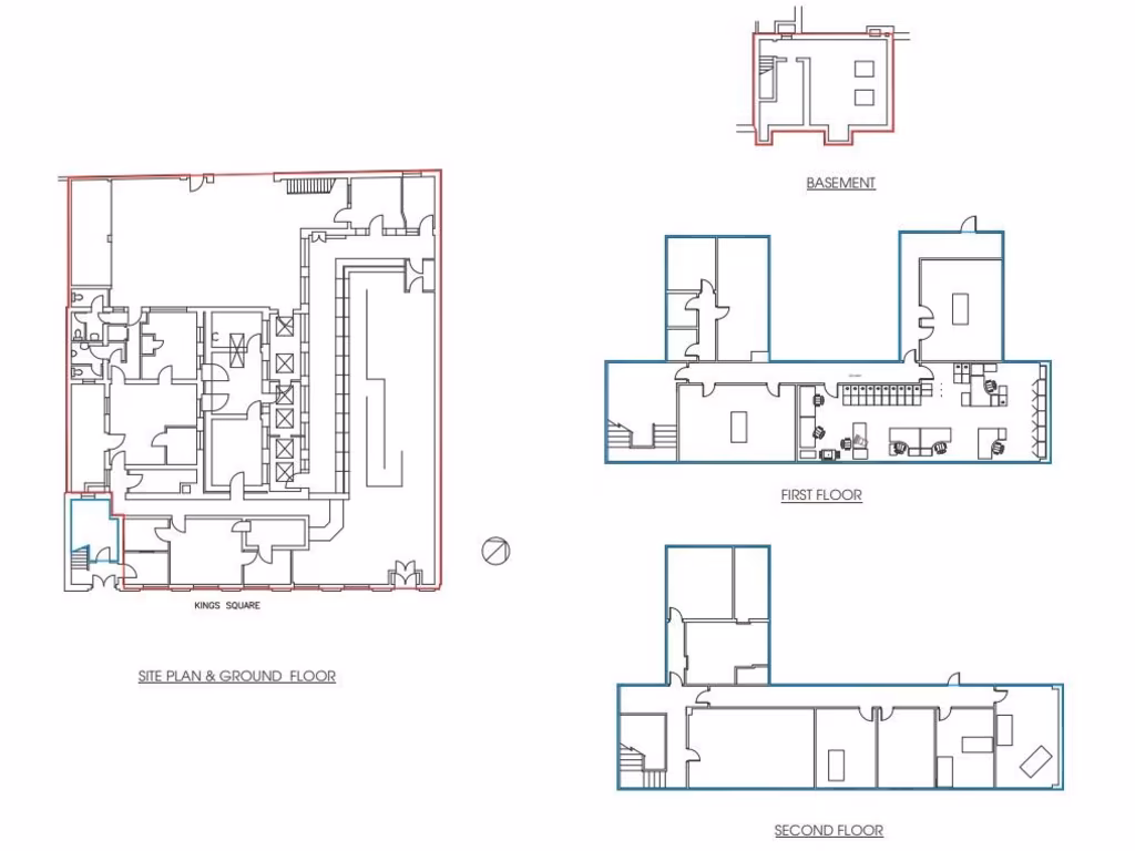
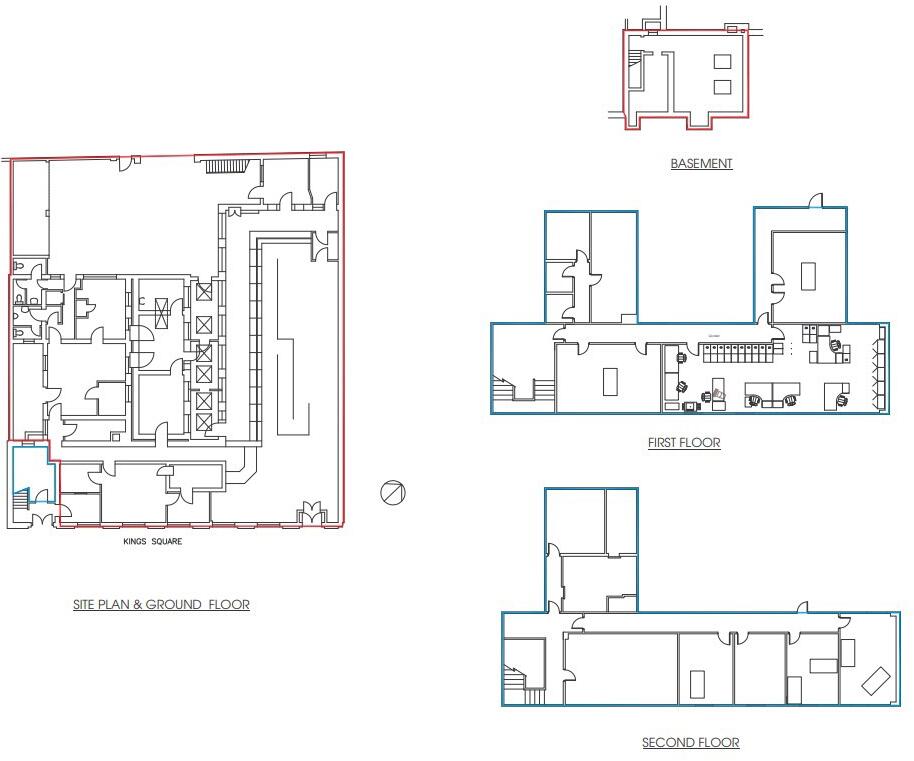
- Approx. 11,150 sq ft freehold in central Kings Square location
- Conversion to residential or alternative uses possible (subject to planning)
- EPC Band D (Display Energy Certificate Band E); purchasers to verify
- Area records very high crime and very high deprivation
- No private external amenity; public square frontage only
A prominent freehold commercial building on Kings Square, Gloucester, presenting a substantial city-centre investment and refurbishment opportunity. The ground floor is arranged for retail use with a new lease signed to Post Office Limited on part; upper floors are vacant and require full refurbishment. The property benefits from high ceilings, large arched windows and a classical Georgian façade that gives strong street presence and good passing footfall from the pedestrianised square.

This asset suits an investor or developer targeting central retail, office or mixed-use repositioning. The uppers have potential for conversion to residential or alternative Class E uses (subject to planning and purchaser verification). Practical features include wet central heating with a modern gas boiler and ground-floor air conditioning; the building is not listed and is not elected for VAT on the sale price.

Key commercial facts are straightforward: freehold, approx. 11,150 sq ft, EPC Band D (Display E), current rateable values noted and offers invited in excess of £650,000. An information pack and video tour are available; purchasers should verify planning, services and legal position themselves (upper floors previously B1 now considered within Class E and lease position includes subtenant/tenancy at will).

Buyers should balance the strong central location and conversion potential against important negatives: the uppers need renovation, the local area records very high crime and very high deprivation, and there is limited private external amenity. This is a practical redevelopment play in a busy retail/leisure pitch rather than a low-risk, turn-key asset.

Property Details

Brochure Descriptions

Image Descriptions

Textual Property Features

Target Audience

AI Tags

Detected Visual Features

Nearby Schools

Nearest Bars And Restaurants

,,,,}

Nearest General Shops

,,}

Nearest Grocery shops

,,}

Nearest Supermarkets

,,}

Nearest Religious buildings

,,}

Nearest Medical buildings

,,,}

Nearest Leisure Facilities

,,,,}

Nearest Tourist attractions

,,}

Nearest Train stations

,,,,}

Nearest Bus stations and stops

,,,,}

Nearest Hotels

,,}

Tags

Local Market Stats

AirBnB Data

Similar Properties

Meta

High Res Images

Compatible Images

Low res Images

Thumbnails

Raw Images

High Res Floorplan Images

Compatible Floorplan Images

Low res Floorplan Images

FloorplanImages Thumbnail

Raw Floorplan Images