Modern two-bedroom with concierge, gym and excellent transport links to central London.
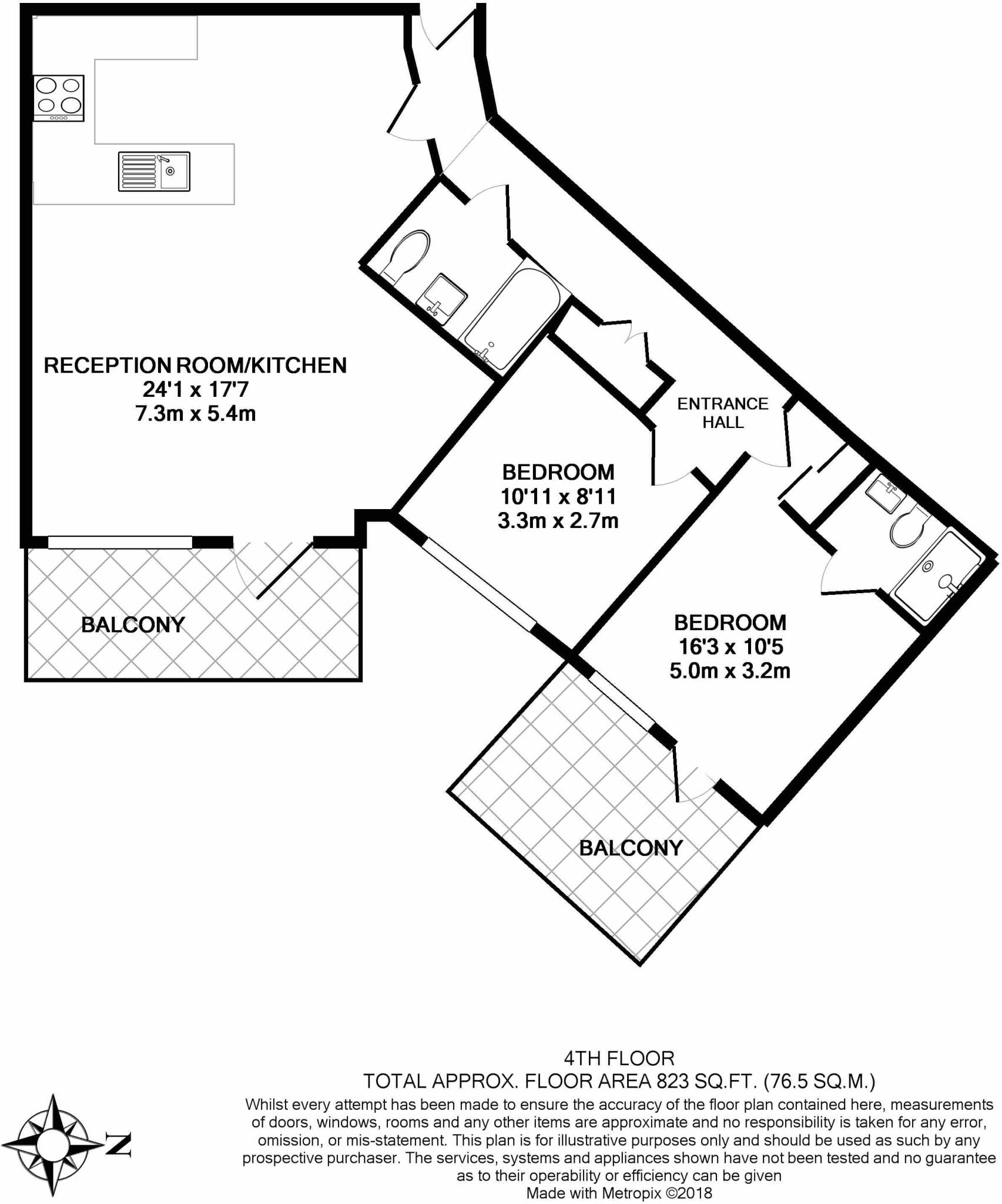
Fourth-floor two-bedroom apartment, approx. 823 sq ft
Set on the fourth floor of Lancaster House within the Sovereign Court development, this 823 sq ft two-bedroom apartment offers modern, low-maintenance living moments from Hammersmith station. Floor-to-ceiling windows, an open-plan reception and two private balconies bring light and outside access overlooking the communal gardens. The fitted kitchen, stone worktops and integrated appliances suit a stylish city lifestyle.
Comfort and convenience are strong here: underfloor heating, air conditioning, smart-home automation and an air source heat pump provide efficient year-round comfort. The development includes a 24-hour concierge, residents’ gym and well-kept communal gardens—appealing to professionals seeking secure, managed living in Zone 2.
Practical points are straightforward: the lease is long (c.989 years) and the property is ready for immediate occupation or rental. However, ownership comes with a higher-than-average service charge (£4,490 pa) and an annual ground rent (£300). Council tax is in an expensive band and the local crime level is recorded as very high—buyers should consider security and insurance implications.
This apartment suits buyers who prioritise transport links, on-site amenities and a turnkey finish—either professionals commuting across central London or investors targeting strong rental demand. The property’s modern specification and communal management reduce maintenance tasks but incur ongoing charges that must be factored into running costs.
2 bedroom apartment for sale in Beadon Road, Hammersmith, W6 — £900,000 • 2 bed • 2 bath • 832 ft²
2 bedroom apartment for sale in Beadon Road, London, W6 — £895,000 • 2 bed • 2 bath • 893 ft²
2 bedroom flat for sale in Montpellier House, Sovereign Court, Glenthorne Road, London, W6 — £925,000 • 2 bed • 2 bath • 753 ft²
2 bedroom apartment for sale in Matcham House, Glenthorne Road, London, W6 — £1,180,000 • 2 bed • 2 bath • 939 ft²
3 bedroom apartment for sale in Glenthorne Road, Hammersmith, W6 — £1,500,000 • 3 bed • 3 bath • 1572 ft²
3 bedroom apartment for sale in Beadon Road Hammersmith W6 — £1,900,000 • 3 bed • 2 bath • 1251 ft²










































































