Spacious village home with large private garden and gated driveway.
Executive four-bedroom detached house in quiet cul-de-sac
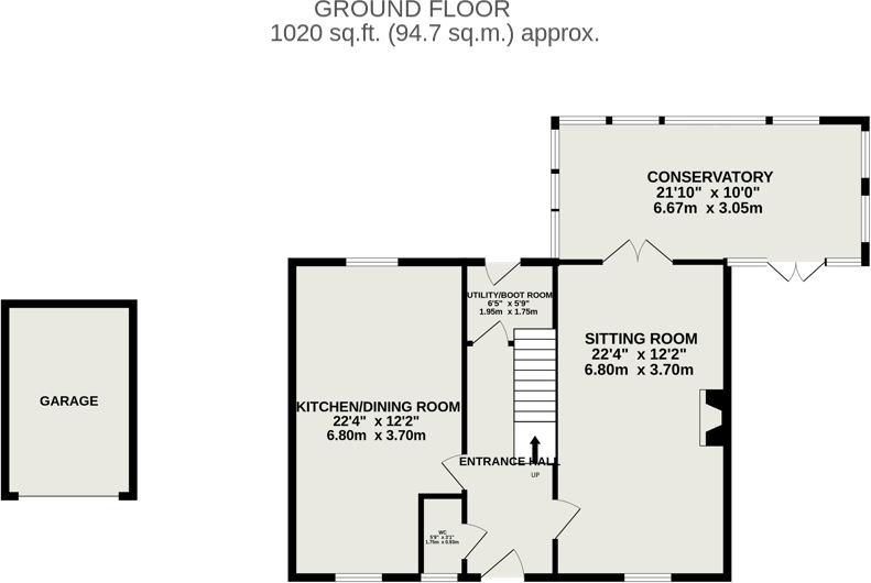
An executive four-bedroom detached house positioned at the head of a quiet cul-de-sac in Bishops Lydeard. The layout centres on a long open-plan kitchen/dining room, a spacious sitting room with feature fireplace and a full-length conservatory that opens onto a large, private rear garden and patio — ideal for family entertaining and outdoor life in the countryside.
The property is presented with practical features: gated paved driveway, enclosed walled gardens, utility/boot room, double glazing and gas central heating. The master bedroom includes fitted wardrobes and an en-suite; three further double bedrooms also have fitted storage. It is offered chain free on freehold tenure and sits in a very affluent, low-crime village with good local amenities and rail links to Taunton.
Honest considerations: the finish is traditional and, while well-maintained, would benefit from updating in places to maximise value. Broadband speeds are average for the area and council tax is above average. Overall this is a spacious family home on a large plot with clear potential for modernising to suit contemporary tastes.
4 bedroom detached house for sale in Taunton Road, Bishops Lydeard, Taunton, TA4 — £500,000 • 4 bed • 2 bath • 2091 ft²
4 bedroom semi-detached house for sale in Glanfield Close - Bishops Lydeard, TA4 — £335,000 • 4 bed • 2 bath • 1334 ft²
3 bedroom link detached house for sale in Greenway Road, Bishops Lydeard, Taunton, TA4 — £400,000 • 3 bed • 1 bath • 1411 ft²
3 bedroom detached house for sale in Hither Mead, Bishops Lydeard, TA4 — £369,950 • 3 bed • 1 bath • 1098 ft²
5 bedroom detached house for sale in Station Green, Bishops Lydeard, Taunton, Somerset, TA4 — £520,000 • 5 bed • 4 bath • 657 ft²
4 bedroom detached house for sale in Stawell Road, Bishops Lydeard, Taunton, TA4 — £385,000 • 4 bed • 2 bath • 1367 ft²






















































































































