Spacious plot with garage and uninterrupted field views ideal for family living.
Detached four-bedroom bungalow on a very large plot with field views
Triple roller-shutter garage with power, lighting and large private driveway
Period build (pre-1900) with character features and flexible layout
EPC rating D; solid brick walls likely without cavity insulation
Medium flood risk for the area — check insurance and local advice
Double glazing present but installation date unknown; slow broadband
Mains gas boiler and radiators provide central heating
Village location close to good primary schools and local amenities
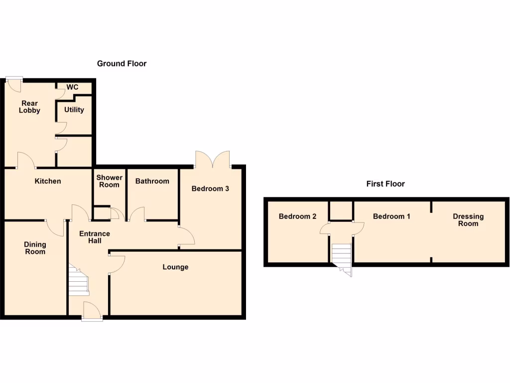
Set on a very large plot on Stockwith Road, this detached four-bedroom bungalow offers generous living space and uninterrupted field views in a quiet village setting. The house combines period character with practical upgrades — double glazing, mains gas central heating and a substantial triple roller-shutter garage with power and lighting — making it suitable for families seeking space and countryside access.
Accommodation is flexible across two levels, with principal living rooms on the ground floor and additional bedrooms and a dressing room/office area upstairs. The large gardens front and rear provide room for children, gardening or home projects, while the private driveway offers ample parking for multiple vehicles.
Buyers should note a few material considerations: the property was built before 1900 with solid brick walls assumed to lack cavity insulation, the EPC is D, and the double glazing install date is unknown. There is a medium flooding risk for the area and broadband speeds are reported as slow — factors to consider for insurance, energy running costs and working from home.
This home suits families seeking rural life with nearby village amenities, good local primary schools and excellent access to surrounding countryside. It also presents refurbishment potential for buyers wanting to invest in thermal upgrades and modernisation to improve efficiency and value.
3 bedroom detached house for sale in Canal Lane, West Stockwith, Doncaster, DN10 — £285,000 • 3 bed • 1 bath • 1434 ft²
4 bedroom bungalow for sale in Park Lane, Doncaster, DN9 — £375,000 • 4 bed • 1 bath • 995 ft²
3 bedroom detached bungalow for sale in Waverney, Scunthorpe, DN17 — £410,000 • 3 bed • 1 bath • 2123 ft²
4 bedroom detached house for sale in Front Street, East Stockwith, DN21 — £280,000 • 4 bed • 2 bath • 1077 ft²
3 bedroom detached house for sale in High Street. Kexby, Gainsborough, DN21 — £330,000 • 3 bed • 1 bath
4 bedroom detached house for sale in Gringley Road, Misterton, DN10 — £425,000 • 4 bed • 2 bath • 2055 ft²


















































































