**Standout Features:**
- Chain-free sale for quick and easy purchase
- Two spacious double bedrooms
- Close proximity to Aldershot Train Station (less than 0.2 miles)
- Modern, well-sized kitchen with island and appliances
- Enclosed rear garden
- Great access to A331/M3/A3 for commuters
- Local amenities include schools and parks within the area
- Affordable Council Tax Band C
**Property Description:**
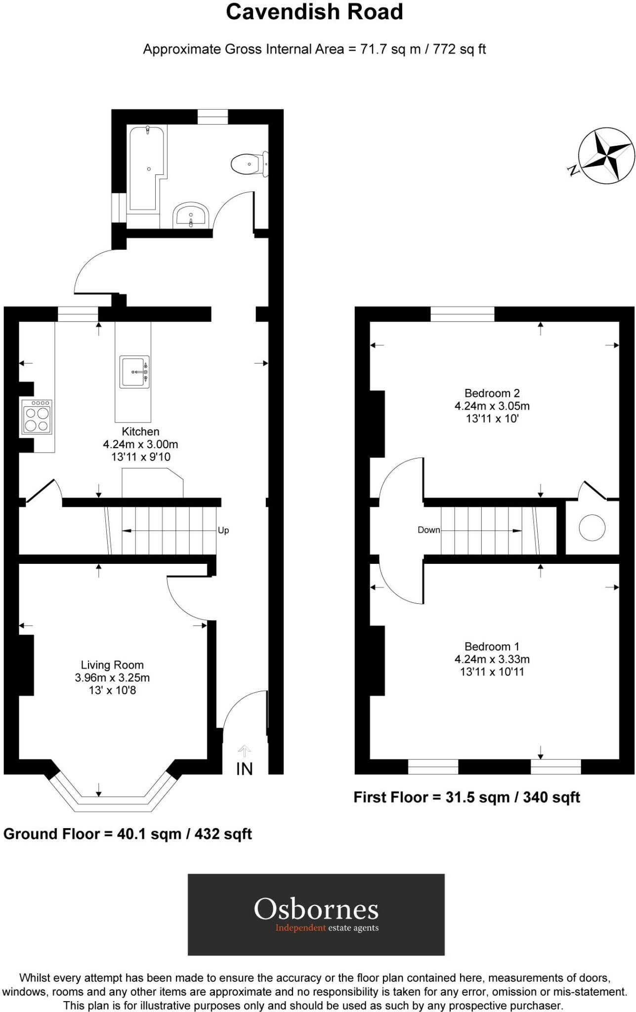
Discover the potential of this charming mid-terrace Victorian house, offering a fantastic opportunity for first-time buyers or investors seeking value in a competitive market. With two double bedrooms on the upper level and a generous living space below, this home requires modernization, allowing you to personalize it to your style while increasing its value. Located conveniently in the city center, just a short walk from the train station, this property excels in accessibility and convenience.
Despite its average size of 772 square feet, the layout includes a bright kitchen/breakfast room and an enclosed rear garden, perfect for creating a peaceful outdoor retreat. The surrounding area is a lively cultural mix, providing easy access to various amenities including schools recognized for their high Ofsted ratings. While the property may show signs of needing renovation and some maintenance due to its age, its freehold status and potential for renovations present an exciting canvas for homeowners eager to invest in their future. Don't miss out—properties like this, with such potential and location, are rare and won't last long!
2 bedroom terraced house for sale in Ash Road, Aldershot, Hampshire, GU12 — £280,000 • 2 bed • 1 bath • 564 ft²
2 bedroom house for sale in Connaught Road, Aldershot, GU12 — £330,000 • 2 bed • 1 bath • 901 ft²
2 bedroom terraced house for sale in Beaumont Grove, Aldershot, Hampshire, GU11 — £280,000 • 2 bed • 1 bath • 548 ft²
2 bedroom end of terrace house for sale in Belle Vue Road, Aldershot, Hampshire, GU12 — £300,000 • 2 bed • 1 bath • 540 ft²
2 bedroom terraced house for sale in Highland Road, Aldershot, GU12 — £275,000 • 2 bed • 1 bath • 827 ft²
2 bedroom terraced house for sale in St. Josephs Road, Aldershot, Hampshire, GU12 — £290,000 • 2 bed • 1 bath • 570 ft²






























