Spacious plot with renovation potential near schools and rail links.
Quiet cul-de-sac location with wrap-around garden and decent plot size
Vacant, chain-free — first sale since 1968
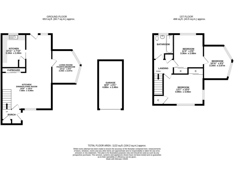
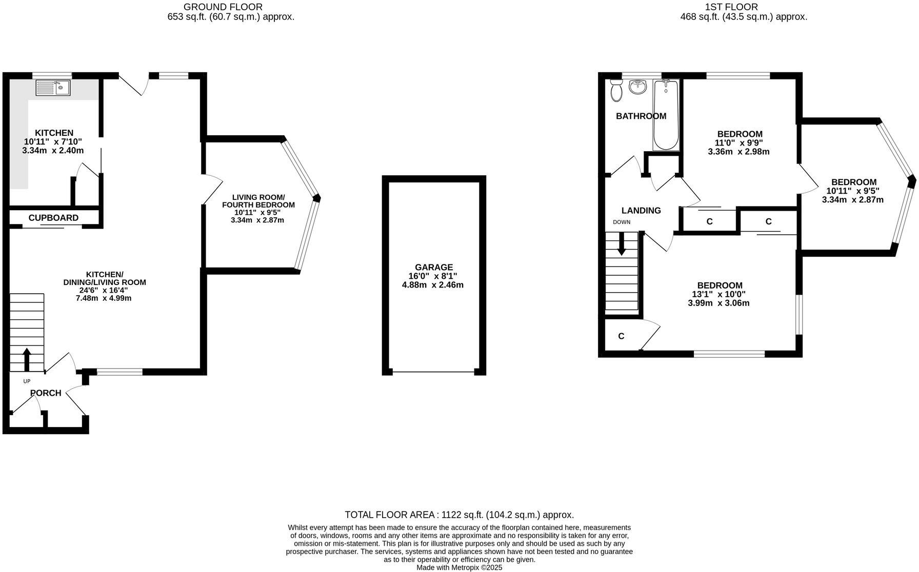
Three double bedrooms plus versatile fourth room or office
Single family bathroom; property needs full modernisation throughout
Garage en-bloc provides parking but not attached private driveway
Potential to extend (STP) to increase living space
Total area approx. 1,122 sq ft; compact overall size for four bedrooms
Close to good schools, town centre and mainline rail links
Tucked at the end of a quiet cul-de-sac, this end-of-terrace family home offers roomy living across two storeys and a generous wrap-around garden. Vacant and chain-free, the house has been lived in since 1968 and presents a clear opportunity to modernise and personalise — ideal for a growing family seeking space and scope in Oxted.
Ground floor accommodation includes a large open-plan living and dining area, a separate kitchen and a versatile extra room that can function as a fourth bedroom, home office or playroom. Upstairs are three double bedrooms and a single family bathroom; the plot and roofline suggest potential to extend subject to planning permission (STP), which would increase living space for families needing more bedrooms or a larger kitchen-diner.
The property requires full modernisation throughout: cosmetic updating, likely kitchen and bathroom replacement, and general refurbishment are needed. On-site parking is provided by a garage en-bloc rather than attached parking, and there is only one bathroom. For buyers prepared to renovate, the result will be a tailored home in a very desirable, well-connected area near schools, Oxted town centre and the mainline station with direct links to London.
2 bedroom end of terrace house for sale in Downs Way, Oxted, Surrey, RH8 — £420,000 • 2 bed • 1 bath • 844 ft²
4 bedroom detached house for sale in Mill Lane, Oxted, RH8 9DD, RH8 — £1,000,000 • 4 bed • 2 bath • 1541 ft²
4 bedroom detached house for sale in Woodland Rise,Oxted,RH8 9HW, RH8 — £875,000 • 4 bed • 1 bath • 1180 ft²
3 bedroom end of terrace house for sale in Greenacres, Oxted, Surrey, RH8 — £535,000 • 3 bed • 1 bath • 914 ft²
4 bedroom detached house for sale in West Hill, Oxted, Surrey, RH8 — £1,200,000 • 4 bed • 2 bath • 1470 ft²
4 bedroom semi-detached house for sale in Snatts Hill, Oxted, RH8 — £995,000 • 4 bed • 2 bath • 1569 ft²






























































