Bright modern two-bedroom with parking and communal roof terrace.
South-facing fifth-floor apartment with strong natural light
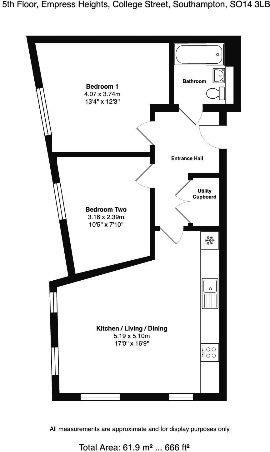
Set on the fifth floor with a south-facing aspect, this two-bedroom apartment delivers bright, modern open-plan living in the heart of Southampton city centre. The property is presented in excellent condition with a contemporary fitted kitchen, integrated appliances and a well-appointed bathroom. Communal extras include a roof terrace, two private garden areas, secure covered parking and bike storage.
Practical details suit buy-to-let buyers or owner-occupiers seeking low-maintenance city living: 666 sq ft, 112 years remaining on the lease, EWS1 A1, EPC rating C and lifts to all floors. Annual costs include a service charge of circa £2,800 and ground rent of £250. Heating is by electric room heaters rather than gas central heating.
The location offers strong rental demand from a cosmopolitan, student-heavy neighbourhood and excellent transport and amenity links. That demand must be balanced with a local recorded higher crime rate; potential buyers should factor this into their rental strategy or personal security plans.
Chain-free and ready to complete, the flat benefits from recent block-wide refurbishment recognition (RICS Awards 2024 — Refurbishment/Revitalisation). For buyers seeking a straightforward, modern city apartment with secure parking and communal outdoor space, this property represents a clear, low-fuss option with good rental or resale prospects.
2 bedroom flat for sale in Canute Road, Southampton, Hampshire, SO14 — £200,000 • 2 bed • 2 bath • 729 ft²
2 bedroom apartment for sale in Hill Lane, Southampton, Hampshire, SO15 — £210,000 • 2 bed • 2 bath • 660 ft²
2 bedroom apartment for sale in Canute Road, Southampton, Hampshire, SO14 — £205,000 • 2 bed • 2 bath • 529 ft²
2 bedroom flat for sale in College Street, Southampton, SO14 — £190,000 • 2 bed • 1 bath • 656 ft²
2 bedroom flat for sale in Empress Heights, College Street, Southampton, SO14 — £225,000 • 2 bed • 2 bath • 753 ft²
2 bedroom flat for sale in White Star Place, Southampton, SO14 — £140,000 • 2 bed • 1 bath • 614 ft²










































































