Bright balcony aspect, excellent transport and proven rental demand.
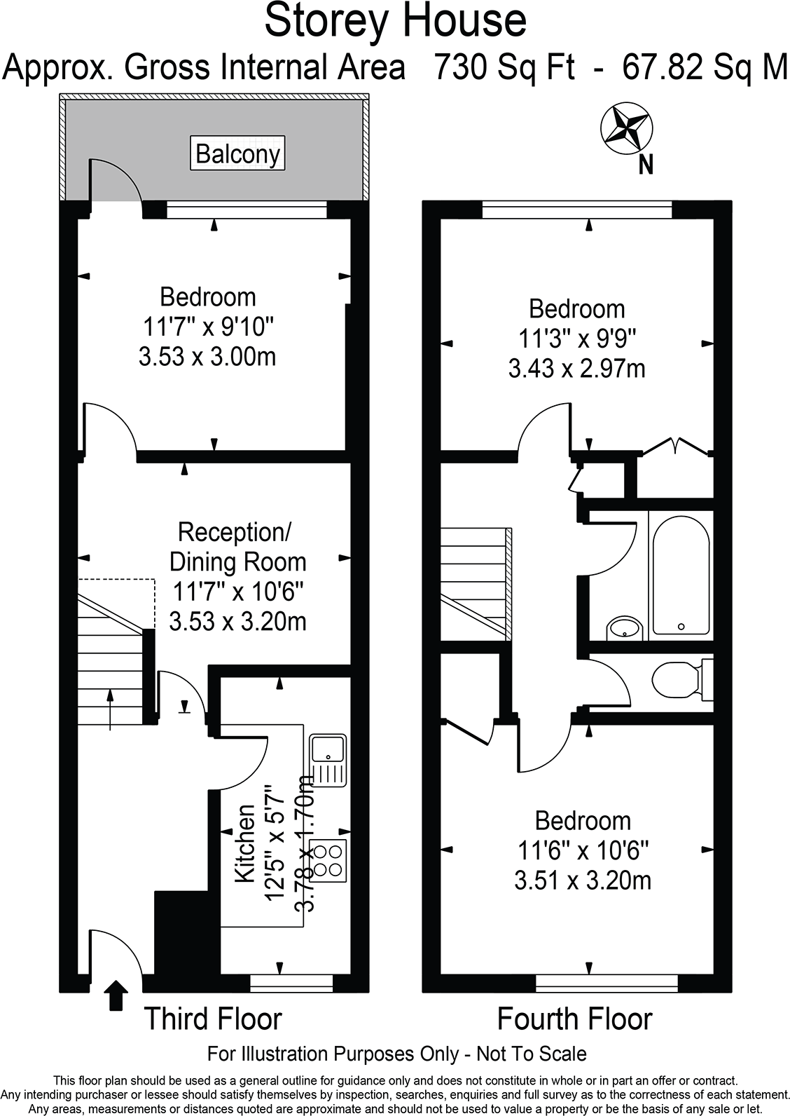
- Duplex flat with private balcony and Canary Wharf views
- Original two-bedroom layout now rented as three rooms
- Approx. 725 sq ft, bright living areas and storage
- Double glazing and gas central heating present
- Leasehold: 89 years remaining; consider lease length implications
- Service charge ~£2,000 pa; ground rent £150 pa
- Mid-20th century build; cavity walls likely uninsulated
- Inner-city location with high crime and area deprivation
Set over two levels, this well-presented flat offers bright living spaces, a private balcony and clear views across Canary Wharf. The property follows an original two-bedroom layout but is currently let as three rooms on a room-by-room basis, which suits buy-to-let purchasers or first-time buyers seeking flexible accommodation.
Practical details are straightforward: double glazing, gas central heating and a modern fitted kitchen. At about 725 sq ft the home feels roomy for its size and benefits from very low flood risk and excellent public transport links to Canary Wharf, the City and the Elizabeth Line.
Buyers should note material facts plainly: the flat is leasehold with 89 years remaining, an average service charge circa £2,000 pa and ground rent around £150 pa. The block dates from the mid-20th century with cavity walls assumed uninsulated and glazing installed before 2002, which may mean future improvement costs for insulation or window upgrades.
Location strengths include immediate access to shops, leisure facilities and several well-rated primary and secondary schools nearby. The property sits in an inner-city, mixed-employment area that offers strong rental demand but also records higher local crime and area deprivation statistics—factors to weigh for owner-occupiers and investors alike.
2 bedroom flat for sale in Sleaford House, Fern Street, Bow, London, E3 — £350,000 • 2 bed • 1 bath • 757 ft²
2 bedroom flat for sale in East Thames House, 29 129 Leven Road, London, E14 — £128,750 • 2 bed • 1 bath
2 bedroom apartment for sale in Celestial House, 153 Cordelia Street, Poplar, London, E14 — £425,000 • 2 bed • 1 bath • 655 ft²
2 bedroom flat for sale in Poplar High Street, Poplar, London, E14 — £360,000 • 2 bed • 1 bath • 716 ft²
2 bedroom flat for sale in Bredel House, London, E14 — £290,000 • 2 bed • 1 bath • 645 ft²
2 bedroom flat for sale in Fairfoot Road, Bow, E3 — £400,000 • 2 bed • 1 bath • 726 ft²






















































