Detached two-bed bungalow with huge garden and outbuildings — potential to extend or convert (subject to planning)..
Detached two-bedroom bungalow on a very large plot with outbuildings and garage
Conservatory provides flexible extra space; may require refurbishment
Bright living/dining room and practical kitchen with modern appliances
EPC D and older double glazing — energy improvements advisable
Single bathroom only; suitable for downsizers or small families
Mid-20th century build; some cosmetic updating likely needed
Strong broadband and mobile signal; town-fringe location with amenities
Potential for development or conversion subject to planning consent
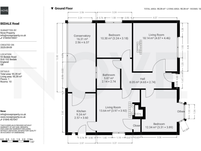
Set back in the town-fringe of Bedale, this detached two-bedroom bungalow occupies a very large plot with several outbuildings and a garage, offering immediate comfort and clear future potential. The single-level layout, bay-windowed main bedroom and conservatory suit downsizers or buyers seeking a low-maintenance home with garden space. An EPC rating of D and double glazing installed before 2002 indicate some energy-improvement opportunities.
Social spaces are bright and useable: a living/dining room with large windows overlooks the garden and a practical kitchen provides good storage and modern appliances. The conservatory adds flexible space for a sunroom, home office or hobby area, although it may need tidy-up or upgrading to reach modern standards.
Externally the plot is the standout feature — extensive gardens and outbuildings create scope for a workshop, studio or carefully considered development (subject to planning). The property was built mid-20th century and has cavity-filled walls and gas central heating on a boiler and radiators system; some updating and cosmetic refresh will likely be needed to match contemporary finishes.
Practical considerations: there is a single bathroom, council tax is above average for the area, and the nearby secondary school has a recent “Requires Improvement” Ofsted rating. Broadband and mobile signals are strong and local amenities are within easy reach, making the bungalow a comfortable, well-connected home with real potential for enhancement or extension.
2 bedroom bungalow for sale in Stapleton Close, Bedale, North Yorkshire, DL8 — £270,000 • 2 bed • 2 bath • 881 ft²
2 bedroom bungalow for sale in Ash Tree Road, Bedale, North Yorkshire, DL8 — £238,000 • 2 bed • 1 bath • 725 ft²
3 bedroom detached bungalow for sale in Carthorpe, Bedale, DL8 — £625,000 • 3 bed • 2 bath • 1988 ft²
2 bedroom bungalow for sale in Firby Road, Bedale, North Yorkshire, DL8 — £250,000 • 2 bed • 1 bath • 982 ft²
2 bedroom detached bungalow for sale in Exelby, Yorkshire, Yorkshire, North Riding, DL8 — £205,000 • 2 bed • 1 bath • 914 ft²
3 bedroom detached bungalow for sale in Masham Road, Bedale, DL8 — £495,000 • 3 bed • 1 bath • 1318 ft²














































































































