Large detached home with gated privacy, gardens, garage annex and far-reaching countryside views.
Substantial four-bedroom detached home with private gated entrance
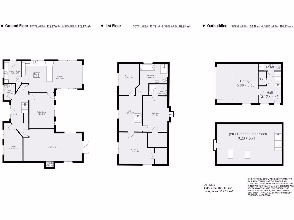
Set behind electric gates in the sought-after village of Burghwallis, this substantial four-bedroom detached home offers privacy, generous living space and expansive rural views. The heart of the house is a characterful farmhouse-style kitchen with a range cooker and adjoining utility, flowing into a bright triple-aspect sunroom that opens onto decked entertaining areas and gardens that wrap around three sides.
Ground-floor living is arranged for family life and entertaining: a formal dining room, a comfortable lounge with countryside aspects and a versatile ground-floor bedroom currently used as a home office. Upstairs the principal suite includes a dressing room, private balcony and en-suite; a large second bedroom also benefits from a walk-in wardrobe. The family bathroom is well-appointed with a five-piece suite including a Jacuzzi bath and separate shower.
Outside, mature lawns, patios, a sunken hot tub and a naturally fed ornamental pond create an attractive private plot. A sweeping driveway leads to a double garage with ancillary space above plus a sauna and shower room — useful as a guest suite, studio or gym. The property is offered chain free and sits within easy driving distance of the A1, local schools rated Good, and village amenities.
Important considerations: the house occupies a very large plot and will require ongoing maintenance; council tax is high and the local area records higher crime and relative deprivation compared with regional averages. Buyers seeking seclusion, generous room proportions and countryside living should consider viewing, but should factor running costs and upkeep into their plans.
4 bedroom detached house for sale in Holly Farm Court, Burghwallis, Doncaster, DN6 — £750,000 • 4 bed • 3 bath • 2681 ft²
5 bedroom detached house for sale in Well Lane, Burghwallis, Doncaster, DN6 — £550,000 • 5 bed • 5 bath • 2515 ft²
4 bedroom detached house for sale in Burghwallis, Doncaster, DN6 — £500,000 • 4 bed • 3 bath • 3092 ft²
4 bedroom detached house for sale in Grange Lane, Burghwallis , DN6 — £875,000 • 4 bed • 3 bath • 2486 ft²
4 bedroom character property for sale in Parkside, Old Village Street, Burghwallis, DN6 — £650,000 • 4 bed • 2 bath • 2971 ft²
4 bedroom detached house for sale in 4 Manor Farm Close, Sutton, , DN6 — £380,000 • 4 bed • 2 bath • 1507 ft²


































































































































































































































































































































