**Standout Features:**
- Newly renovated Victorian terraced home
- 3 bedrooms and 1 bathroom, ideal for families or investors
- Bright, open plan living/dining area with an original fireplace
- Modern kitchen with double doors leading to a south-west facing garden
- Chain-free sale, ensuring a smooth transaction
- Development potential for loft or rear extensions (subject to consent)
**Potential Concerns:**
- Historical property with potential damp issues and need for roof repair
- Solid brick walls without insulation could affect energy efficiency
- Average-sized plot in a densely populated area
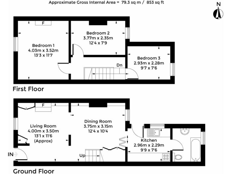
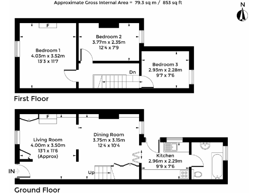
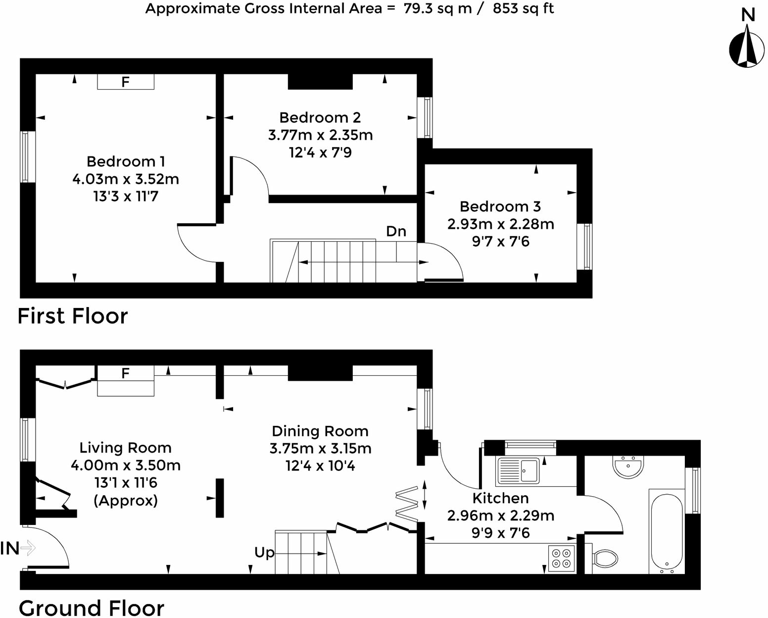
Welcome to 2 Vicarage Lane, a charming Victorian terraced house offering a blend of period character and modern living. This beautifully renovated property boasts new flooring, fresh decor, and a stylish kitchen that leads to a sunny, south-west facing garden—perfect for entertaining or enjoying peaceful afternoons outdoors. The well-designed layout features a bright living area with an original fireplace, alongside three comfortable double bedrooms, making it an ideal home for families or a lucrative investment opportunity.
Located in the sought-after New Hinksey area, you’ll have easy access to the city center, Hinksey Park, and excellent transport links to major roads. With the benefit of being chain-free, this property invites you to envision its potential while exploring options for future enhancements. Given its combination of charm, location, and potential, this home won’t last long on the market. Seize the opportunity to enhance your lifestyle or investment portfolio today!
3 bedroom terraced house for sale in Norreys Avenue, New Hinksey, OX1 — £500,000 • 3 bed • 2 bath • 1146 ft²
2 bedroom terraced house for sale in Green Place, Oxford, OX1 — £325,000 • 2 bed • 1 bath • 496 ft²
3 bedroom terraced house for sale in Essex Street, East Oxford, OX4 — £635,000 • 3 bed • 1 bath • 966 ft²
3 bedroom terraced house for sale in Hurst Street, East Oxford, OX4 — £435,000 • 3 bed • 1 bath • 830 ft²
2 bedroom terraced house for sale in Marlborough Road, Grandpont, OX1 — £595,000 • 2 bed • 1 bath • 897 ft²
3 bedroom terraced house for sale in Stratford Street, Oxford, OX4 — £675,000 • 3 bed • 1 bath • 1037 ft²






































































