Tucked-away location near stations, shops and outstanding local schools.
Two double bedrooms with excellent built-in wardrobe storage
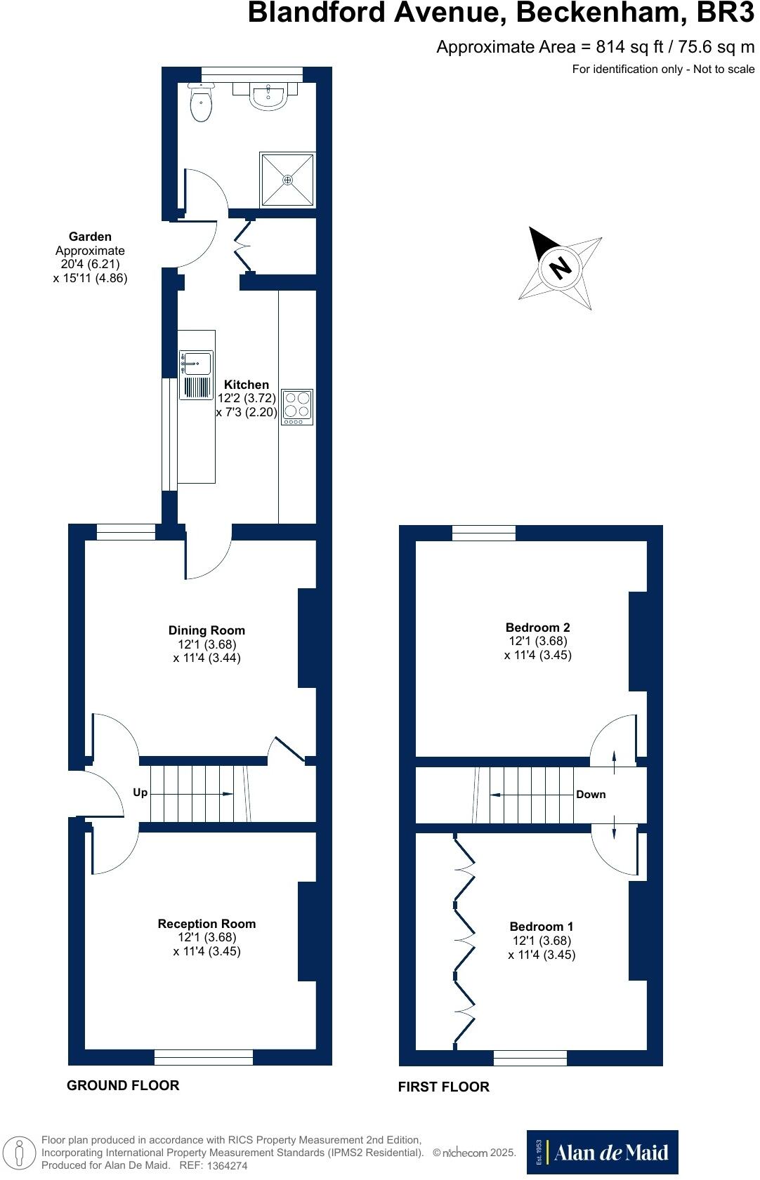
Tucked down a quiet unmade road in Beckenham, this two-bedroom Victorian semi presents period character with modern convenience. The front reception retains a fireplace and original mouldings; a second reception leads to a galley kitchen and a modern shower room with garden access. The home is ready for immediate occupation but offers scope to personalise throughout.
The layout is compact and long, typical of early 20th-century terraces, with two double bedrooms upstairs and useful built-in storage. At about 814 sq ft the footprint is modest; rooms are small-to-medium rather than spacious. Loft conversion potential exists subject to planning, creating an obvious route to add value and space.
Externally the plot is small with a low-maintenance garden and side access. The property is freehold and close to Beckenham High Street, local shops, cafes and transport links, including nearby stations for commuters. Broadband speeds are slow locally; mobile signal is excellent.
Practical drawbacks are straightforward: the solid brick walls are likely uninsulated, the house would benefit from modernisation in places, and external amenity space is limited. These factors keep running and improvement costs realistic for a buyer seeking a character home in a very affluent, low-crime neighbourhood.
2 bedroom semi-detached house for sale in Aviemore Close, Beckenham, BR3 — £525,000 • 2 bed • 1 bath • 803 ft²
3 bedroom semi-detached house for sale in Blandford Avenue, Beckenham, BR3 — £550,000 • 3 bed • 2 bath • 1087 ft²
3 bedroom semi-detached house for sale in Rowden Road, Beckenham, BR3 — £675,000 • 3 bed • 2 bath • 926 ft²
3 bedroom semi-detached house for sale in Monivea Road, Beckenham, BR3 — £850,000 • 3 bed • 2 bath • 1174 ft²
2 bedroom terraced house for sale in Yew Tree Road, Beckenham, Kent, BR3 — £465,000 • 2 bed • 1 bath • 537 ft²
3 bedroom semi-detached house for sale in Seward Road, Beckenham, BR3 — £550,000 • 3 bed • 1 bath • 827 ft²










































