Contemporary two-bedroom home with loft potential, level garden and chain-free sale.
Built 2018 to modern standards, low-maintenance finish
Open-plan kitchen/dining with integrated appliances and garden access
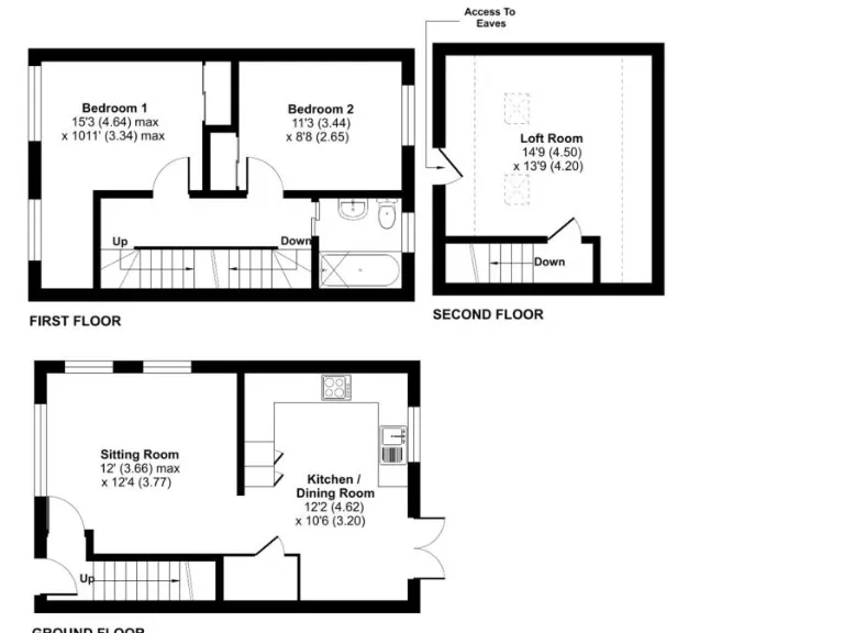
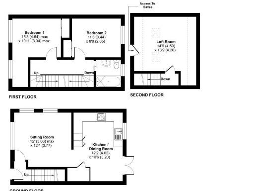
Two double bedrooms with fitted wardrobes plus loft room
Vendors have plans for dormer extension to increase loft ceiling height
Utility cupboard designed to convert to cloakroom/WC
Level enclosed rear garden; small plot and limited outside space
Freehold, chain-free; very low local crime and no flood risk
Estimated broadband speeds slow; single bathroom only
Light, low-maintenance living close to Sidmouth town centre — this two-bedroom end-of-terrace was built in 2018 to modern standards and offers straightforward, comfortable accommodation for downsizers or professionals seeking a compact home. The sitting room with a bow window and an open-plan kitchen/dining room with integrated appliances provide bright, usable living space, while twin doors open directly onto a level, enclosed rear lawn.
Upstairs are two double bedrooms with fitted wardrobes and a contemporary family bathroom. A loft room with roof windows adds flexible space currently used as a bedroom; the vendors have prepared plans and drawings for a dormer extension to increase ceiling height and improve usability (subject to planning approval).
Practical positives include a utility cupboard designed to be converted to a cloakroom/WC, freehold tenure, no onward chain and very low local crime. The house sits about 1.5 miles from the town centre, roughly 600 metres from riverside walks and within walking distance of primary and secondary schools — convenient for local services.
Buyers should note material constraints: the plot is small and outside storage/garden space is limited, there is only one bathroom, and estimated broadband speeds are slow (standard speeds quoted). The dormer works will require formal permissions before implementation. Overall this is a modern, easy-to-run home with sensible potential for modest extension work.
2 bedroom semi-detached house for sale in Newlands Road, Sidmouth, Devon, EX10 — £285,000 • 2 bed • 1 bath • 419 ft²
3 bedroom end of terrace house for sale in Higher Brook Meadow, Sidford, EX10 — £325,000 • 3 bed • 1 bath • 774 ft²
3 bedroom detached house for sale in Peaslands Road, Sidmouth, Devon, EX10 — £550,000 • 3 bed • 3 bath • 1193 ft²
3 bedroom terraced house for sale in Winslade Road, Sidmouth, Devon, EX10 — £325,000 • 3 bed • 1 bath • 799 ft²
3 bedroom semi-detached house for sale in Ladymead, Woolbrook, Sidmouth, Devon, EX10 — £295,000 • 3 bed • 2 bath • 961 ft²
3 bedroom end of terrace house for sale in Warrens Mead, Sidford, Sidmouth, Devon, EX10 — £275,000 • 3 bed • 1 bath • 970 ft²






























































