Move‑in ready three-bed with garden and loft conversion potential.
Three bedrooms, two doubles and one single, family-friendly layout
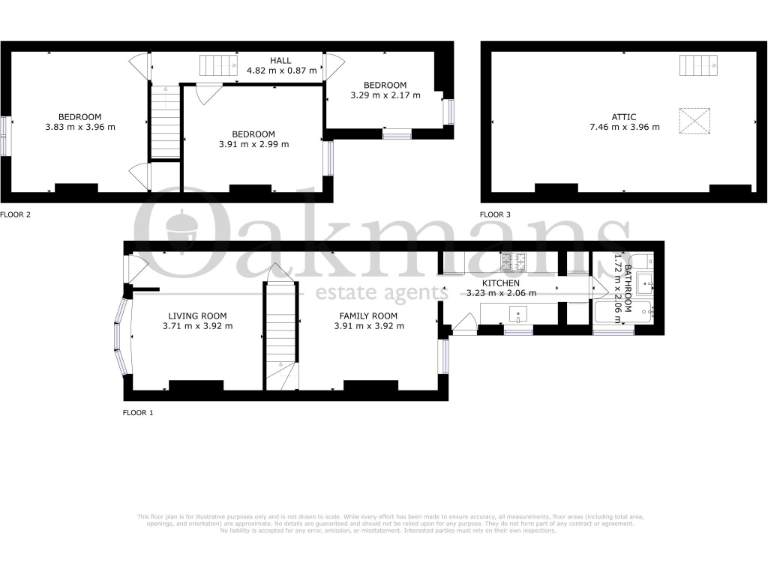
This recently renovated three-bedroom mid-terrace offers move-in ready living with period character and modern updates. High ceilings and large front windows create a bright ground-floor reception; a contemporary kitchen with pantry and adjoining utility supports everyday family life. A private rear garden and small patio provide outdoor space for children or plants.
Upstairs are two double bedrooms and a single room suitable for a child or home office, plus a family bathroom with shower over bath. The loft space presents clear potential for a conversion, subject to planning permission, adding valuable additional living or storage space. Heating is mains gas via a boiler and radiators; windows are double glazed.
Location delivers strong local amenities, fast broadband and excellent mobile signal, with several highly rated primary and secondary schools nearby. Note practical considerations: the house sits in a higher-crime, more deprived area and on-street parking is the only option. The solid-brick Victorian construction appears to lack cavity insulation, so buyers should allow for possible insulation or energy-efficiency works if desired.
Overall this property suits first-time buyers seeking a stylish, compact family home with immediate move-in condition and clear scope for value uplift through loft conversion and targeted efficiency improvements. The freehold tenure and no flood risk add straightforward ownership benefits.
3 bedroom semi-detached house for sale in , Bewdley Avenue Back Of, Ombersley Road, Birmingham, B12 — £190,000 • 3 bed • 1 bath • 879 ft²
3 bedroom terraced house for sale in Park Road, Smethwick, B67 — £330,000 • 3 bed • 1 bath • 1370 ft²
3 bedroom end of terrace house for sale in Fourth Avenue, Selly Park, Birmingham, West Midlands, B29 — £325,000 • 3 bed • 2 bath • 1408 ft²
3 bedroom terraced house for sale in Milverton Road, Birmingham, B23 6ER, B23 — £220,000 • 3 bed • 1 bath • 902 ft²
3 bedroom terraced house for sale in Warwards Lane, Birmingham, West Midlands, B29 — £275,000 • 3 bed • 2 bath • 848 ft²
3 bedroom terraced house for sale in Arcot Road, Birmingham, B28 — £300,000 • 3 bed • 1 bath • 819 ft²


































































































































