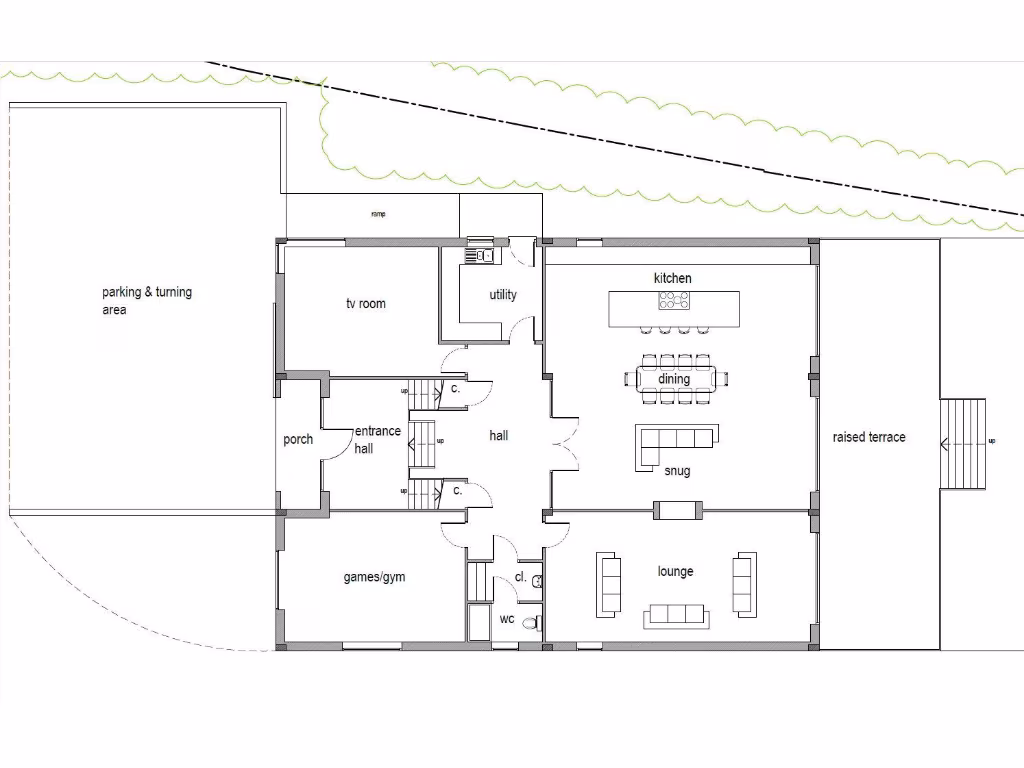
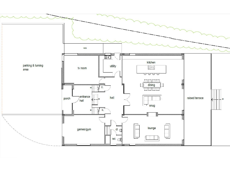
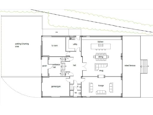
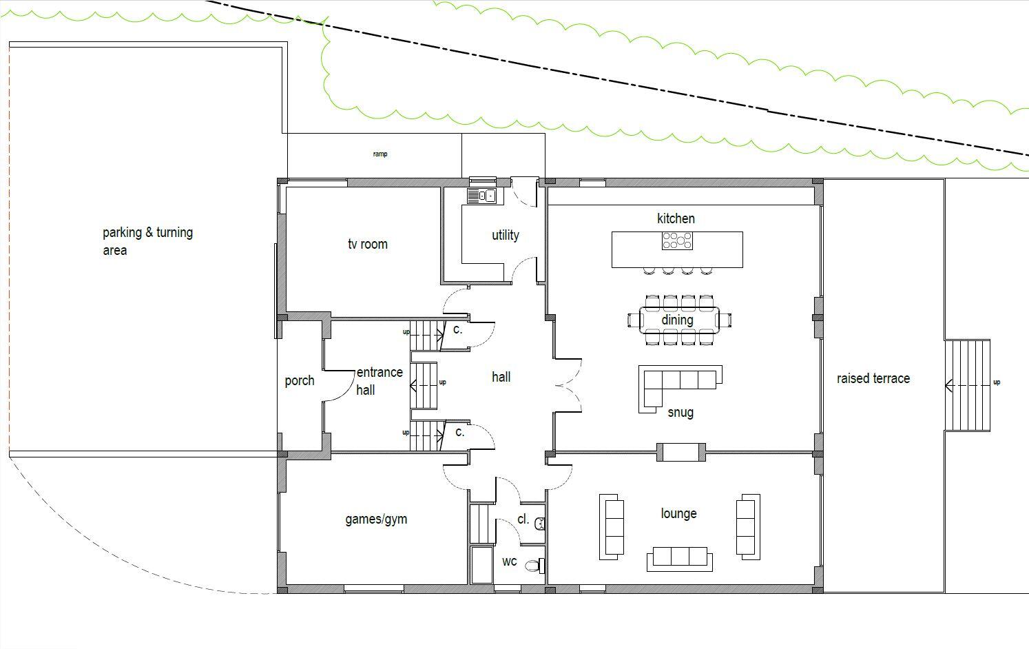
**Standout Features:**
- Planning permission granted for conversion to a 5-bedroom home (reference WD/2023/1546/F).
- Generous 4,700 sq ft of living space set on a 0.5-acre private lot.
- Secluded rural location with mature trees and landscaped gardens.
- Additional agricultural land available separately with Southbank Farm (5 acres).
- Ample off-street parking and a mix of modern and rustic design aesthetics.
**Potential Concerns:**
- Current status as a barn requires significant renovation.
- Some outbuildings are in need of repair.
- Council tax is on the higher side.
**Summary:**
Explore the exciting opportunity to transform Southbank Barn into an expansive five-bedroom home in a tranquil rural setting. With over 4,700 square feet of potential living space on a generous 0.5-acre plot, this property offers ample room for family gatherings and entertaining. The barn's design allows for a seamless blend of rustic charm and contemporary style, promising future residents a cozy yet spacious abode surrounded by serene countryside views.
Just off a peaceful country lane and approached by a private driveway, the property provides an idyllic retreat while offering convenience to local amenities and schools, all rated 'Good' by Ofsted. Whether you’re seeking a family home with room to grow or a savvy investment in a picturesque area, this property presents a unique canvas for your vision. Don’t miss your chance to secure this exceptional barn conversion opportunity!
Barn conversion for sale in Whitesmith Lane, Chiddingly, Lewes, East Sussex, BN8 — £295,000 • 1 bed • 1 bath • 2540 ft²
5 bedroom detached house for sale in Cowden Hall Lane, Vines Cross, TN21 — £1,200,000 • 5 bed • 3 bath • 2997 ft²
5 bedroom detached house for sale in Cowden Hall Lane, Vines Cross, TN21 — £1,800,000 • 5 bed • 3 bath • 2997 ft²
1 bedroom detached house for sale in Cade Street, Heathfield, TN21 — £325,000 • 1 bed • 1 bath • 1851 ft²
4 bedroom barn conversion for sale in Postern Lane, Tonbridge, Kent, TN11 — £435,000 • 4 bed • 2 bath
3 bedroom detached house for sale in Hoghole Lane, Lamberhurst, TN3 — £325,000 • 3 bed • 2 bath • 1779 ft²






























