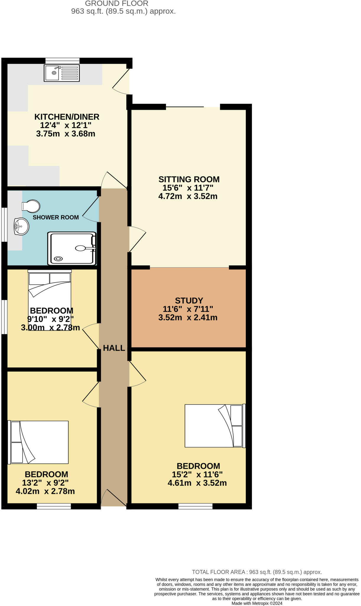
**Standout Features:**
- Charming three-bedroom detached bungalow from 1939.
- Modern fitted kitchen/diner with Rangemaster cooker.
- Spacious shower room with walk-in shower.
- Well-maintained garden with workshop and off-road parking for two vehicles.
- Easy walking distance to Beccles town centre and local amenities.
This delightful 1939 detached bungalow on Kemps Lane offers an inviting blend of comfort and functionality. Boasting three generous double bedrooms, a sleek modern kitchen/diner with an integrated Rangemaster oven, and a convenient shower room, this home is perfect for families or anyone seeking single-level living. The spacious sitting room, which doubles as a study, leads through aluminum patio doors to a brick-weave patio—ideal for al fresco dining in the well-maintained garden.
This property is conveniently located just a short stroll from the vibrant market town of Beccles, known as the "Gateway to the Broads," providing easy access to local shops, schools, and recreational facilities. With gas central heating, uPVC double glazing, and room for personal touches, you'll find both comfort and potential here. On the downside, while the bungalow is generally in good condition, buyers may want to plan for minor cosmetic updates. The garden workshop adds unique value for hobbyists or as extra storage. Don’t miss this opportunity to secure a charming home in a desirable location!
2 bedroom semi-detached bungalow for sale in Townlands Drive, NR34 — £250,000 • 2 bed • 1 bath • 557 ft²
4 bedroom detached bungalow for sale in London Road, Beccles, NR34 — £400,000 • 4 bed • 2 bath • 1432 ft²
3 bedroom detached bungalow for sale in Hillcrest Road, Beccles, NR34 — £250,000 • 3 bed • 1 bath • 980 ft²
3 bedroom detached bungalow for sale in Cromwell Avenue, Beccles, NR34 — £265,000 • 3 bed • 1 bath • 892 ft²
3 bedroom detached bungalow for sale in Ballygate, Beccles, NR34 — £600,000 • 3 bed • 1 bath • 906 ft²
3 bedroom bungalow for sale in Will Rede Close, Beccles, Suffolk, NR34 — £450,000 • 3 bed • 2 bath • 1644 ft²






























































































