Compact, newly refurbished four-bed near Cowley Road amenities and transport links.
Architect-designed detached house, recently redecorated
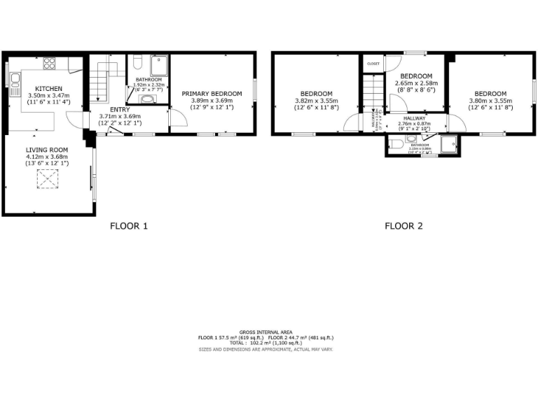
An architect-designed detached home in East Oxford, freshly redecorated and offered chain-free with vacant possession. The house has been renovated to HMO regulations and presents four double bedrooms, two bathrooms and an open-plan kitchen/reception with sliding doors to a private patio. Off-street parking sits behind secure gates.
This compact property suits first-time buyers or professionals seeking a low-maintenance, well-presented home close to Cowley Road amenities and the city centre. Fast broadband and excellent mobile signal support home working; local schools include Good-rated state primaries and high-performing independent options within easy reach.
There is clear rental or investor appeal: the house previously held an HMO licence for four occupants and remains configured accordingly. The plot is small, so outdoor space is limited to a patio; the driveway area could be converted to a front garden if preferred.
Be aware of notable negatives: the neighbourhood records higher crime levels than average, and the plot and overall internal size are modest (about 1,098 sq ft). The EPC is C and mains gas central heating serves the property. These factors are balanced by recent refurbishment, no onward chain and convenient transport and amenities nearby.
4 bedroom end of terrace house for sale in Percy Street, East Oxford OX4 — £725,000 • 4 bed • 1 bath • 1362 ft²
2 bedroom terraced house for sale in East Oxford, Oxford, OX4 — £425,000 • 2 bed • 2 bath • 838 ft²
4 bedroom terraced house for sale in Aston Street, East Oxford, OX4 — £950,000 • 4 bed • 2 bath • 1565 ft²
3 bedroom terraced house for sale in St. Marys Road, Oxford, OX4 — £550,000 • 3 bed • 1 bath • 1299 ft²
2 bedroom terraced house for sale in Leopold Street, East Oxford, OX4 — £475,000 • 2 bed • 1 bath • 977 ft²
4 bedroom semi-detached house for sale in Bullingdon Road, East Oxford, OX4 — £650,000 • 4 bed • 1 bath • 1554 ft²














































































