SK5 7HX - 3 bed refurbished semi detached in Woodstock Avenue, SK5 7HX

View on Property Piper

3 bedroom semi-detached house for sale in Woodstock Avenue, Reddish, SK5

Summary - 13 WOODSTOCK AVENUE STOCKPORT SK5 7HX

3 bed 1 bath Semi-Detached

Spacious family layout with garage and excellent transport connections.
Newly renovated throughout, modern kitchen-diner and shower room
This immaculately presented three-bedroom semi-detached house has been tastefully remodelled and newly renovated throughout, offering a contemporary open-plan kitchen-diner, spacious lounge with bay window, and a modern shower room. The layout suits a growing family seeking move-in readiness with stylish finishes and useful storage including a garage and lean-to shed.

Located in South Reddish, the home benefits from excellent transport links (M60/M67 and nearby train stations) and local amenities. Several primary schools rated Good are close by; secondary provision is mixed, so families should check options. The enclosed, low-maintenance garden is practical but set on a small plot.

Buyers should note a material issue: the exterior roof requires repair. The area is classified as deprived, which may affect future resale considerations. On the positive side, the property is freehold, has gas central heating, double glazing, no flood risk and affordable council tax, making it a pragmatic family purchase in a convenient location.

Viewing is recommended to appreciate the high-standard refurbishment, the flexible three-bedroom layout and the transport convenience this property provides.

Property Details

Image Descriptions

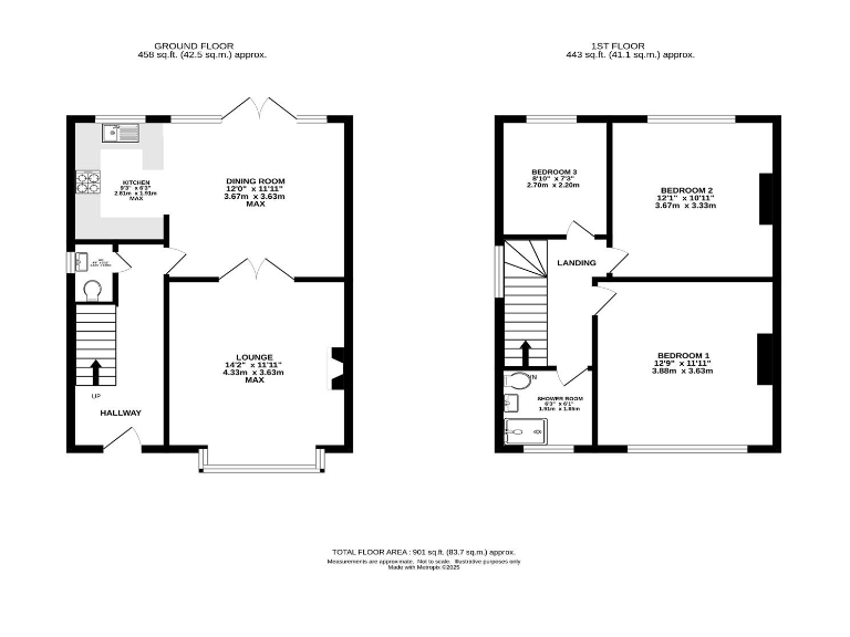
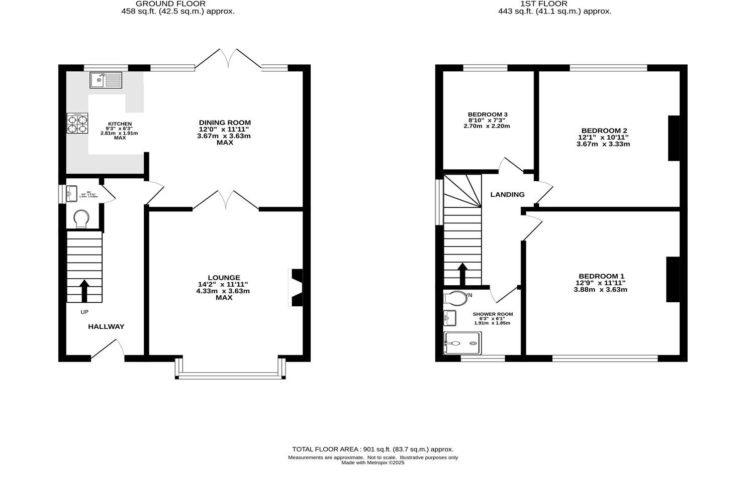
Floorplan Description

Rooms

Textual Property Features

Target Audience

AI Tags

Detected Visual Features

Nearby Schools

Nearest Bars And Restaurants

,,,,}

Nearest General Shops

,,}

Nearest Grocery shops

,,}

Nearest Supermarkets

,,}

Nearest Religious buildings

,,}

Nearest Medical buildings

,,,}

Nearest Airports

}

Nearest Leisure Facilities

,,,,}

Nearest Tourist attractions

,,}

Nearest Train stations

,,,,}

Nearest Bus stations and stops

,,,,}

Nearest Hotels

,,}

Tags

Local Market Stats

AirBnB Data

Similar Properties

Meta

High Res Images

Compatible Images

Low res Images

Thumbnails

Raw Images

High Res Floorplan Images

Compatible Floorplan Images

Low res Floorplan Images

FloorplanImages Thumbnail

Raw Floorplan Images