**Standout Features:**
- **Stunning Grade II Listed Building:** A remarkable two to three-storey structure with a charming Victorian façade.
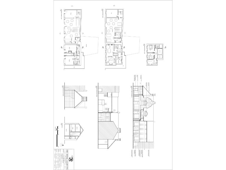
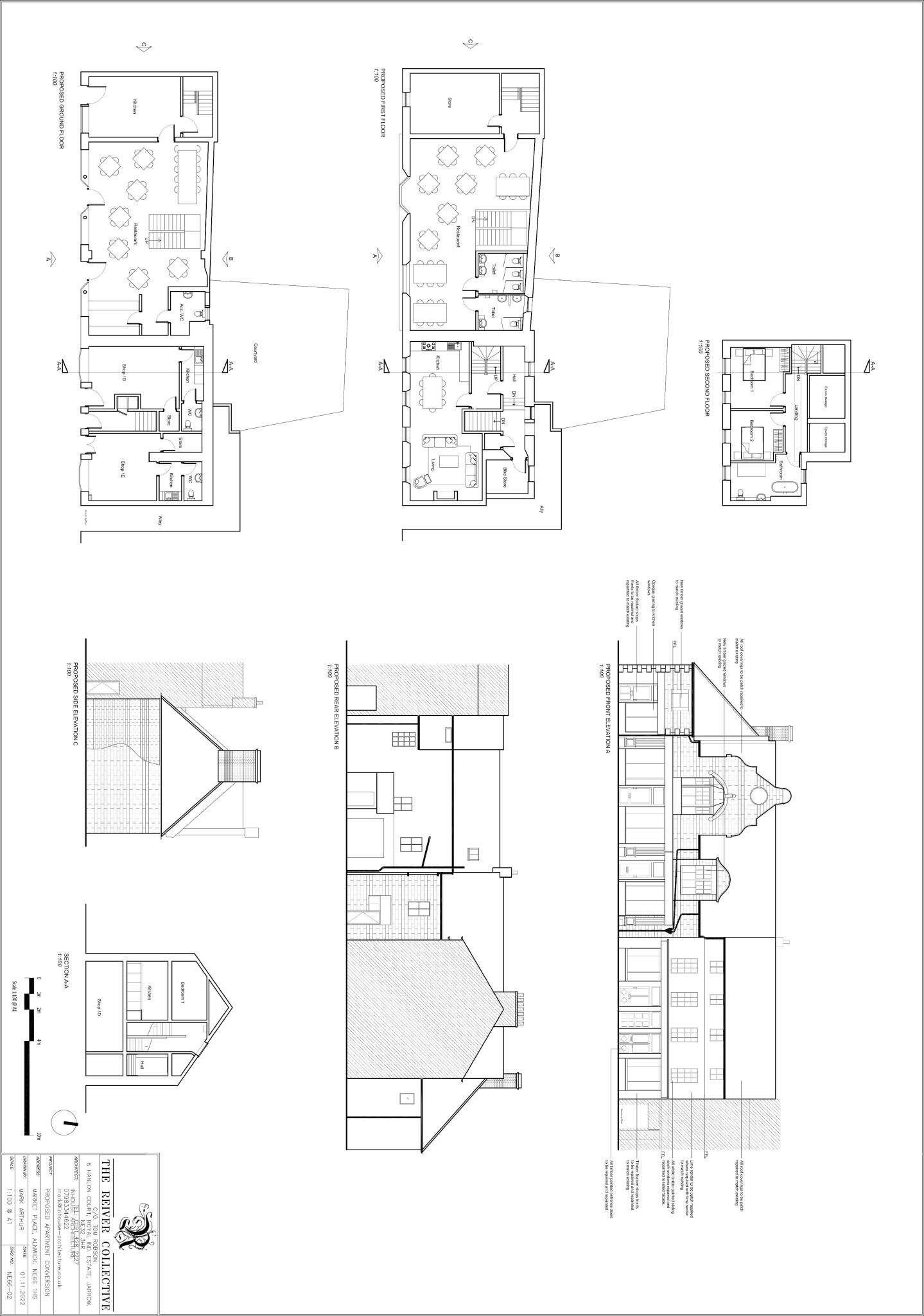
- **Planning Permission:** Approved plans for a large two-storey café/restaurant, two retail units, and a two-bedroom maisonette for serviced accommodation.
- **Spacious Floor Area:** Approximately 393.6 sq. m. (4,237 sq. ft.), offering vast potential for customization.
- **Prime Location:** Situated in the heart of Alnwick's historic market square, with immediate access to diverse local amenities.
- **Investment Opportunity:** Great potential for both residential and commercial income.
**Considerations:**
- **Current Condition:** Requires renovation to fulfill the granted planning permissions.
- **Listed Status:** Any alterations will be restricted due to the building's Grade II listing, so prospective buyers should plan accordingly.
- **High Local Crime Rate:** Due diligence suggested regarding safety and community dynamics.
This impressive Grade II listed property presents a unique investment opportunity in the picturesque market town of Alnwick. With significant plans already approved for converting the space into a thriving café/restaurant and retail units alongside a two-bedroom maisonette, this property is ideal for visionary investors looking to tap into the town's inherited charm and bustling foot traffic. While the building awaits renovation, the historic appeal and generous size offer a canvas for creativity and growth. Take advantage of this limited opportunity to own a piece of history directly across the vibrant market square. Explore your ambitions today in a location rich with potential, as this investment won't last long!
Commercial property for sale in 1 A-D Market Place, Alnwick, Northumberland, NE66 — £375,000 • 1 bed • 1 bath • 2417 ft²
6 bedroom terraced house for sale in Alnwick, Northumberland, NE66 — £260,000 • 6 bed • 4 bath • 2332 ft²
Mixed use property for sale in 22 A-F Fenkle Street, Alnwick, Northumberland, NE66 — £299,950 • 1 bed • 1 bath • 1826 ft²
Maisonette for sale in 22 D-E Fenkle Street, Alnwick, Northumberland, NE66 — £180,000 • 1 bed • 1 bath • 1267 ft²
Shop for sale in Bondgate Within, Alnwick, Northumberland, NE66 — £260,000 • 1 bed • 1 bath • 2073 ft²
4 bedroom terraced house for sale in Bailiffgate, Alnwick, NE66 — £385,000 • 4 bed • 3 bath • 680 ft²






















































