Cash buyers only short-lease investment with garden and garage.
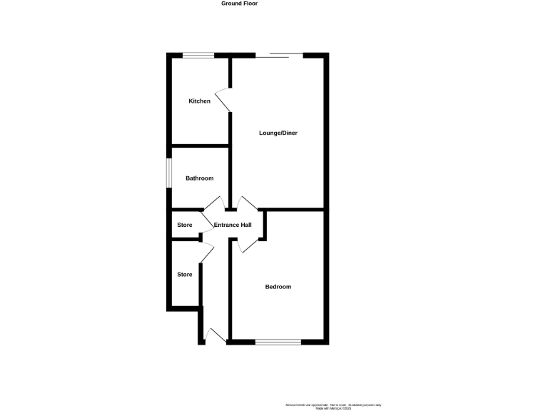
Ground-floor one-bedroom flat with direct rear garden access
A ground-floor one-bedroom flat in the established Abbeyfields neighbourhood, offered with no upward chain and direct access to its own rear garden. The layout includes an entrance hall with storage, a rear living room with patio doors, a fitted kitchen, double bedroom and a tiled bathroom with shower. A garage in the adjoining compound and front garden add practical parking and outdoor space.
This property is a clear cash-buyer opportunity because the lease has approximately 50 years unexpired. That limited term means most high-street mortgage lenders will decline to lend, so buyers should be prepared to complete with cash or arrange specialist lending. Ground rent is low at £52.50 per year (rising to £70 later in the term) and council tax is in Band A.
The flat is well placed for commuting and local amenities, and nearby schools include several good and outstanding options. Internally the home has PVC double glazing and Dimplex electric heating; cosmetic refreshing and some modernisation would improve comfort and investment appeal. No upward chain speeds the sale process for a buyer able to proceed quickly.
Suitable buyers include cash investors seeking rental income or owner-occupiers able to fund purchase without a conventional mortgage. Note the lease constraint is the primary material drawback and will affect re-sale and mortgageability unless the lease is extended prior to sale.
1 bedroom flat for sale in HALESOWEN, Apperley Way, B63 — £75,000 • 1 bed • 1 bath • 364 ft²
3 bedroom ground floor flat for sale in HALESOWEN, Middlefield Gardens, B62 — £115,000 • 3 bed • 1 bath • 1168 ft²
1 bedroom flat for sale in OLDBURY, The Hall, Langley Gardens, B68 — £75,000 • 1 bed • 1 bath • 339 ft²
1 bedroom maisonette for sale in Hamilton Avenue, Halesowen, B62 8SG, B62 — £140,000 • 1 bed • 1 bath
1 bedroom maisonette for sale in Hudswell Drive, Brierley Hill, DY5 2PD, DY5 — £65,000 • 1 bed • 1 bath • 455 ft²
1 bedroom flat for sale in HALESOWEN, Hagley Road, B63 — £100,000 • 1 bed • 1 bath • 323 ft²






























