EX6 7XW - Commercial development for sale in Telegraph Hill. Exeter,…

View on Property Piper

Commercial development for sale in Telegraph Hill. Exeter, EX6

Summary - TELEGRAPH HILL SERVICES, ACCESS TO JET SERVICES EX6 7XW

1 bed 1 bath Commercial Development

Large freehold site with approved plans for warehouse and logistics, ready for next-stage development..
- Reserved matters approval for warehouse and distribution centre buildings
- Previous consent covering B2, B1b, B8 and A5 uses (Ref: 16/01423/MAJ)
- 4.286 acres (approx. 1.73 ha) — large, development-ready footprint
- Access works completed in line with planning permission
- Freehold title with provision for car and lorry parking
- Excellent mobile signal; useful for fleet and operational systems
- Very slow broadband speeds; may limit office-based activity
- Rural, hamlet location — low crime but limited local amenities
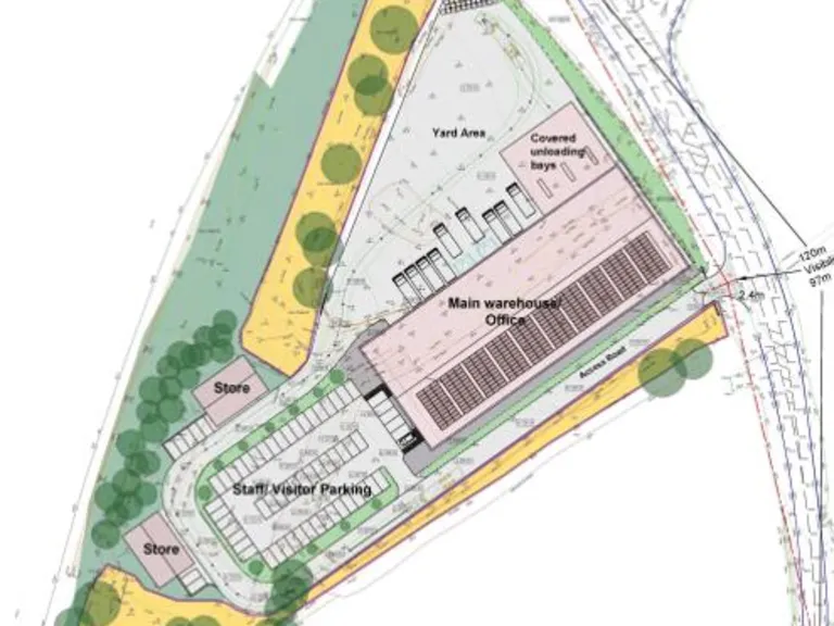
A substantial commercial development opportunity at Telegraph Hill, Exeter, offered freehold with reserved matters approval for warehouse and distribution centre buildings with ancillary offices, car and lorry parking. The 4.286-acre (approx. 1.73 ha) site has had access works completed in line with consent, speeding initial mobilisation. Previous consent covers automotive engineering (B2), B1b, B8 and drive-thru units (A5), giving flexibility for industrial or logistics uses.

The layout plan shows capacity for a main warehouse, test area, staff and visitor parking, covered unloading yard and outdoor storage, making the site suitable for occupiers needing heavy goods vehicle access and substantial operational yards. The setting is in an affluent, low-crime rural area with excellent mobile signal—useful for fleet management and on-site communications.

Notable practical considerations: broadband speeds on site are very slow and the location is essentially a hamlet/isolated setting, which may affect some office-based occupiers and staff commuting. Utilities and detailed build costs are not included here; purchasers should satisfy themselves on service connections and any further infrastructure requirements. This freehold plot suits investors or operators planning a logistics, distribution or industrial development with room for large vehicles and extensive external operations.

Property Details

Brochure Descriptions

Image Descriptions

Textual Property Features

Target Audience

AI Tags

Detected Visual Features

Nearby Schools

Nearest Bars And Restaurants

,,,,}

Nearest General Shops

,,}

Nearest Grocery shops

,,}

Nearest Supermarkets

,,}

Nearest Religious buildings

,,}

Nearest Medical buildings

,,,}

Nearest Airports

}

Nearest Leisure Facilities

,,,,}

Nearest Tourist attractions

,,}

Nearest Train stations

,,,,}

Nearest Bus stations and stops

,,,,}

Nearest Hotels

,,}

Tags

Local Market Stats

Similar Properties

Meta

High Res Images

Compatible Images

Low res Images

Thumbnails

Raw Images