**Standout Features:**
- Spacious two-bedroom maisonette in a quiet setting
- Garage and allocated parking for convenience
- Modern open-plan kitchen and dining area leading to a bright living room
- Flexible bedroom setup, ideal for home office use
- Close proximity to Pelaw Metro Station for easy commuting
- Leasehold with 129 years remaining
**Potential Concerns:**
- High crime rate in the area
- Service charge of £2,000 annually
- Ground rent of £200 per year
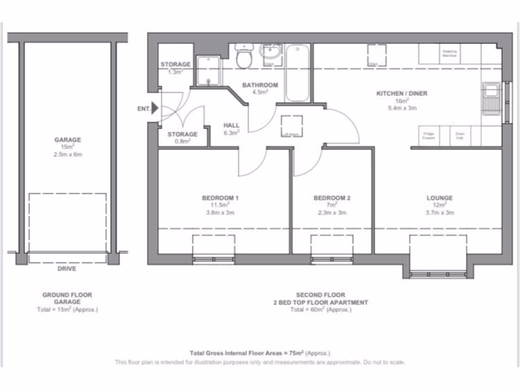
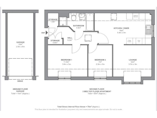
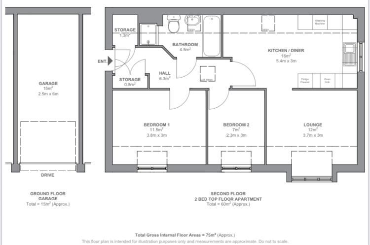
Discover your ideal first home with this stylish two-bedroom flat, ideally located just minutes from Pelaw Metro Station for quick access to Newcastle and Sunderland. This well-presented maisonette boasts a generous master bedroom and a versatile second bedroom, perfect for anyone needing a home office. The chic open-plan kitchen and dining area flows into a bright living room featuring a charming bay window, creating a welcoming atmosphere.
Additional features include a modern bathroom with both a shower and full-size bath, ample storage options, and a garage offering more convenience. While the flat is situated in an area noted for high crime rates and carries an annual service charge, its appealing layout and excellent privacy (with only one other flat in the block) make it a strong contender for first-time buyers or investors seeking a low-maintenance property. Don’t miss your chance to own this unique home with great potential!
2 bedroom flat for sale in Grindon Lane, Grindon, Sunderland, SR4 — £77,500 • 2 bed • 1 bath • 573 ft²
2 bedroom flat for sale in Lauder Way, Pelaw, NE10 — £99,950 • 2 bed • 1 bath • 612 ft²
2 bedroom apartment for sale in Commercial Road, Byker, Newcastle Upon Tyne, NE6 — £80,000 • 2 bed • 1 bath • 948 ft²
2 bedroom apartment for sale in Dinsdale Road, Sandyford, Newcastle Upon Tyne, NE2 — £150,000 • 2 bed • 1 bath • 797 ft²
2 bedroom maisonette for sale in The Meadows, Newcastle upon Tyne, NE3 — £95,000 • 2 bed • 1 bath • 639 ft²
2 bedroom apartment for sale in Foster Drive, Gateshead, NE8 — £100,000 • 2 bed • 1 bath • 616 ft²


























































