Buy-to-let with tenant in place, garage, driveway and private gardens for immediate income.
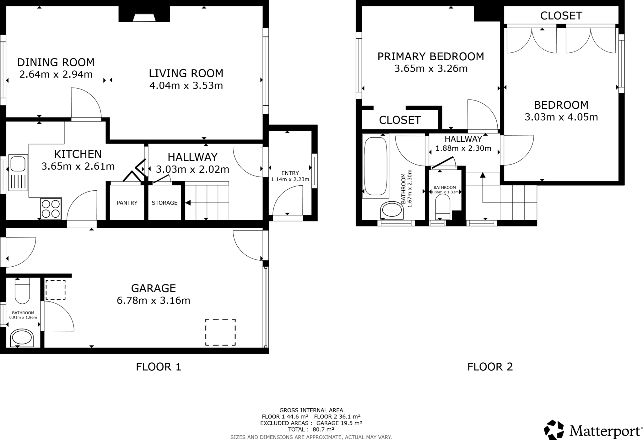
Two bedrooms with three bathrooms and two reception rooms
Private driveway parking and attached single garage
Front and rear gardens, decent plot for the area
Tenant in situ for one year; intend to remain
Current gross income £7,800 per year (let property pack available)
Freehold tenure; average overall size (approx. 764 sq ft)
Dated condition—likely requires cosmetic or structural refurbishment
Located in a very deprived area with high local crime; Buyer’s Premium applies
A straightforward buy-to-let with tenant in situ, private driveway, single garage and front and rear gardens. The property is a mid-20th-century end-of-terrace/freehold house of average overall size, presented as a rental asset rather than a turnkey family home.
Current gross rental income is stated at £7,800 per year with the existing tenancy in place for about one year; the tenants intend to remain. This makes the house suitable for investors seeking an immediate income stream and developers or landlords able to manage a tenant-occupied sale. Full Let Property Pack and tenancy documentation should be reviewed before offer.
The area is very deprived with a high local crime rate, and the house shows dated internal finishes that will likely need refurbishment to lift long-term rent or resale value. A Buyer’s Premium is stated as part of the sale process. Prospective purchasers should factor refurbishment costs, area risk, and tenancy transfer logistics into their appraisal and carry out a physical inspection and legal/title checks.
3 bedroom end of terrace house for sale in Cormorant Close, Hull, HU7 — £110,000 • 3 bed • 2 bath • 1216 ft²
2 bedroom terraced house for sale in Avenue Crescent, Albemarle Street, Hull, East Riding Of Yorkshire, HU3 — £80,000 • 2 bed • 1 bath • 710 ft²
2 bedroom terraced house for sale in Chatham Street, Hull, East Riding Of Yorkshire, HU3 — £59,000 • 2 bed • 1 bath • 667 ft²
3 bedroom semi-detached house for sale in Sapphire Grove, Hull, HU3 — £117,500 • 3 bed • 1 bath • 915 ft²
2 bedroom terraced house for sale in Rustenburg Street, Hull, East Riding Of Yorkshire, HU9 — £115,000 • 2 bed • 1 bath • 743 ft²
2 bedroom flat for sale in Gullane Drive, Hull, East Riding Of Yorkshire, HU6 — £62,000 • 2 bed • 1 bath • 506 ft²


































































































