Spacious, characterful two-bedroom with private terrace and two parking spaces.
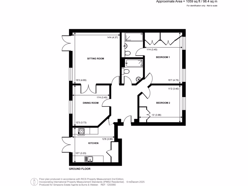
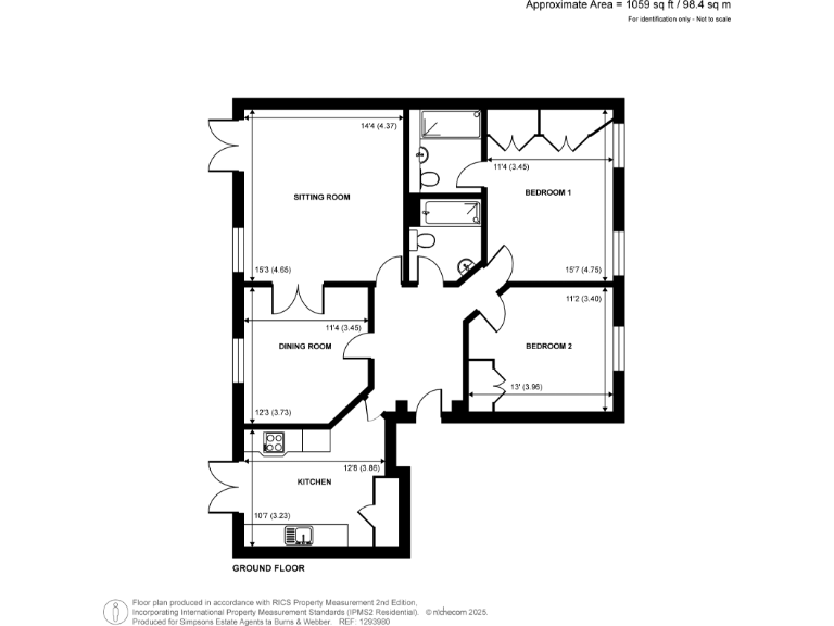
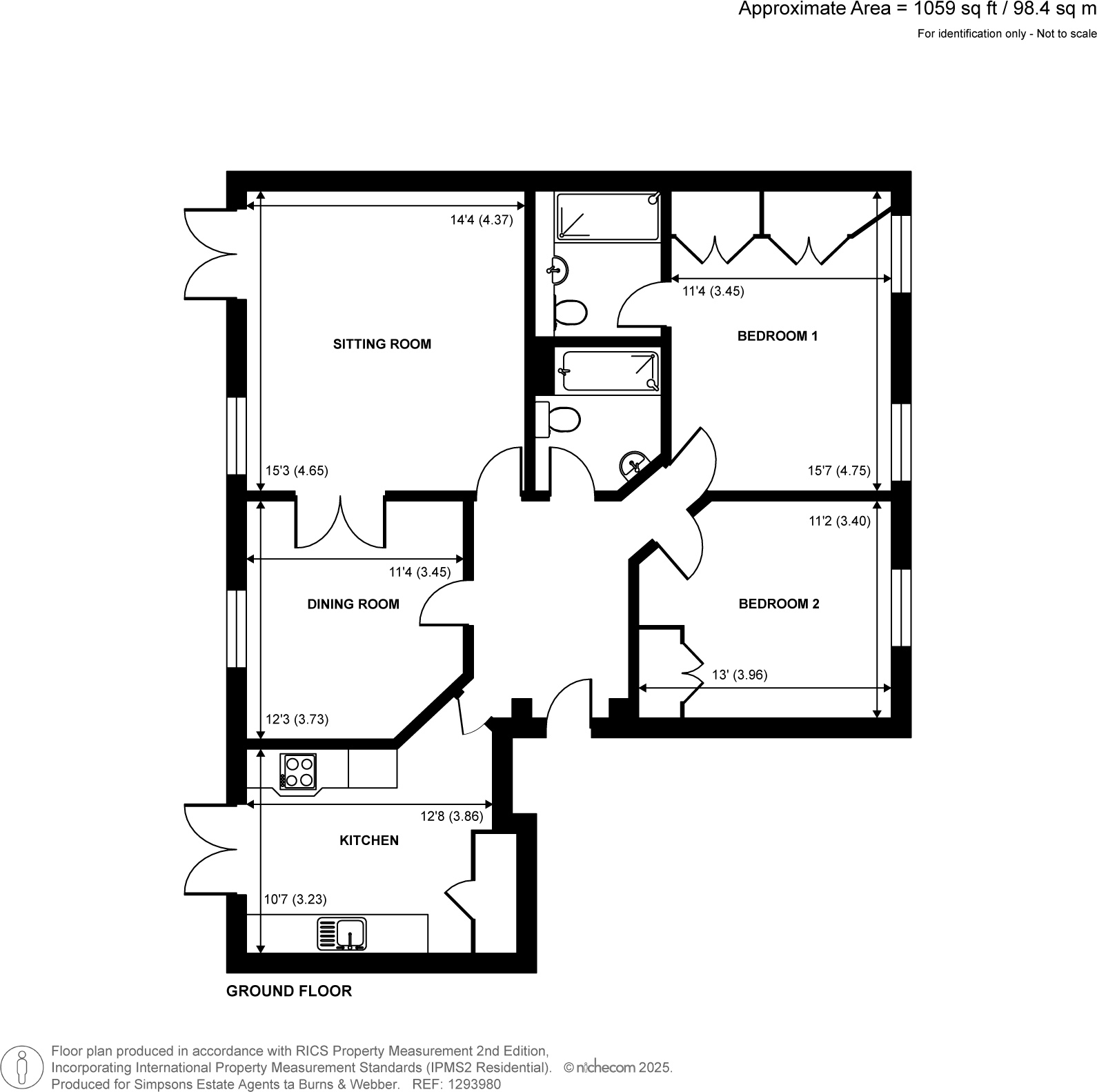
Approximately 1,059 sq ft of spacious accommodation
Set within an impressive Queen Anne–style conversion, this lower-ground two-bedroom apartment offers generous proportions across approximately 1,059 sq ft. The living room has patio doors onto a private paved terrace with raised flower beds, creating a low-maintenance outdoor space directly off the apartment. The layout includes a separate dining room, fitted kitchen, two double bedrooms with built-in wardrobes, and a principal ensuite. Residents benefit from two allocated parking spaces and well-kept communal grounds.
Presented in excellent, move-in-ready condition and offered with no onward chain, the apartment suits buyers seeking a spacious, characterful home without immediate renovation. The building retains original period features and high ceilings, giving rooms a grander feel than many modern flats. Local amenities, shops and good primary and secondary schools are all within walking distance in Milford village.
Important practical details: the property is leasehold with 98 years remaining, council tax is above average for the area and the apartment is on the lower ground floor (which brings easy terrace access but may mean reduced natural light compared with upper floors). There is no flooding risk and broadband and mobile signals are strong. Overall this is a well-maintained, characterful home ideal for downsizers or anyone wanting generous accommodation close to village life.
3 bedroom flat for sale in Portsmouth Road, Milford, Godalming, Surrey, GU8 — £675,000 • 3 bed • 2 bath • 2019 ft²
2 bedroom flat for sale in Milford ***No Onward Chain***, GU8 — £315,000 • 2 bed • 2 bath • 798 ft²
2 bedroom retirement property for sale in Portsmouth Road, Milford, Godalming, Surrey, GU8 — £425,000 • 2 bed • 2 bath • 1068 ft²
2 bedroom flat for sale in Portsmouth Road, Milford, Godalming, Surrey, GU8 — £325,000 • 2 bed • 1 bath • 913 ft²
2 bedroom apartment for sale in 2 bedroom Apartment 2nd Floor in Milford, GU8 — £450,000 • 2 bed • 2 bath • 906 ft²
2 bedroom apartment for sale in Portsmouth Road, Milford, Godalming, Surrey, GU8 — £275,000 • 2 bed • 1 bath • 917 ft²


















































