Compact, move-in ready home ideal for first-time buyers or investors.
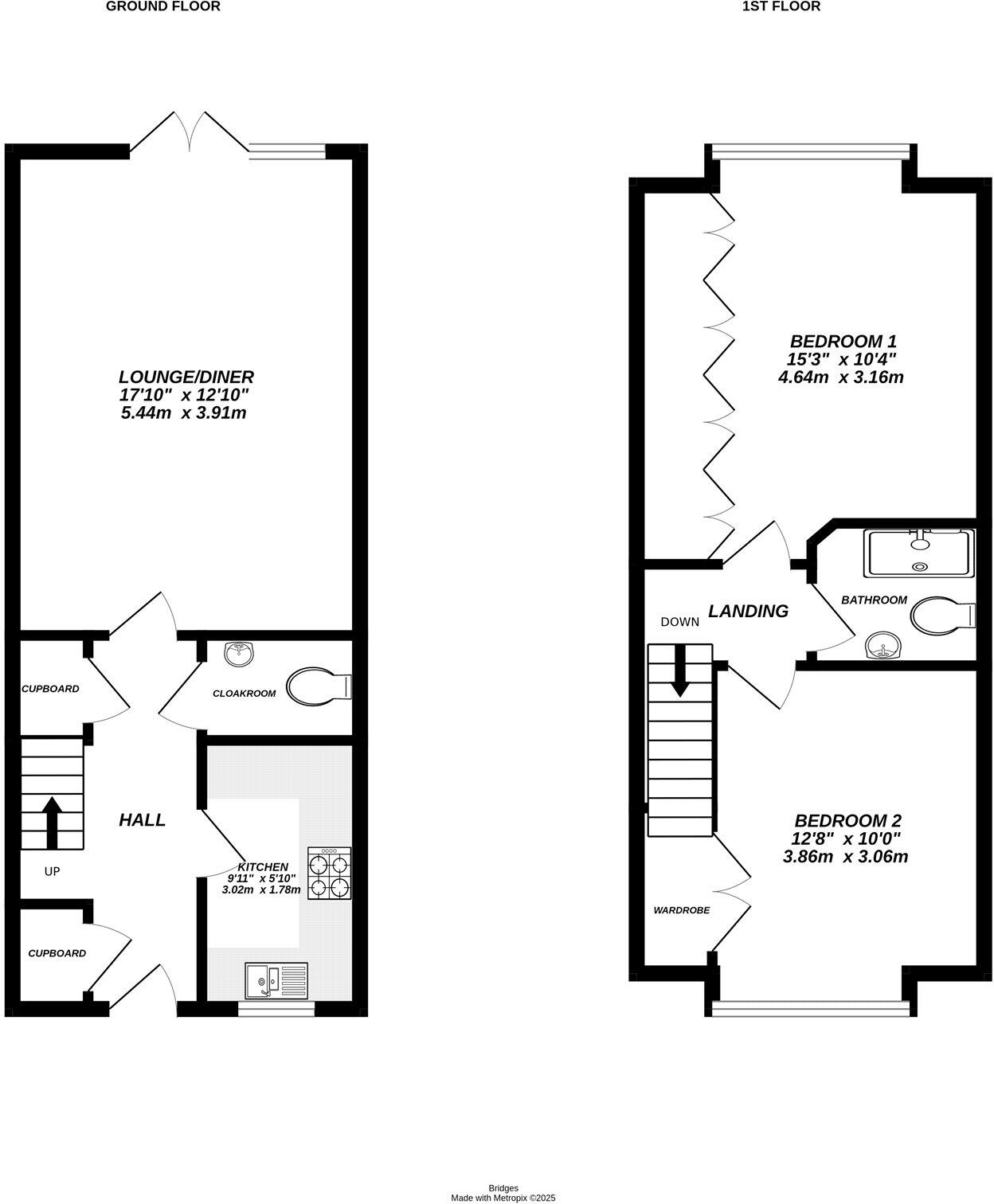
Two double bedrooms with fitted wardrobes in main bedroom
Downstairs cloakroom plus first-floor family bathroom
Landscaped low-maintenance rear garden with side access
Two allocated off-street parking spaces to the front
Compact overall size — modest rooms and small plot
Leasehold — 976 years remaining; charges and rent TBC
EPC C (73); mains gas boiler and double glazing
Single bathroom may limit larger families' needs
This well-presented two-bedroom end-of-terrace home offers efficient, ready-to-live accommodation across two floors. The living area opens via patio doors to a low-maintenance landscaped garden with side access, creating an easy indoor–outdoor flow for everyday living. Two allocated off-street parking spaces add tangible convenience in this suburban location.
The main bedroom includes fitted wardrobes and both bedrooms are described as double size for this house type, making the property suitable for first-time buyers, small families or buy-to-let investors seeking a straightforward, low-upkeep home. Heating is by mains gas with a boiler and radiators; the property benefits from double glazing and an EPC rating of C (73).
The home is leasehold with 976 years remaining; service charge and ground rent details are not provided and should be confirmed by a solicitor before purchase. The overall plot and internal space are compact, and there is a single family bathroom plus a downstairs cloakroom, so buyers needing larger living or garden areas should consider this limitation.
2 bedroom end of terrace house for sale in The Topiary, Farnborough, Hampshire, GU14 — £350,000 • 2 bed • 1 bath • 520 ft²
2 bedroom terraced house for sale in Bideford Close, Farnborough, Hampshire, GU14 — £315,000 • 2 bed • 1 bath • 573 ft²
2 bedroom terraced house for sale in Beaumont Grove, Aldershot, Hampshire, GU11 — £270,000 • 2 bed • 1 bath • 393 ft²
2 bedroom terraced house for sale in Lyndsey Close, Farnborough, Hampshire, GU14 — £365,000 • 2 bed • 1 bath • 658 ft²
3 bedroom terraced house for sale in Houseman Road, Farnborough, Hampshire, GU14 — £315,000 • 3 bed • 1 bath • 623 ft²
2 bedroom terraced house for sale in Skylark Place, Badshot Lea, Farnham, Surrey, GU9 — £425,000 • 2 bed • 1 bath • 502 ft²


























































