Well-connected two-bedroom home with lift access and communal gardens.
High ceilings and attractive wood floors throughout
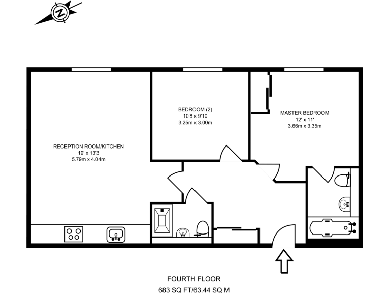
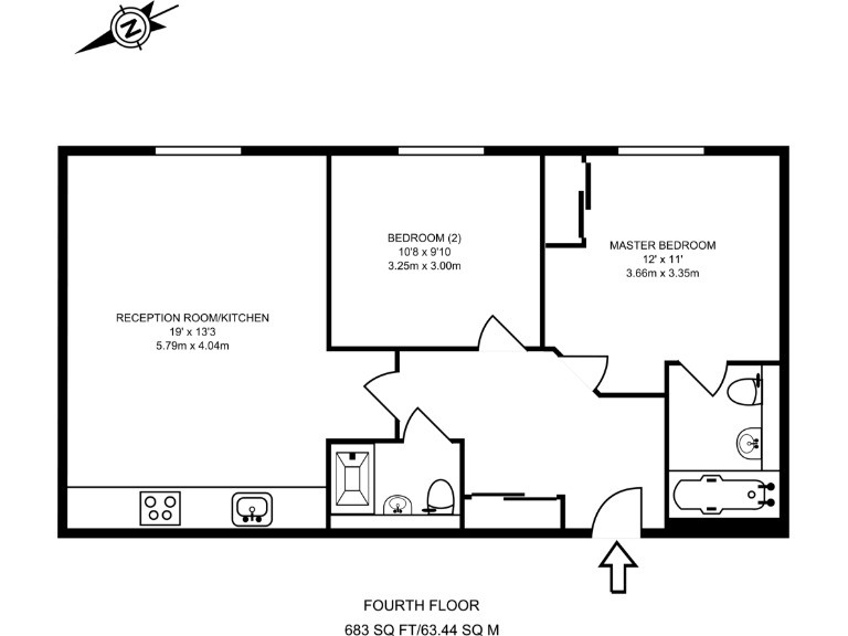
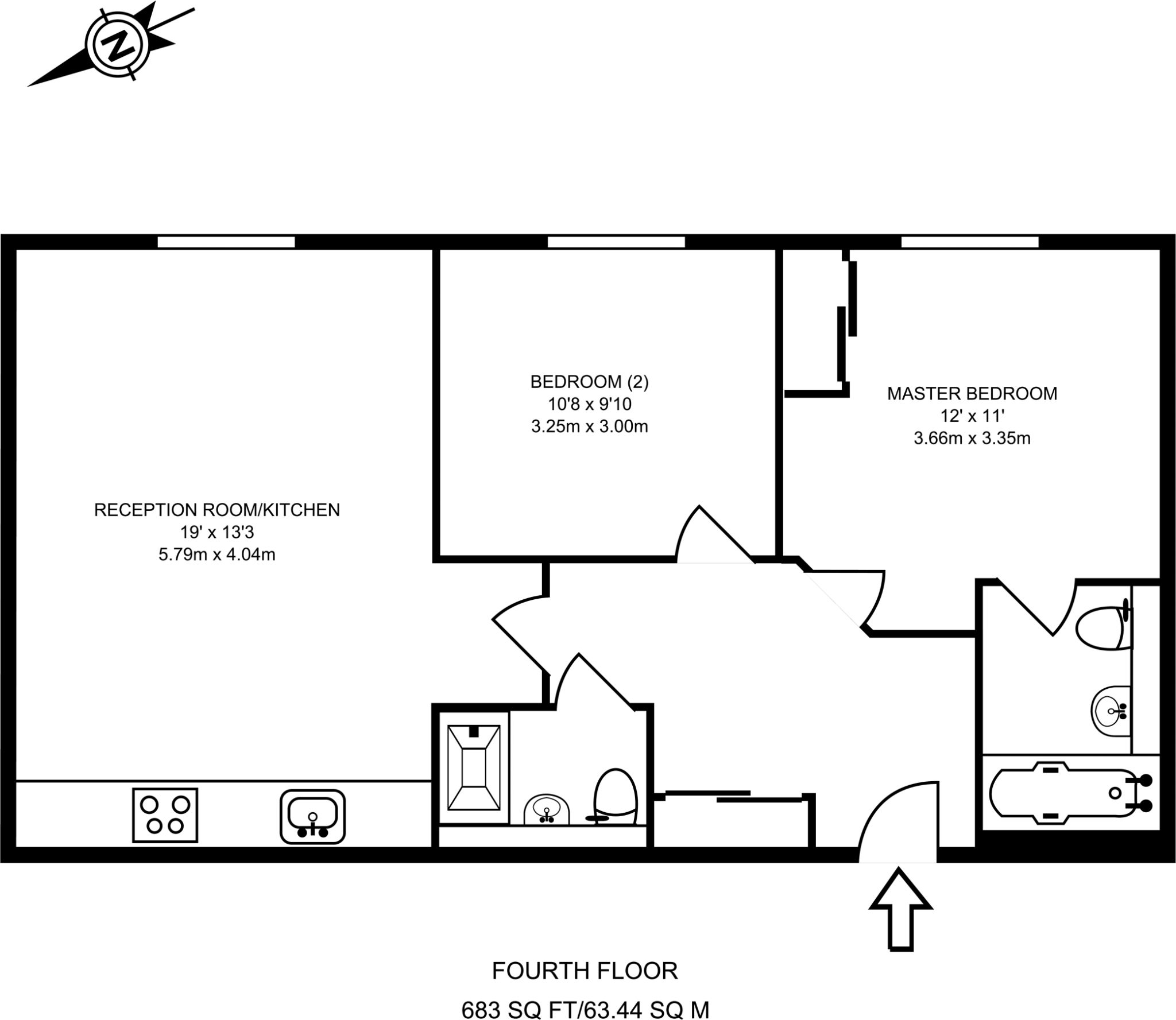
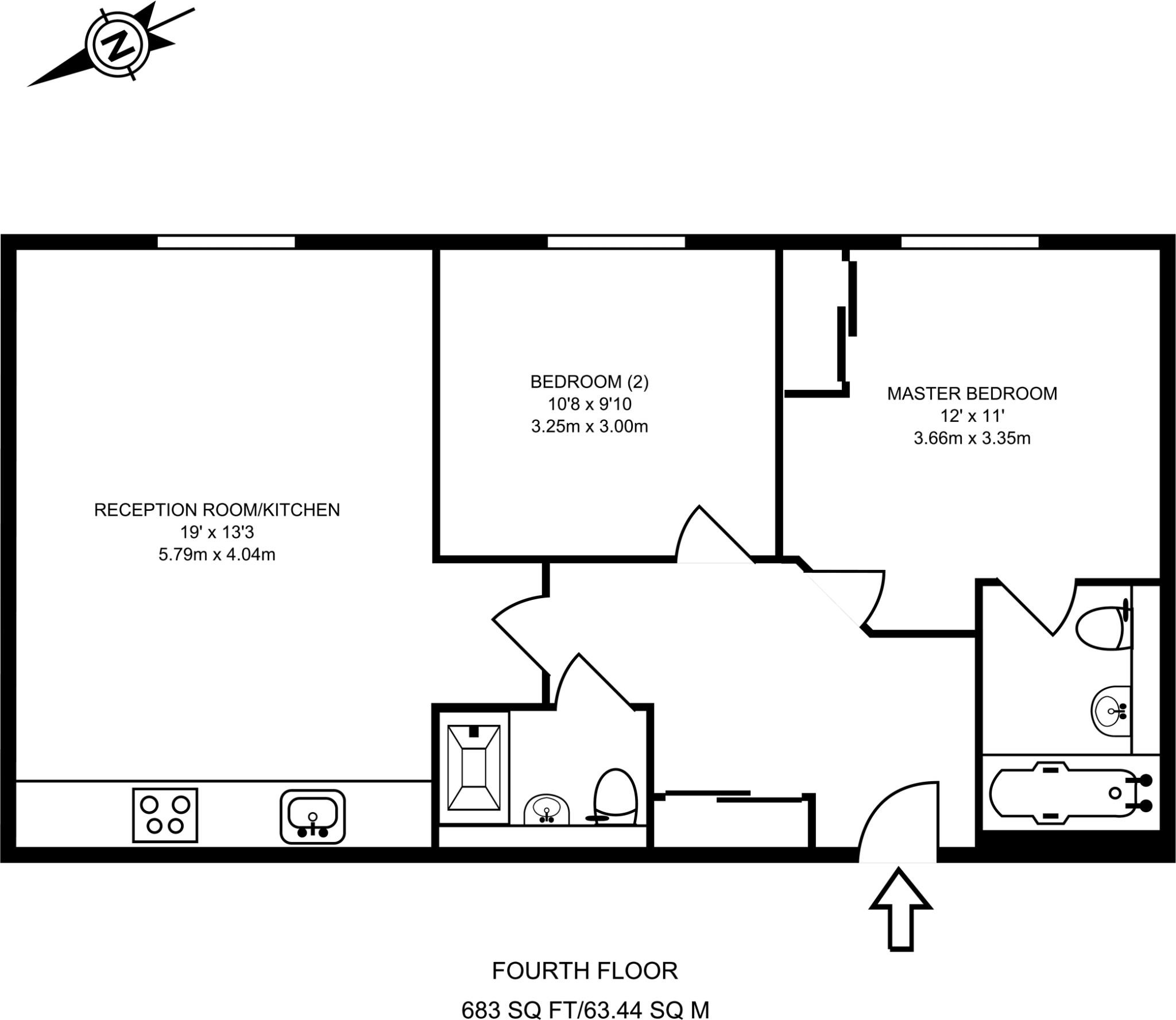
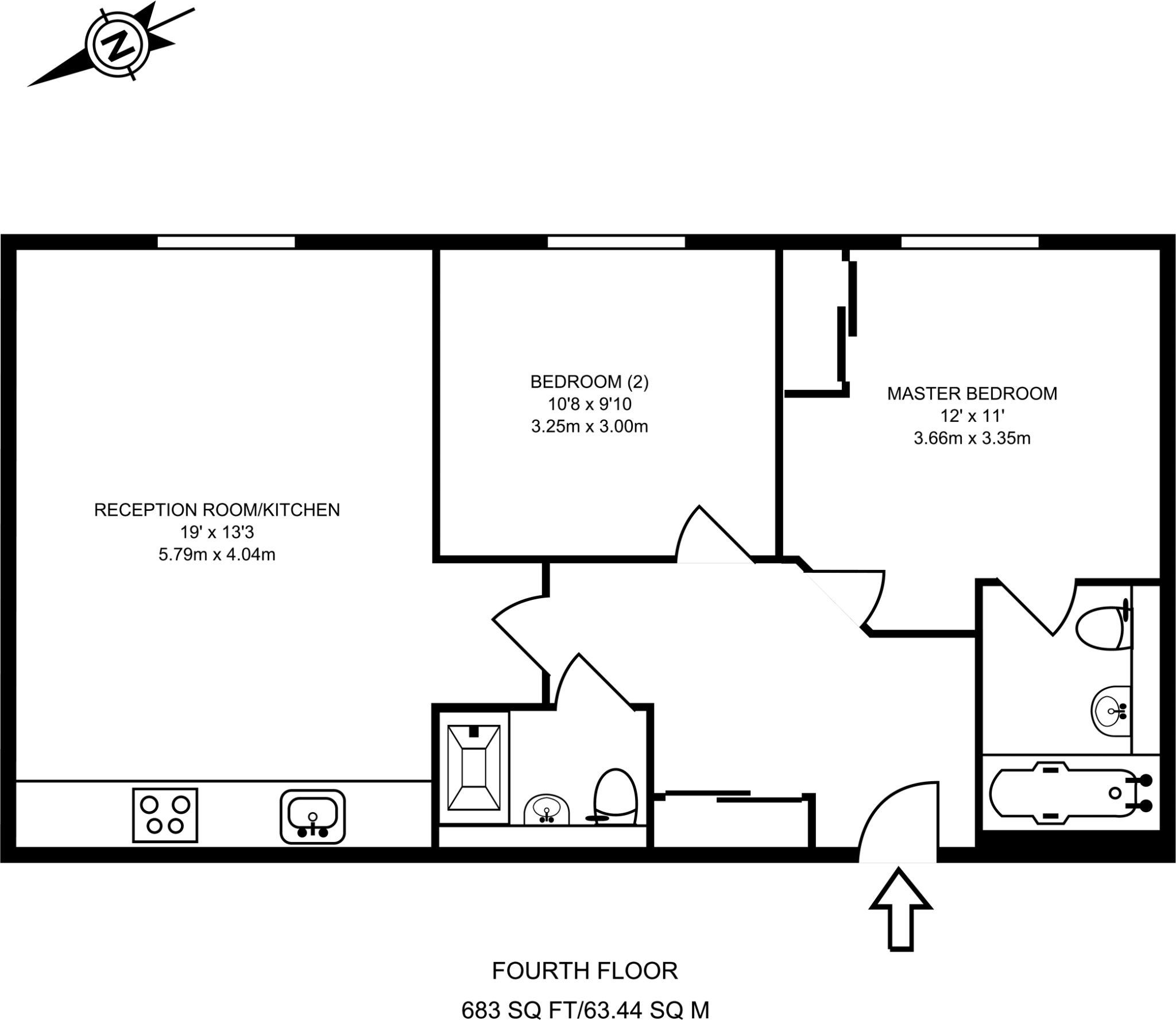
Set on the fourth floor of a handsome converted building, this two-bedroom flat combines period character with contemporary finishes. High ceilings and attractive wood floors give the living space a light, airy feel, while a modern open-plan kitchen with integrated appliances suits everyday living and casual entertaining. The main bedroom includes an en suite shower room and there is an additional shower room, useful for households or guests.
Practical points are strong: lift access, secure entry, communal gardens and excellent mobile and broadband connectivity. At around 683 sq ft with a very long lease (977 years) this leasehold home offers long-term security and clear ownership terms. Local transport links include Acton Central (Overground) and East Acton (Central line), with shops and amenities close by.
Be clear about running and maintenance considerations: heating is by electric room heaters, which can be more expensive than central systems, and the building’s solid brick construction likely has little wall insulation. Ground rent is payable (£450, average). The property sits in an inner-city, multicultural area with average crime rates and some wider area deprivation.
This flat will suit first-time buyers looking for a well-located, characterful home with scope to personalise, or investors seeking a city rental in a well-connected pocket of W3. Viewing will show how the high ceilings and layout maximise the apartment’s feel and potential.
 2 bedroom flat for sale in Michelle Court, Acton, London, W3 — £450,000 • 2 bed • 2 bath • 841 ft²
 2 bedroom flat for sale in Michelle Court, Acton, London, W3 — £450,000 • 2 bed • 2 bath • 841 ft² 2 bedroom flat for sale in Bollo Bridge Road, Acton, London, W3 — £595,000 • 2 bed • 2 bath • 800 ft²
 2 bedroom flat for sale in Bollo Bridge Road, Acton, London, W3 — £595,000 • 2 bed • 2 bath • 800 ft² 2 bedroom flat for sale in Beechwood Grove, Acton, London, W3 — £450,000 • 2 bed • 2 bath • 688 ft²
 2 bedroom flat for sale in Beechwood Grove, Acton, London, W3 — £450,000 • 2 bed • 2 bath • 688 ft² 1 bedroom flat for sale in Bromyard Avenue, East Acton, London, W3 — £300,000 • 1 bed • 1 bath • 413 ft²
 1 bedroom flat for sale in Bromyard Avenue, East Acton, London, W3 — £300,000 • 1 bed • 1 bath • 413 ft² 2 bedroom flat for sale in Bromyard House, East Acton, London, W3 — £650,000 • 2 bed • 1 bath • 1027 ft²
 2 bedroom flat for sale in Bromyard House, East Acton, London, W3 — £650,000 • 2 bed • 1 bath • 1027 ft² 1 bedroom flat for sale in Bromyard House, East Acton, London, W3 — £300,000 • 1 bed • 1 bath • 427 ft²
 1 bedroom flat for sale in Bromyard House, East Acton, London, W3 — £300,000 • 1 bed • 1 bath • 427 ft²


























































































































































