Quiet village setting with good commuter links and ready-to-update living space.
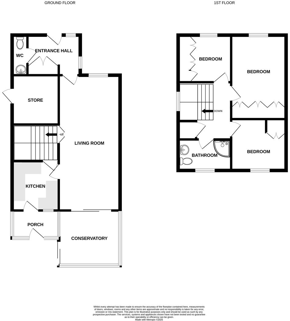
- Detached three-bedroom family home with conservatory
- Large living room providing generous reception space
- Private tarmac driveway with garage, two-car space
- Two-tiered rear garden; low-maintenance paved patio
- Single shower-room for three bedrooms, may need updating
- Built 1950–1966; some fixtures and finishes are dated
- Double glazing fitted, install date unknown; gas central heating
- Services not tested; professional checks recommended before purchase
Set on a quiet close in Earby, this three-bedroom detached home offers straightforward family living with practical space and useful parking. The large living room flows to a conservatory that brings light and extra usable space, while the two-tiered rear garden provides low-maintenance outdoor space and a paved patio for seating.
The property is gas centrally heated with double glazing and occupies an average-sized footprint (approx. 972 sq ft). On the ground floor you'll find an entrance hall, cloakroom WC, kitchen, lounge and conservatory; upstairs are three bedrooms and a shower bathroom. There is a private tarmac driveway for two cars and a garage, useful for storage or workshop use.
Notable positives include freehold tenure, easy commuter access (M65 nearby), good mobile and broadband speeds, and no flooding risk. Nearby village amenities include shops, a supermarket, pubs, and primary schools; wider countryside and Pendle are close by for outdoor access.
Buyers should note the property was constructed in the 1950s–1960s and shows some dated fixtures and finishes that will suit those wanting to update. There is only one shower-room serving three bedrooms, the plot is modest in size, and services/installations have not been tested — a professional inspection is recommended before commitment. Council Tax Band C applies.
3 bedroom semi-detached house for sale in Warwick Drive, Earby, BB18 — £174,950 • 3 bed • 1 bath • 839 ft²
3 bedroom semi-detached house for sale in Bawhead Road, Earby, BB18 — £200,000 • 3 bed • 1 bath • 987 ft²
3 bedroom semi-detached house for sale in Welbury Close, Earby, BB18 — £225,000 • 3 bed • 1 bath • 1021 ft²
3 bedroom semi-detached house for sale in Salterforth Road, Earby, BB18 — £225,000 • 3 bed • 1 bath • 1179 ft²
3 bedroom house for sale in Welbury Close, Earby, BB18 — £250,000 • 3 bed • 1 bath • 950 ft²
3 bedroom semi-detached house for sale in Reeval Close, Barnoldswick, BB18 — £265,000 • 3 bed • 1 bath • 1276 ft²






















































