Large family home with big garden, outbuildings and excellent commuter links.
Substantial detached Tudor‑style residence over 2,100 sq ft
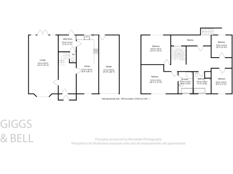
Set on a large plot in North Luton, this substantial Tudor‑style detached house offers over 2,100 sq ft of living space and genuine potential for improvement. The layout includes a dual-aspect living room, kitchen/dining area, utility, cloakroom, an impressive principal bedroom with en-suite, three further bedrooms and a family bathroom — practical for family life and flexible enough for home working.
The site is a standout: multi-vehicle driveway, integral garage, mature rear garden and extensive outbuildings provide generous storage and scope for leisure or workshop use. Commuters will appreciate fast links to junctions 11/11a and Leagrave train station (about 0.8 miles), while the nearby open countryside gives the feel of a suburban retreat without sacrificing town access.
Sold freehold and chain-free, the house is well placed for local schools rated Good and for everyday amenities. Broadband and mobile signals are strong and the area records very low crime, which supports family and long-term ownership.
Note the property offers significant scope for modernisation and personalisation. While the character and size are major positives, updating and some refurbishment will be needed to bring the interiors to contemporary standards and to make best use of the outbuildings and plot.
5 bedroom detached house for sale in London Road, Luton, LU1 — £1,100,000 • 5 bed • 4 bath • 2509 ft²
4 bedroom detached house for sale in Ludlow Avenue, Luton, Bedfordshire, LU1 3RW, LU1 — £875,000 • 4 bed • 2 bath • 1860 ft²
4 bedroom detached house for sale in New Bedford Road, New Bedford Road Area, Luton, Bedfordshire, LU3 1NH, LU3 — £800,000 • 4 bed • 3 bath • 2500 ft²
4 bedroom detached house for sale in Old Bedford Road, Luton, LU2 — £800,000 • 4 bed • 3 bath • 2377 ft²
4 bedroom detached house for sale in Rochford Drive, Luton, Bedfordshire, LU2 — £525,000 • 4 bed • 2 bath • 1461 ft²
2 bedroom detached house for sale in Cutenhoe Road, South Luton, Luton, Bedfordshire, LU1 3ND, LU1 — £400,000 • 2 bed • 3 bath • 1524 ft²


































































































































