Spacious four-bed family house with garage, garden and countryside views.
Offered chain free; built in 2024, EPC B
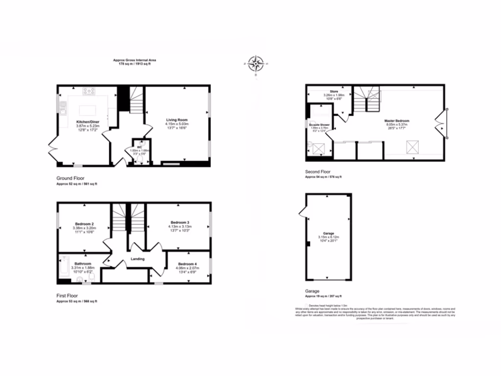
Spacious 1,913 sq. ft. with large top-floor master suite
20' garage with power, driveway and extra allocated space
Generous rear garden with patio; countryside views from all floors
Mains gas boiler and radiators; energy-efficient construction
Service charge £250; council tax above average
Three-storey layout and garden/garage steps limit mobility suitability
No flood risk; excellent mobile signal and fast broadband
A recently built, three-storey detached home offering 1,913 sq. ft. of contemporary family space on the fringe of Callington. The house is arranged with living and dining on the ground floor, three bedrooms and a family bathroom on the first floor, and a generous top-floor master suite with walk-in wardrobe and en-suite shower room. Built in 2024, the property benefits from energy-efficient construction (EPC B) and mains gas heating.
Practical features include a 20' garage with power, driveway parking plus an additional allocated space, and a low-maintenance rear garden with patio ideal for outdoor dining. The property is offered with no onward chain and sits on a quiet development with countryside views from all floors – a strong selling point for buyers seeking peaceful, semi-rural living.
Notable practical points are clearly stated: a modest service charge applies (£250), council tax is above average, and the three-storey layout requires good mobility – steps also serve the garage entrance from the rear garden. Overall this is a modern, executive-style house suited to families who value space, views and low-maintenance living but who accept multi-level circulation and running costs.
3 bedroom detached house for sale in Bal Road, Callington, PL17 — £380,000 • 3 bed • 3 bath • 1711 ft²
4 bedroom detached house for sale in Callington, Cornwall, PL17 — £400,000 • 4 bed • 3 bath • 1234 ft²
4 bedroom house for sale in Florence Park, Callington, PL17 — £440,000 • 4 bed • 2 bath • 1356 ft²
3 bedroom bungalow for sale in Callington, PL17 — £390,000 • 3 bed • 2 bath • 1292 ft²
4 bedroom house for sale in Callington, PL17 — £325,000 • 4 bed • 2 bath • 1249 ft²
4 bedroom detached house for sale in Castle View, St. Stephens, Saltash, PL12 — £425,000 • 4 bed • 3 bath • 1259 ft²


















































































