Spacious landmark penthouse with balconies and concierge in Merchant City.
A‑listed duplex penthouse in landmark GPO building
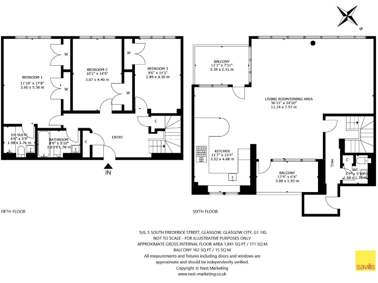
Extremely large c.1,841 sq ft living across two levels
Three double bedrooms; principal with en‑suite and Parisian balcony
Open-plan living, integrated appliances, hardwood flooring
Two private balconies with city views; high ceilings and natural light
Concierge, secure entry, lift, residents’ gym and communal CCTV
Category A listed — alterations restricted; may add time/cost
Located in busy Merchant City; area mixed, high local deprivation; council tax expensive
Set across two levels atop the landmark A‑listed GPO building, this duplex penthouse combines classical architecture with contemporary city living. The upper floor hosts a bright, open-plan living, dining and kitchen area with floor-to-ceiling windows, hardwood floors and direct access to a principal balcony overlooking Merchant City.
Three spacious double bedrooms occupy the lower level, the principal with an en-suite and a private Parisian balcony. At c.1,841 sq ft the apartment feels extremely large for a city-centre home and benefits from integrated kitchen appliances, high ceilings and two outdoor spaces for entertaining or quiet retreat.
Practical benefits include secure entry, lift access, on-site concierge, residents’ gym, CCTV in communal areas and an EPC rating of B. The home report values the property at £560,000; the sale is offered at a fixed price of £525,000, presented freehold.
Buyers should note the Category A listed status: any alterations will be restricted and may involve additional consent and cost. The local area is mixed and described as a cosmopolitan student and commuter neighbourhood with a high level of local deprivation; council tax is described as expensive. These factors suit buyers seeking an architecturally significant, low-maintenance city base rather than a suburban family garden property.
3 bedroom penthouse for sale in Flat 24,The Italian Centre 47 Cochrane Street, Merchant City, Glasgow, G1 1HL, G1 — £350,000 • 3 bed • 2 bath • 1485 ft²
2 bedroom flat for sale in Candleriggs, Merchant City, G1 — £220,000 • 2 bed • 1 bath • 753 ft²
3 bedroom apartment for sale in West George Street, City Centre, Glasgow City, G2 — £399,000 • 3 bed • 2 bath • 2013 ft²
2 bedroom flat for sale in Ingram Street, Glasgow, G1 — £230,000 • 2 bed • 2 bath • 1100 ft²
2 bedroom apartment for sale in Wilson Street, Merchant City, Glasgow City, G1 — £229,000 • 2 bed • 1 bath • 732 ft²
2 bedroom apartment for sale in Ingram Street, Merchant City, Glasgow City, G1 — £249,000 • 2 bed • 2 bath • 1152 ft²


































































