SN10 1JL - 5 bedroom terraced house for sale in Northgate Street, Devi…

View on Property Piper

5 bedroom terraced house for sale in Northgate Street, Devizes, SN10

Summary - 3 NORTHGATE STREET DEVIZES SN10 1JL

5 bed 4 bath Terraced

Fire-damaged Grade II* townhouse with garden, garage and conversion potential — sold at auction..
Grade II* listed townhouse — listed status will complicate works
Fire damaged throughout; requires comprehensive renovation and consent
Previously configured as three flats; income potential c.£25k–£30k pa (quoted)
Large rear garden, driveway parking and double garage accessed from rear
Guide price £140,000+; sold at online auction, 10% deposit and buyer fee apply
Area deprivation and very high local crime — affects lettability/value
Mixed reports of internal area (c.1,992–3,500ft²) — verify in legal pack
Solid brick walls assumed no insulation; likely costly thermal upgrades
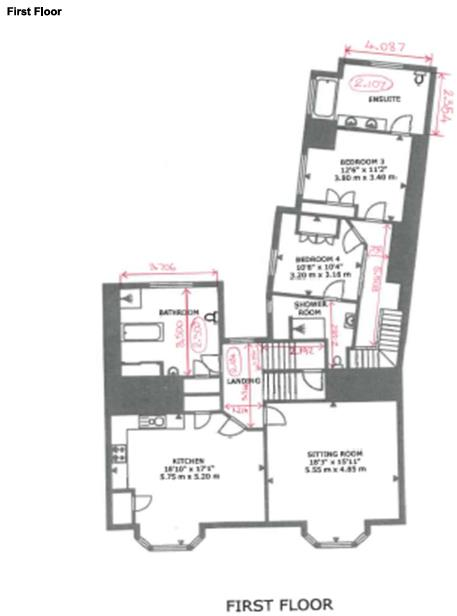
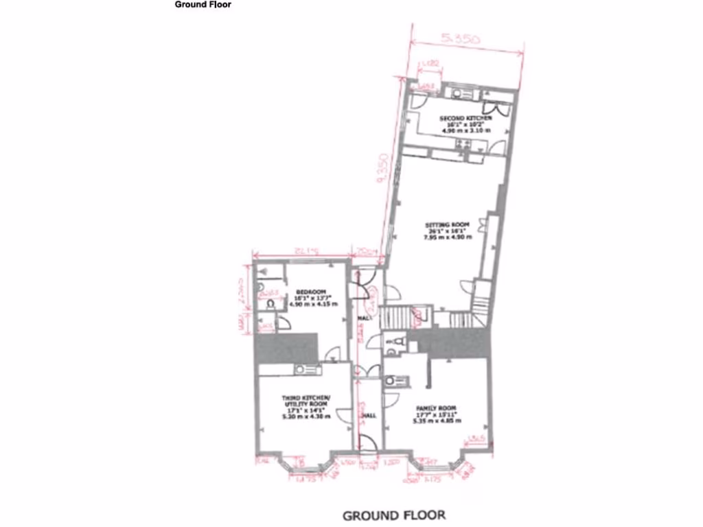
Lot 19 is a large, Grade II* listed terraced townhouse sold by online auction with a Guide Price of £140,000+. The building is fire damaged and requires full renovation throughout; it was previously arranged as three self-contained flats plus office and cellar, offering clear options to retain multiple units or convert back to a single grand house (subject to consents). Buyers should note the listed status and fire damage will complicate works and incur specialist consent and cost.

For an investor this property offers upside: estimated rental income from three refurbished flats is quoted at approximately £25,000–£30,000 per year. The plot includes a substantial rear garden, driveway parking and a double garage — useful for lettable storage, parking, or development potential. There is good local amenity provision in Devizes and convenient mobile signal; broadband is average.

Material drawbacks are significant and stated openly: fire damage, listed‑building constraints, solid brick walls assumed without insulation, and a requirement for comprehensive renovation including likely specialist repairs and consents. The site sits in a deprived area with very high local crime statistics, which will affect lettability and valuation. The sale is by online auction — buyers must pay a 10% deposit, buyer’s fee, and perform their own due diligence via the legal pack before bidding.

Property Details

Brochure Descriptions

Image Descriptions

Floorplan Description

Rooms

Textual Property Features

Target Audience

AI Tags

Detected Visual Features

EPC Details

Nearby Schools

Nearest Bars And Restaurants

,,,,}

Nearest General Shops

,,}

Nearest Grocery shops

,,}

Nearest Supermarkets

,,}

Nearest Religious buildings

,,}

Nearest Medical buildings

,,,}

Nearest Leisure Facilities

,,,,}

Nearest Tourist attractions

,,}

Nearest Train stations

,,,,}

Nearest Bus stations and stops

,,,,}

Nearest Hotels

,,}

Tags

Local Market Stats

AirBnB Data

Similar Properties

Meta

High Res Images

Compatible Images

Low res Images

Thumbnails

Raw Images

High Res Floorplan Images

Compatible Floorplan Images

Low res Floorplan Images

FloorplanImages Thumbnail

Raw Floorplan Images