Chain-free first-floor home with parking and long lease, ideal for first-time buyers.
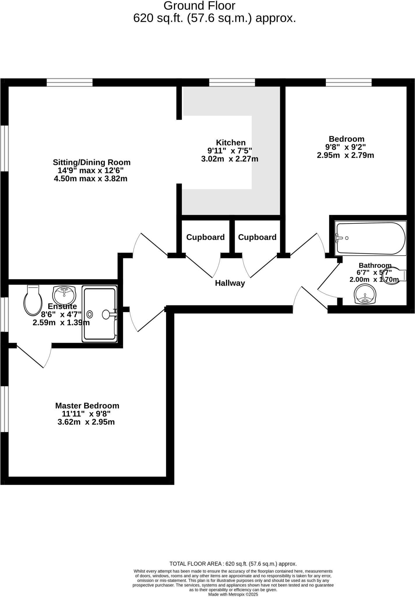
- Two double bedrooms, master with en-suite
- Dual-aspect lounge/dining room with natural light
- Modern fitted kitchen with integrated oven and hob
- Allocated off-street parking and well-kept communal gardens
- Long lease remaining (112 years) and chain free
- Service charge £1,659pa; ground rent £280pa
- Above-average local crime rates; area classed as deprived
- Broadband speeds reported as slow
A well-presented two-bedroom first-floor apartment in Brewers Square, offering practical living in a modern development. The dual-aspect lounge/dining room floods the space with light and the fitted kitchen includes an integrated oven and hob. The principal bedroom benefits from an en-suite; both bedrooms are doubles, and the apartment totals approximately 620 sq ft.
Practical features include gas central heating, double glazing, an allocated off-street parking space and pleasant, well-kept communal gardens. The property is chain free with a long lease remaining (112 years) making it straightforward for buyers looking to move quickly.
Running costs and local context: service charge is £1,659 per year with ground rent £280 per year, council tax is described as low. Note the wider area has higher-than-average crime rates and slower broadband speeds, and the neighbourhood is classified as deprived in local statistics — factors to consider for some buyers.
This apartment will suit first-time buyers or professional couples seeking a low-maintenance home close to local amenities and transport links. Viewings are recommended to appreciate layout, condition and the communal grounds in person.
2 bedroom flat for sale in Manor Road, Edgbaston, Birmingham, West Midlands, B16 — £150,000 • 2 bed • 1 bath • 636 ft²
2 bedroom flat for sale in Westfield Road, Edgbaston, Birmingham, B15 — £175,000 • 2 bed • 1 bath • 754 ft²
2 bedroom ground floor flat for sale in Maynard Road, Edgbaston, Birmingham, B16 — £135,000 • 2 bed • 1 bath • 593 ft²
2 bedroom apartment for sale in The Edg, 103 Springmeadow Road, Edgbaston, B15 — £235,000 • 2 bed • 2 bath • 845 ft²
2 bedroom flat for sale in Manor Road, Birmingham, B16 — £157,000 • 2 bed • 1 bath • 496 ft²
2 bedroom apartment for sale in Springmeadow Road, Edgbaston, B15 — £170,000 • 2 bed • 1 bath • 581 ft²






























































