BH12 1NR - 3 bed branksome detached opportunity in Sheringham Road, BH…

View on Property Piper

3 bedroom detached house for sale in Sheringham Road, Poole, BH12

Summary - 29 SHERINGHAM ROAD POOLE BH12 1NR

3 bed 1 bath Detached

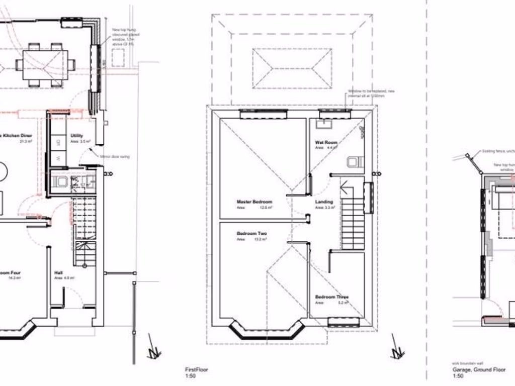
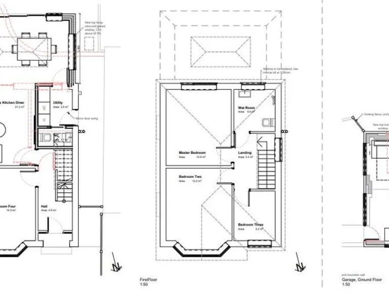
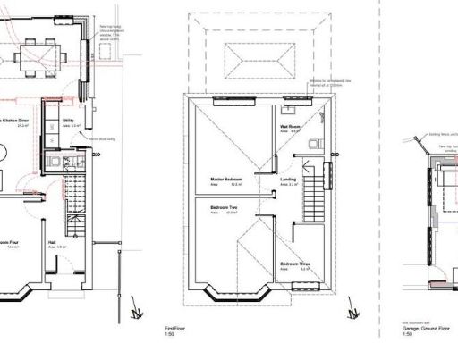
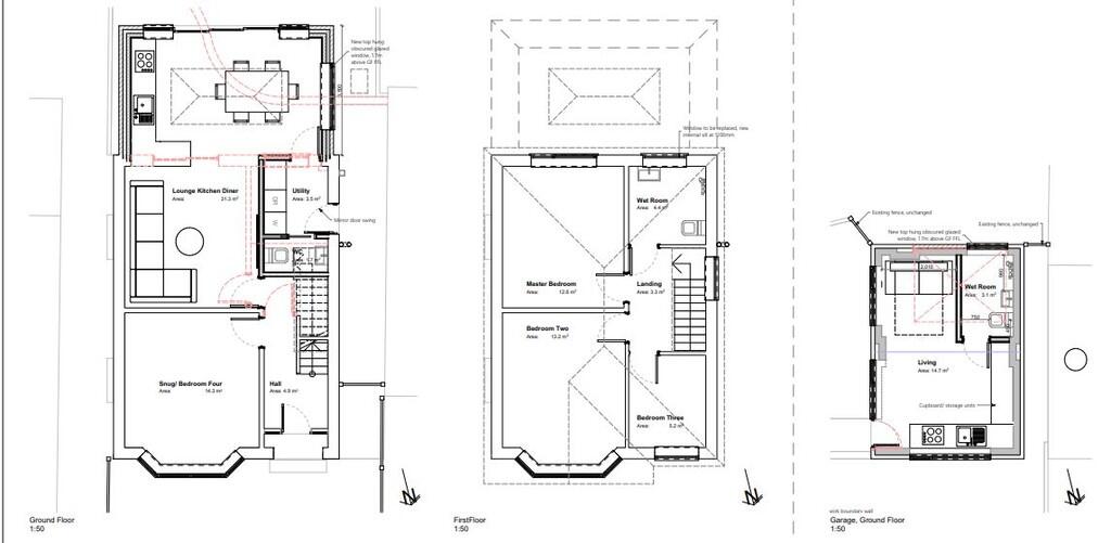
Detached 3-bed with planning permission for extension and garage annex, south garden and driveway.
No forward chain — ready for a prompt sale
Set on a desirable Branksome street, this three-bedroom detached house offers immediate possession with no forward chain and genuine scope to add value. Planning permission is already granted for a single-storey rear extension and conversion of the detached garage into a self-contained annex, providing clear potential for extended family use or rental income.

The ground floor features two reception rooms, a modern kitchen and sliding doors from the dining room onto a south-facing garden and patio — ideal for family life and summer entertaining. The property includes a large driveway for multiple cars and gas central heating. Local schools rated Good and an independent top-10% school are within easy reach, making the location particularly attractive to families.

The house is an average-sized, 1930s-style property with traditional layout and characterful features such as a bay window to the sitting room. It is freehold, with fast broadband and excellent mobile signal, and sits on a decent plot with off-street parking and a detached garage (subject to the approved conversion).

Buyers should note practical matters: there is a single family bathroom only, and the area records above-average crime levels. The vendor’s particulars recommend buyers verify measurements and commission their own surveys and service checks. This property suits buyers wanting a ready-to-improve family home with permitted development in a convenient suburban setting.

Property Details

Image Descriptions

Floorplan Description

Rooms

Textual Property Features

Target Audience

AI Tags

Detected Visual Features

Nearby Schools

Nearest Bars And Restaurants

,,,,}

Nearest General Shops

,,}

Nearest Grocery shops

,,}

Nearest Supermarkets

,,}

Nearest Religious buildings

,,}

Nearest Medical buildings

,,,}

Nearest Airports

}

Nearest Leisure Facilities

,,,,}

Nearest Tourist attractions

,,}

Nearest Train stations

,,,,}

Nearest Bus stations and stops

,,,,}

Nearest Hotels

,,}

Tags

Local Market Stats

AirBnB Data

Similar Properties

Meta

High Res Images

Compatible Images

Low res Images

Thumbnails

Raw Images

High Res Floorplan Images

Compatible Floorplan Images

Low res Floorplan Images

FloorplanImages Thumbnail

Raw Floorplan Images