NP20 6WL - 4 bed spacious family semi in Yewberry Lane, NP20 6WL

View on Property Piper

4 bedroom semi-detached house for sale in Yewberry Lane, Newport, NP20

Summary - 21 YEWBERRY LANE NEWPORT NP20 6WL

4 bed 2 bath Semi-Detached

Well-presented four-bed semi with garden, fast broadband and strong commuter links.
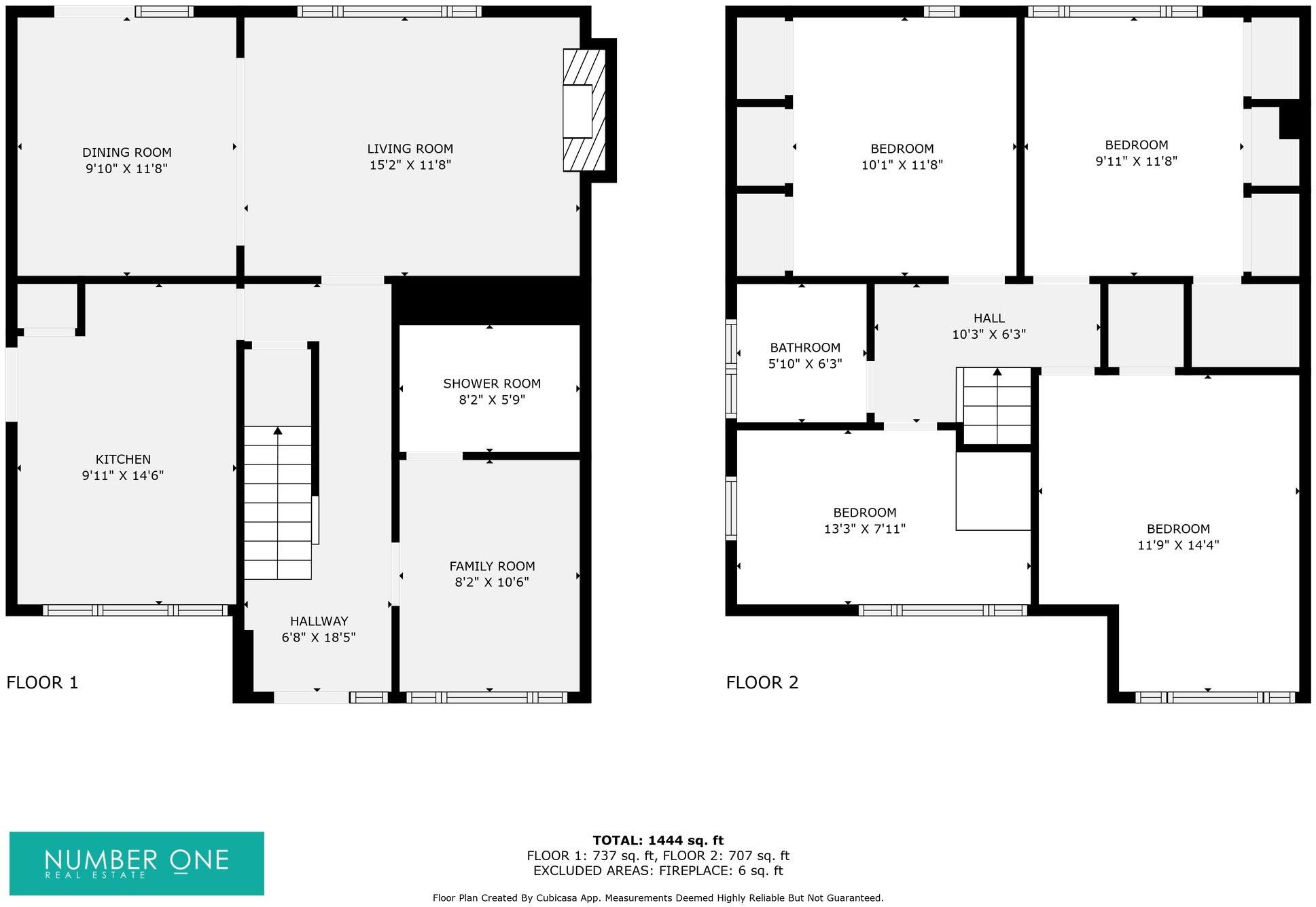
4 bedrooms and versatile living spaces across ~1,313 sq ft
Private well-maintained rear garden with patio, greenhouse and shed
Single-car driveway plus plentiful on-street parking
FTTP broadband and excellent mobile signal for home working
Built 1976–1982; some fittings/glazing may require future updating
Mains gas boiler and radiators; EPC Rating C
Council Tax Band E (above average)
Area classed as very deprived despite very low crime
This well-presented four-bedroom semi-detached house on Yewberry Lane suits a growing family seeking space and strong commuter links. The home offers flexible living across approximately 1,313 sq ft, including a bright open-plan lounge/diner that faces the private rear garden — a safe, landscaped area with lawn, patio, greenhouse and shed.

Practical features include mains gas central heating with a boiler and radiators, double glazing (install date unknown) and FTTP broadband. The property sits on a decent plot with a single-car driveway and ample on-street parking. Its location in Malpas places local shops, cafes and reputable primary and secondary schools within walking distance, while Newport station and Junction 26 of the M4 allow straightforward travel to Cardiff, Bristol and beyond.

Buyers should note some material points: the home was built in the late 1970s–early 1980s, so certain elements (glazing, fixtures) may age and could need replacement in time. Council Tax sits at Band E, above average. The immediate area is classed as very deprived, despite very low local crime and excellent mobile and broadband connectivity.

Overall, this semi offers a comfortable, ready-to-live-in family layout with easy commuting and outdoor space. It will particularly suit families who prioritise nearby schools, fast broadband and a low-crime neighbourhood, while those seeking a brand-new specification should allow budget for incremental modernisation over time.

Property Details

Image Descriptions

Floorplan Description

Rooms

Textual Property Features

Target Audience

AI Tags

Detected Visual Features

EPC Details

Nearest Bars And Restaurants

,,,,}

Nearest General Shops

,,}

Nearest Grocery shops

,,}

Nearest Supermarkets

,,}

Nearest Religious buildings

,,}

Nearest Medical buildings

,,,}

Nearest Airports

,}

Nearest Leisure Facilities

,,,,}

Nearest Tourist attractions

,,}

Nearest Train stations

,,,,}

Nearest Bus stations and stops

,,,,}

Nearest Hotels

,,}

Tags

Local Market Stats

Similar Properties

Meta

High Res Images

Compatible Images

Low res Images

Thumbnails

Raw Images

High Res Floorplan Images

Compatible Floorplan Images

Low res Floorplan Images

FloorplanImages Thumbnail

Raw Floorplan Images