ME5 8PL - 3 bedroom terraced house for sale in Hall Road, Lords Wood,…

View on Property Piper

3 bedroom terraced house for sale in Hall Road, Lords Wood, Chatham, Kent, ME5

Summary - 22 HALL ROAD CHATHAM ME5 8PL

3 bed 1 bath Terraced

**Key Features:**
- **Property Type:** Spacious terraced house in a small cul-de-sac
- **Bedrooms:** 3, with generous room sizes
- **Parking:** Large off-street driveway
- **Location:** Excellent school catchment area, close to local amenities, and a short drive to Chatham and Maidstone town centres
- **Condition:** Some maintenance updates could be beneficial; double glazing installed after 2002
- **Garden:** Rear garden with contemporary landscaping and seating area

This charming terraced house, offered at £335,000, is perfect for families seeking a comfortable suburban lifestyle. Located in a quiet cul-de-sac, it boasts a spacious layout with three well-sized bedrooms and a large kitchen/diner that opens onto a modern garden—ideal for entertaining or enjoying quiet evenings outdoors.

Families will appreciate the excellent local schools, including Lordswood School and Holcombe Grammar School, both of which hold good Ofsted ratings. You'll have easy access to local shops, parks, and essential amenities, while the nearby M2/M20 motorways provide great transport links.

Despite its many positives, potential buyers should be aware of the average condition of the cavity wall insulation, requiring attention. The property represents a fantastic opportunity for those looking to create a warm, inviting family home in a thriving community. With its blend of space, comfort, and future renovation potential, this home won't be available for long. Schedule a viewing today to envision your family's new beginning in this lovely space!

Property Details

Image Descriptions

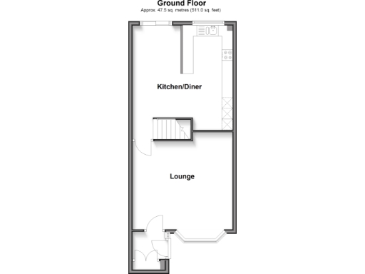
Floorplan Description

Rooms

Textual Property Features

Detected Visual Features

EPC Details

Nearby Schools

Nearest Bars And Restaurants

,,,,}

Nearest General Shops

,,}

Nearest Grocery shops

,,}

Nearest Supermarkets

,,}

Nearest Religious buildings

,,}

Nearest Medical buildings

,,,}

Nearest Airports

,}

Nearest Leisure Facilities

,,,,}

Nearest Tourist attractions

,,}

Nearest Train stations

,,,,}

Nearest Bus stations and stops

,,,,}

Nearest Hotels

,,}

Tags

Local Market Stats

AirBnB Data

Similar Properties

Meta

High Res Images

Compatible Images

Low res Images

Thumbnails

Raw Images

High Res Floorplan Images

Compatible Floorplan Images

Low res Floorplan Images

FloorplanImages Thumbnail

Raw Floorplan Images